国庆期间,成都【清凤鹿溪源】特惠惊喜上线!10月房价新鲜出炉,热销户型任您选,优惠房源限时疯抢,速拨清凤鹿溪源售楼处电话

搜狐焦点成都站 2025-10-04 14:10:39
用手机看
扫描到手机,新闻随时看

扫一扫,用手机看文章
更加方便分享给朋友

6、【三大豪宅产品系】:项目整体产品建面175㎡起,总价400-1600万,高端圈层划定,实现桃花源里的谈笑有鸿儒,往来皆从容。 产业:以西博城为代表的国家展览中心、以独角兽岛为代表的国际科创中心、鹿溪智谷…

清凤鹿溪源】销售中心电话:028-62671228 【营销中心】

楼盘详情介绍丨最新售价丨户型鉴赏丨周边配套丨详细在线解答

如需了解最新房源信息_咨询优惠政策_请拨打上方售楼部电话!

【项目基本情况】

项目地址:天府新区核心圈板块

开发商:清凤集团·成都惠能房地产开发有限公司

工程建设:成都清凤建设

占地面积:约320亩(含69亩公园)

容积率:1.8

建筑面积:25.61万㎡

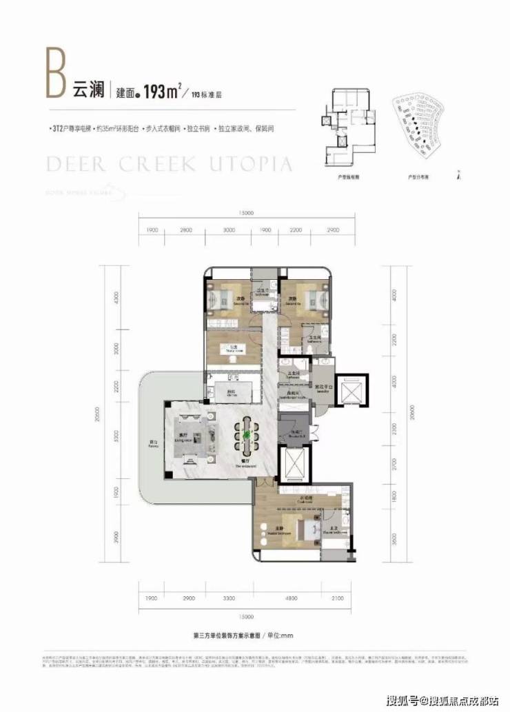
户型建面:175㎡--630㎡

产品形态:洋房、悦墅、叠拼

产品总价:洋房400万起;悦墅510万起;叠拼1200万起

层高:洋房层高3.3米;悦墅一二层挑高5.8m,3层层高3.3m; 叠拼地上层高:3.3-3.6米,地下层高:4.2-5.8米

洋房梯户比:3梯2户

绿化率:50%

户数:一二期1057户

车位比:1:2.4

交付标准:清水

产权年限:70年

交房标准:清水

交房时间:一期已交付

付款方式:一次性、分期和按揭

在售户型

十大价值标杆:

1、【绝版峡谷】:价值1亿的樱花峡谷,天然“龙坑”,依势而生;水系洄游1.2公里,上千种全季性植物,专属桃花源式生态走廊;夜灯星罗棋布,宛若九天银河。

2、【七大中庭】:中庭取意北斗七星,与银河峡谷相呼应,引景入户,实现栋栋皆楼王,户户看中庭;丰富使用场景,主题鲜明,包含会客、健身、休闲、亲子等功能。

3、【1.3万㎡活动中心】:成都唯一小区内“地藏式”运动主题活动中心,涵盖篮球场、羽毛球场、瑜伽室、动感单车、乒乓、台球等场地,冬暖夏凉,满足总裁级业主志趣。

4、【巅峰颜值立面】:双面切割弧形铝板 + 阔尺LOW-E双层玻璃 + 纵贯一线定制工艺,打造360度高颜值立面;全景舱视野,U形跑道阳台,引领行业风尚,放眼成都20年不过时。

5、【奢华酒店公区】:光感地下宝库 + 精奢星空顶 + 6.6m挑高入户大堂 + 3梯2户动线配置……成都顶配公区打造,业主归家仪式感拉满。

6、【三大豪宅产品系】:项目整体产品建面175㎡起,总价400-1600万,高端圈层划定,实现桃花源里的谈笑有鸿儒,往来皆从容。

7、【天府核心地段】:项目地处天府核心圈,10分钟车程内近享天府CBD、科学城超5000亿恢弘城市配套。

产业:以西博城为代表的国家展览中心、以独角兽岛为代表的国际科创中心、鹿溪智谷-天府新区产业之钻;近30家500强企业入驻;

商圈:兴隆湖商圈、天府博览城商圈;大悦城、国际保税商业中心等11座商业综合体,安达仕酒店、凯悦酒店等50家高端酒店;

教育:七中育才科学城分校、天府中学、元音中学、天府新区科学城小学。

交通:天府高铁站(10分钟即达)、地铁19号线(800m)直达双机场、26号线(规划)在侧;紧邻梓州大道、天府大道、武汉路、东山大道、成自泸高速等,半小时车程直达天府国际机场。

8、【臻稀生态基底】:项目地处鹿溪河生态带头排,近享超万亩生态公园,更是拥揽约500米湖岸线,独享天新唯一隐奢湖湖景,玉带缠腰,遇水则兴。

9、【24大社群服务】:全国五大社群运营组织之一的“梦想家”,全国创建逾100个社群,组建超2000场活动,吸纳海南、昆明等地的高端社群运营经验,落地项目,与业主共创拳击俱乐部、足球俱乐部、电子竞技社、普拉提社、诗歌茶社、萌宠社、骑行社等24个社群组织,丰富业主生活维度,创建“友好邻里关系场”。

10、【豪宅高评认定】:项目以实景兑现获得行业、客户高度认可,荣膺【环球超级豪宅别墅】、【2025年人居梦想“好房子”】、【四川区域交付榜样作品】等重量级奖项,市场好评如潮。

【清凤鹿溪源】销售中心电话:028-62671228 【营销中心】

楼盘详情介绍丨最新售价丨户型鉴赏丨周边配套丨详细在线解答

如需了解最新房源信息_咨询优惠政策_请拨打上方售楼部电话!

声明:本文由入驻焦点开放平台的作者撰写,除焦点官方账号外,观点仅代表作者本人,不代表焦点立场。