成都【明信四季东安】售楼处电话|最新售价参考|在售户型图集_面积段展示|优惠活动_特价房源|项目详情快速了解
扫描到手机,新闻随时看
扫一扫,用手机看文章
更加方便分享给朋友
【明信四季东安】售楼处热线:028-62671228 【营销中心】
基础信息
【项目位置】成都市东安新城驿马河公园里(红岭路)
【开发商】成都庆泽房地产开发有限公司
【总占地面积】22786.65㎡(34亩)
【地块建面】50800.51㎡
【容积率】1.5
【总户数】276户
【总栋数】10栋 首批次开1.9.10号楼
【产品类型】 洋房
【产品面积】118㎡(1.2号楼)、130㎡(9.10号楼)、143㎡(9.10号楼)
【装修情况】首批次清水
【层高】7-11层 首批次7层
【梯户比】1T2
【交房时间】预计26年1月
【物业】明信优居物业 3元/月/㎡
品牌介绍
明信,值得信赖的生活服务商,深耕成都24载, 与城市共生长。成都明信房地产集团有限公司(简称“明信集团”),创立于2000年,历经二十多年的发展,形成以地产开发为核心,集地产金融、物业管理、文化旅游、现代农业、酒店康养、文娱乐园、文商产业等于一体的综合性集团公司。公司以“人居明信+文旅明信”双擎驱动为战略顶层设计,人居明信以“地产金融+现代物业”为核心基础产业,文旅明信以“乡村旅游+现代农业”为创想支柱产业。

区域价值
于东安新城,锚定下一张城市名片;国家级战略,城市发展核心;龙泉驿区作为成都东进“桥头堡”;离湖归岸东安湖2.0时代来临;起笔东安湖中央公园生活区中轴;为东安2.0高端人居开篇。

周边配套

生态:坐拥一湖一山一园。一湖:东安湖(5887亩),世界级国家体育公园,围绕“一湖三岸”建设。一山:龙泉山(海拔1051米)。国家城市森林公园,城市自然分界线,一园:驿马河公园(1910亩),城市中央公园,城市生态连廊,“天然氧吧”。
交通:多维路网交织,5纵4横2轨多维立体交通。2轨:地铁2号线龙平路站(约1.5km)、地铁13号线(规划中);5纵:蜀都大道、桃都大道中段、董朗路、桃源街、双龙路等;4横:湖岸南路、桃都大道、红岭路、龙都路(5环路)。
商业:多元商圈环伺,4大商圈集群。1公里以内万达广场、永辉超市;2公里以内东方华大广场;3公里以内龙湖东安天街、吾悦广场等。
教育:多龄学府林立,3大名校体系。东安湖学校(成都七中领办)、成都实验小学(和雅校区)、成都实验小学(乐雅校区)。5大优质学府,龙泉第七中学、驿马河第一幼儿园、常春藤龙都国际幼儿园、龙泉驿区第二小学、龙泉二中等,享一站式全龄优教。
医疗:国际化医疗护航。四川大学华西医院龙泉医院(约700米)、龙泉妇幼保健院(约800米),以优质医疗配置,呵护您和家人的健康生活。
产品价值
府院系力作,礼筑公园纯洋房社区;1.5容积率纯洋房,7F-11F全板式真洋房;超强私密性,别墅级高端社区享受;兼具现代时尚建筑立面;以当代美学打磨时代高光。
户型鉴赏
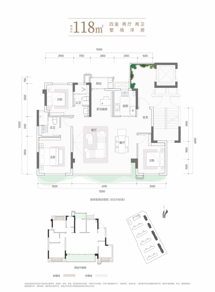
建面约118㎡-四室两卫两卫

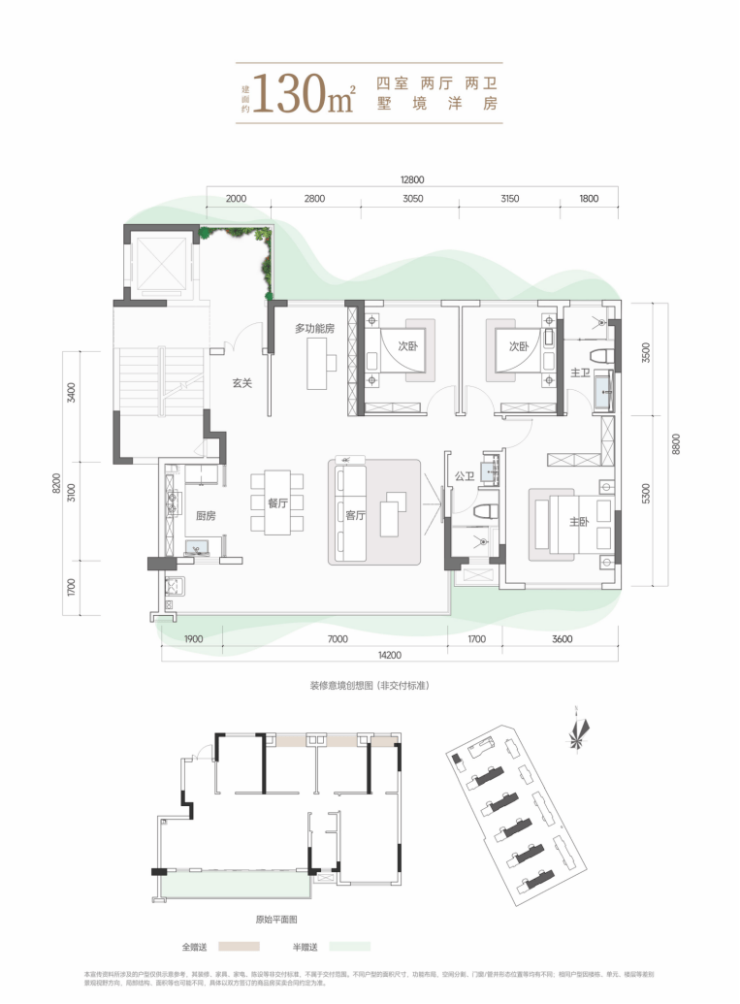
建面约130㎡-四室两卫两卫

建面约143㎡-四室两卫两卫

【明信四季东安】售楼处热线:028-62671228 【营销中心】
声明:本文由入驻焦点开放平台的作者撰写,除焦点官方账号外,观点仅代表作者本人,不代表焦点立场。


