成都【华兴锦樾河畔】11月最新房价公示→售楼处电话|热销户型鉴赏指南|年终特惠房源限时推出_【华兴锦樾河畔】线上售楼处专属咨询通道开启
扫描到手机,新闻随时看
扫一扫,用手机看文章
更加方便分享给朋友
【华兴锦樾河畔】销售中心电话:028-62671228 【营销中心】
楼盘详情丨最新售价丨户型鉴赏丨周边配套介绍丨在线咨询通道
若您想了解最新房源信息、咨询优惠政策,请拨打上方售楼部电话!
基础状况
华兴锦樾河畔由华兴房产倾力打造。交房时间定在2027年12月27日 。项目的在售户型丰富多样,高层涵盖99平、118平以及160平;洋房则为160平。在梯户比方面,高层为2T4或2T3,洋房是1T2。建筑总高度上,高层为22 - 26层,洋房为7 - 8层。装修情况也各有不同,洋房全部精装交付,高层中1、2、4、5号楼为精装,3栋则是清水房。该项目产权年限为70年,总户数达523户。整个项目楼栋分布合理,有高层5栋、洋房3栋、双拼36栋。占地面积约74亩,容积率为1.5,绿地率达30.04%,停车位规划比例为1:1.6,共计839个。物业服务由成都兴华晟物业有限公司负责,物业费方面,高层为3.6元/㎡ ,洋房为3.8元/㎡。

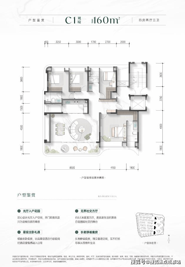
在售户型



项目配套
交通
:项目交通网络极为发达,拥有八横四纵的立体交通格局。八横之中,项目北侧有天府一到五街,门口是元秀路,南侧有华府大道以及警校路,其中警校路可直接连通成雅高速,方便业主外出游玩。四纵分别是项目西侧的华秀路,东侧的剑南大道、益州大道和天府大道,这三条大道直连绕城并直达三环,能让业主轻松通达全城。地铁线路也十分便捷,有地铁5号线以及规划中的15号和22号线。距离项目最近的5号线站点是骑龙站,约2公里远。向北可换乘9号线、7号线两条环线地铁,向南4个站能换乘19号线直达双流以及天府国际机场。按照规划,15号线以及22号线最近的站点设在项目西南角,且为两条线路的换乘站,暂命名为草碾子站。

商业
:项目自身精心打造了下沉式活力商业区。周边15分钟车程范围内,分布着众多商业综合体,像世豪广场、鹭洲里、伊藤、银泰城购物中心,还有港汇天地、铁像寺水街等。
教育
:值得一提的是,双流是全国唯一实行15年义务教育的区域。项目周边已构建起“幼儿园 - 小学 - 初中 - 高中”的全龄教育体系。像直线距离900米的双流区怡心第一实验学校、成都教科院附属学校、成都七中高新校区、成都美视国际学校、成都外国语学校等知名学府环绕四周。

医疗
:预计2026年投入使用的四川大学华西医院高新院区,占地100亩,规划床位2000张,位于约3.5公里外的天府四街与剑南大道交叉口民乐TOD旁;计划2027年投入使用的第三人民医院高新院区,占地105亩,规划床位1200张,距离项目约1公里。这两大顶尖三甲医院为业主的健康保驾护航。
生态
:项目半径1公里范围内生态资源丰富,有一河三公园。“一河”即门口的江安河,“三公园”分别是项目以南约500亩正在建设的三江公园、项目以北约192亩的骑龙中水湿地公园以及项目旁的江安河滨河公园。未来,这三个公园建成后将串联成一个巨大的城市绿肺。
项目卖点
【华兴锦樾河畔】销售中心电话:028-62671228 【营销中心】
楼盘详情介绍丨最新售价丨户型鉴赏丨周边配套丨在线咨询
如需了解最新房源信息_咨询优惠政策_请拨打上方售楼部电话!
声明:本文由入驻焦点开放平台的作者撰写,除焦点官方账号外,观点仅代表作者本人,不代表焦点立场。


