点将台79号首页网站_售楼处电话_6月成交价_户型图_项目详情_楼盘动态
扫描到手机,新闻随时看
扫一扫,用手机看文章
更加方便分享给朋友
【点将台79号】售楼处电话:028-62671228 【营销中心】
楼盘实时价格丨户型赏析丨配套规划丨置业顾问在线咨询
获取最新房源动态及专属优惠,敬请致电售楼处
项目位置 :东一环路内侧(春熙路-太古里商圈)
项目基础信息
均价:高层约2.5-3万元/平(精装),合院约6-10万元/平(清水)
总户数:总规划424户(高层402+合院22)
建筑类型:商业平层,办公合院
建筑面积:9.3万方
地下车位:高层地下3层,合院独立车位
得房率:高层约75%,合院(建筑面积约235-706,实得约450-1250)
项目特点:川西风格
验资要求:合院样板间验资
总价:平层约280万-1400万,合院约1500万-5400万,主力价格区间约2000-2800万/
总栋数:高层x2 合院x22
产权年限:40年
占地面积:约25亩
容积率:4.0
车位配比:约1:0.8
公摊率:约25%
物业费:高层9元/平 合院13元/平
首付比例:5 成(利率4.55)
精装/清水:高层奢装(配三大件),合院清水
平层部分户型展示(实际面积约128平 - 540平)
在售户型
建面约128平米
建面约140平米
建面约260平米
建面约280平米
建面约540平米
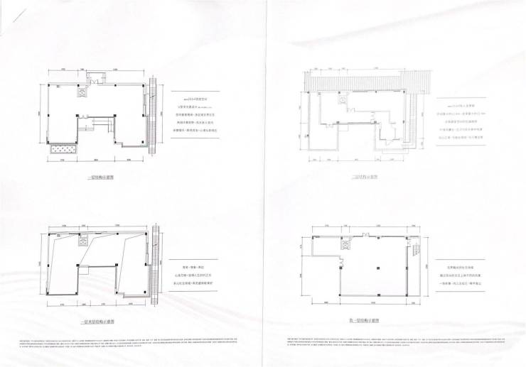
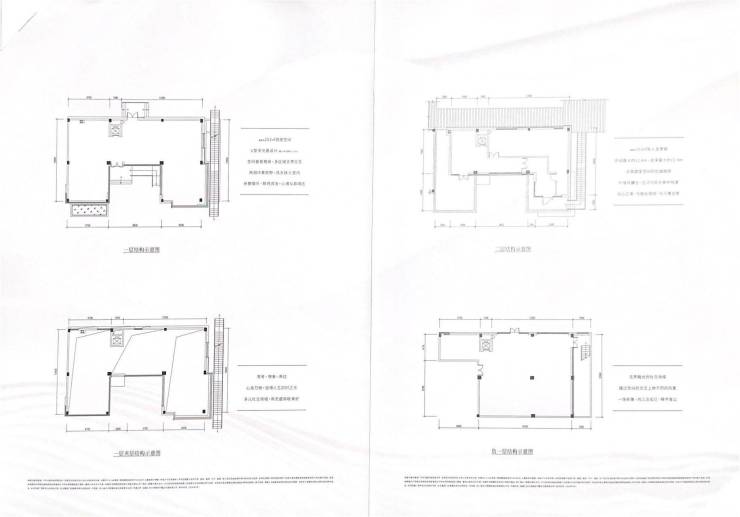
项目仅22套合院将以清水面世,青砖灰瓦,勾勒成都传统生活,1层挑高约6.4米,-1层层高约6.1米,2层层高约3.9-5.5米,直线开间达到约12-14米,室内几乎无隔断墙,自享私密停车,建面约235-706平,实得约450-1250平。
建面约258平
建面约264-292平
建面约262-302平
建面约366-600平
全屋智慧家,体验舒适生活;成都华尔道夫同款外立面玻璃,中央空调-大金,家电-博世,橱柜-威乃达,洁具-雅伯丹枫/维宝…投资自用两兼顾:
晓看红湿处,花重锦官城
点将一公里,半座成都城。直线距离仅约800米,春熙路-太古里- IFS 商圈繁荣生长,城市级的综合顶尖配套。2024年定义恒产 —— 绝对稀缺的核心地段(锦江区一环内太古里商圈)、不可复制的产品力(22套独栋+联排合院)、城市文化底蕴文脉(亦是交子纸币发源地,成都精神源点),339,九眼桥,太古里,春熙路
锦绣河山富贵华,春风吻上丹桂花
四川人民“街院巷”文化深入骨髓,点将台79号沿用传统文化城市肌理,打造城市-人文-自然共生的布局。
2栋塔楼整体抬高16米,结合蓉城竹元素,户户270度无立柱转角窗,3.6米板中层高,独立入户门厅,1.6米开间钢木装甲子母门设计,精装高配奢华典雅
由四位国际大师,同在一个项目联手,共同缔造城市新地标,实属罕见,品质超凡。市列珠玑,户盈罗绮,竞豪奢。
【开发商及物业介绍】
中国领先的城市综合运营商:卓越集团发源深圳,是业内唯一一个同时布局深圳四大中心区(福田、宝安、前海、后海)的开发商,也是这四大中心区最大的商业地产开发商,自持写字楼年租金收入超40亿元。成立27载行迹40余城,超200个项目。位列中国房地产开发企业销售22强,城市更新top2。自持物业管理规模高达700亿元,资产管理规模超1000亿元,时刻保持三档绿线范围内。

入蓉五载,布局成都"5+2"核心城区11子,选址均在成都主轴热土。
卓越物业:-成立于1999年,总部位于深圳,已在香港上市
第一个提出“礼宾服务”的物业公司
第一批加入国际金钥匙物业联盟的物业服务企业
国际金钥匙组织物业联盟副理事长单位企业…
此次将会在成都首次用到卓越最顶级的商企物业-卓品FOR ONE
高层物业费:9元/平 合院物业费:13元/平
青绿迎香瓦,灰墙映日金
【项目及会所部分展示】
【点将台79号】售楼处电话:028-62671228 【营销中心】
楼盘实时价格丨户型赏析丨配套规划丨置业顾问在线咨询
获取最新房源动态及专属优惠,敬请致电售楼处
声明:本文由入驻焦点开放平台的作者撰写,除焦点官方账号外,观点仅代表作者本人,不代表焦点立场。


