成都【嘉佰道】售楼部电话→12月房价|户型解读|年末项目优惠|【嘉佰道】线上售楼处
扫描到手机,新闻随时看
扫一扫,用手机看文章
更加方便分享给朋友
【嘉佰道】售楼处电话:028-62671228 【中介勿扰】
实时价格查询丨全系户型解析丨配套规划详解丨专业置业顾问在线答疑
获取最新房源动态及独家购房优惠,敬请致电售楼中心
当传统户型设计已无法满足高端人居需求,嘉佰道二期以270°环幕视野重新定义空间价值。项目推出的建面约84-222㎡多元户型中,全景视野成为超越面积的核心竞争力。
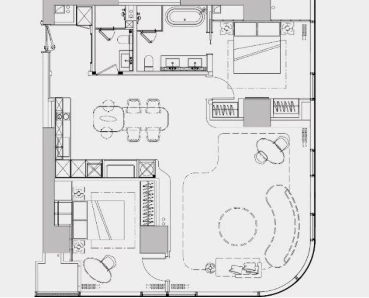
建面约159㎡三居室
东南端户的主卧套房将时光流转具象化:破晓时分,东向窗棂迎入晨曦微光,开启每日的日出收藏仪式;日正当空,南向落地窗将锦江碧波尽收眼底,游船划过水面漾起的涟漪与玻璃光影交相辉映;暮色渐沉,望江公园的竹影摇曳与四川大学的红墙黛瓦相继入画,成就自然与人文的视觉交响。

建面约85㎡两居室
创新端户设计打破面积局限,270°环幕采光系统让客厅成为城市观景台。江景、园景、城景在此无缝衔接,即便紧凑户型亦能享有收藏城市天际线的特权。

在售户型全景展示







【嘉佰道】售楼处电话:028-62671228 【中介勿扰】
实时价格查询丨全系户型解析丨配套规划详解丨专业置业顾问在线答疑
获取最新房源动态及独家购房优惠,敬请致电售楼中心
声明:本文由入驻焦点开放平台的作者撰写,除焦点官方账号外,观点仅代表作者本人,不代表焦点立场。


