成都龙湖天澜楼盘营销中心电话|最新动态:成交价参考-户型图-优惠活动详情
扫描到手机,新闻随时看
扫一扫,用手机看文章
更加方便分享给朋友
【龙湖天澜】销售中心电话:028-62671228 【营销中心】
在售户型图丨项目详情介绍丨剩余房源丨项目周边配套丨详细在线解答
如需了解最新房源信息_在售房源价格_请拨打上方售楼部电话!
基本概况
主力面积:128-143㎡带入户花园12平左右
稀缺170平顶跃带花园,预计单价2.4-2.5万
首开楼栋:1#.4#
预计总价:250-280万起
首开单价:19000-21000
项目占地:31亩
容积率:2.0
总建面:41333.54㎡
梯户比:2T2纯板式
总层高:13-16F
交付标准:精装
绿化率:30%
物业费:3.5元
物业公司:四川龙湖兴驿物业服务有限公司
层高:3米
交房时间:2026年4月30日
【区域价值】
【东安湖产城热土,跳脱传统环线局限 】
相较于十陵、行政学院、大面等东进边缘板块,东安湖板块依托“东进主轴和桥头堡”优势,跳脱传统环线和城市交通限制,自成城市中心。并在“产城热土+湖区效应“的带动之下,产业能级更高、城市界面不断优化、品牌开发商先后入驻,区域价值迎来跨越式升值。

【东安湖高端生活主场,南岸中央CAZ活力区】
项目北揽5000亩东安湖生态,南拥龙泉驿区约20万方最大商业 综合体——龙湖东安天街+吾悦广场,兼具静谧生态与繁华商圈,汇聚东安湖最好的配套资源。
周边配套
【商业】 约600米龙湖东安天街,约700米新城吾悦广场,约2.5公里万达广场,尽享湖芯醇熟生活圈
【交通】 依靠蜀都大道/驿都大道/桃都大道等四横三纵道路网,通达全城;距地铁2号线书房站约800米,远期规划有11、22、25号线
【教育】 比邻向阳桥幼儿园/小学/中学、经开区实验中学(教科院领办)、成都市实验小学(和雅校区)、成都市实验小学(和雅校区、乐雅校区)等全龄优质教育资源,板块内更有四川师范大学成龙校区、四川财经职业学院等高等学府
【医疗】 半径为4公里范围内,汇集有四川大学华西医院龙泉医院(距项目约1.6km)、成都中医药大学附属医院龙泉医院(距项目约3.5km)、龙泉驿妇幼保健院(距项目约2km)、四川省第三人民医院(距项目约3.9km)等三甲医院
【公园】 近邻东安湖公园、驿马河公园、龙泉山城市森林公园,构建优质生活圈
【东安湖显赫皇冠门仪,只为你的第一眼惊艳】
从世界奢侈酒店——曼谷四季酒店探寻脉络,臻选宝格丽同款奢石、以巧思凝萃的整面精奢石景墙,打造属于东安湖的显赫迎宾门仪,在光与影交织的奢华场景间,气派与精致、高贵与艺术浑然天成。
宝格丽同款奢石:臻选宝格丽同款蓝翡翠奢石,宛如皇冠上最耀眼的宝石
曼谷四季酒店同款:标志性的环岛水景落客区,东安湖区域极具隐奢感的前场视觉
整面精奢石景墙:搭配劳斯莱斯同级的璀璨星空顶,打造跨度超76米,高约4.2米的酒店式归家大门

【东安湖上帝曲线,微流体先锋美学】
“直线属于人类,曲线属于上帝”,承袭“曲线女王”扎哈·哈迪德的微流体设计理念,从上海门户性地标凌空SOHO汲取灵感,在与玻璃、铝板、石材等大胆碰撞之下,整体立面犹如微边框数字全屏,形成极具未来感的流体立面。
流线云翼:整体形态从龙泉山脉走势汲取灵感,取意水动云游
光感立面:采用大面积LOW-E中空玻璃,营造出水钻天幕的建筑美学
臻选奢材:为营造尊崇归家体验,单元入户大堂采用超白玻等大兴机场同款奢材

户型鉴赏
B户型-128㎡-四房两厅两卫
独立入户玄关:入户玄关+动静分区,满足多元社交,会客休憩随心切换
个性创变横厅:LDKB横厅+X空间,会客书房/电竞室/健身区,随心而变
四房高阶配置:128㎡比肩143㎡,打破常规尺度,满足高定生活需求
奢华主卧系统:独立衣帽间/酒店式主卫,建构主人的私属领地

B户型-143㎡-四房两厅两卫
空中私屿花园:私享独立电梯厅,让归家生活从入户即尊崇
LDKB家族聚厅:约40㎡LDKB厅,中西双厨/多功能客厅/宽幕阳台无缝衔接
X个性化空间:利用双次卧无梁柱设计,高阶四房可升级双套房主卧
酒店套房主卧:步入式衣帽间+酒店式卫浴,实现卧室「小家化」

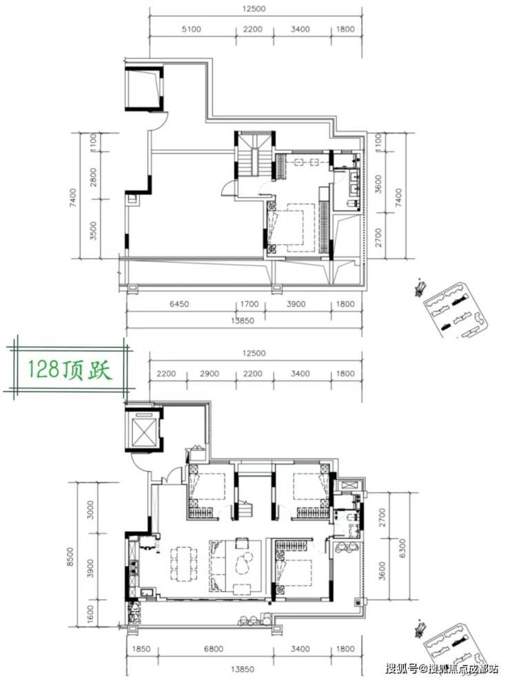
顶跃户型图
128平米顶跃
143平米顶跃
【龙湖天澜】销售中心电话:028-62671228 【营销中心】
在售户型图丨项目详情介绍丨剩余房源丨项目周边配套丨详细在线解答
如需了解最新房源信息_在售房源价格_请拨打上方售楼部电话!
声明:本文由入驻焦点开放平台的作者撰写,除焦点官方账号外,观点仅代表作者本人,不代表焦点立场。


