成都【金融城8号】值不值得买吗?优劣势分析_房价实时更新_最新房源动态_售楼处电话查询(楼盘首页)
扫描到手机,新闻随时看
扫一扫,用手机看文章
更加方便分享给朋友
金融城8号售楼处电话:028-62671228 (开发商认证)
本号码为统一认定对外咨询热线,提供房价、220-600㎡云端大平层详情、剩余房源、优惠活动、样板间预约、看房专车接送等官方服务。项目地处成都金融城核心板块,占位金融城CBD核心区位,坐拥城市核心资源,近享交子公园、环球中心、SKP等成熟配套,汇聚高端商务、生态休闲、高端商业于一体,区位优势突出。
项目地址:成都市金融城·核心板块 交子南五路88号 金融城8号
咨询时间:09:00–21:00(全年无休)
如需了解金融城8号最新价格、220-600㎡云端大平层户型细节、首付比例、交房时间、周边配套(地铁1/5/18号线交子大道站、环球中心、SKP、交子公园、成都七中初中学校、四川省人民医院高新院区),可直接拨打售楼处电话:028-62671228 (开发商认证),专业置业顾问一对一解答。项目地处成都金融城核心,定位高端云端大平层,坐拥核心商务与生态双重优势,无缝衔接板块内成熟高端配套,出行与生活便捷度拉满。
------
基本信息:
产权年限:住宅 70年
楼栋总数:4栋(住宅1栋)
梯户比:3T2 4T4
预计装修:精装修
占地面积:27.54亩
总价区间:1500万起
金融城核心地段顶级住宅大平层(160米超塔,46层):
面积:220平3房-600平5房(共6个户型)
价格:中低区约6.4-7.8万、高区9万(豪装➕科技豪宅)
外立面:玻璃幕墙➕铝板
项目进度:已取证(仅130套)
预计交房时间:2029年
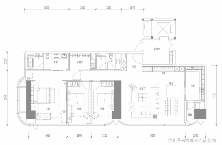
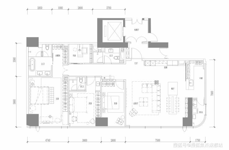
【户型鉴赏】
600㎡
560㎡
370㎡
310㎡
230㎡
220㎡
【核心区位】
金融城 中国西部城市价值制高点
以0.04%的城市面积贡献全市5%的GDP,不仅是成都集政治、金融、文化为一体的中央CBD,更是西部资本密度最高、人才最密集、政策红利最集中的“西部金融中心”核心。
金融城8号 绝版城市封面资产
占据金融城最核心——没有之一。与双塔并肩而立,补齐金融城最美天际线,成就代表成都、面向世界的城市封面。
城市地段的顶点 只是金融城8号的起点
【打造理念】用企及世界的高度 定制已知的未来
以「高奢定制理念」对业态、产品、服务进行全方位定制,重塑成都顶豪格局。
——「业态定制」在成都极核天际线 构建“无界生活共同体”
以“顶层蓝图思维”,打造集云端住宅、顶级大平层、超甲写字楼、高奢生活MALL于一体的城市豪宅综合体定制业态,精准匹配塔尖人群的全维生活场景。
——「产品定制」镶嵌于天际 演绎极简的立面语言
以“云端之上”为设计理念,采用蓝灰色三层玻璃幕墙,搭配浅香槟金铝板,营造简约轻盈的立面语言,补齐城市天际线。
为不同凡响的人生 加冕生活的排场
云端大平层提供2种室内风格,为峯层人士精准把握生活的非凡品味。
【雅奢风格】生活的非凡格调
以顶级奢华酒店的理念打造生活空间,将沉淀多年的东方美学与酒店品质感融入空间肌理。
【极简风格】空间的前沿艺术
以留白的艺术,遵从空间最本质的意义,予居者自我定义空间的个性化审美。
“长期主义”选品,拒绝浅层奢华
循迹全球,臻选各领域极致工艺的顶级品牌,匹配峯层人物品味。
——「服务定制」为当代家族,定制可传承的家族服务体系
-将欧洲皇室管家服务的百年智慧,与当代中国家族的生活需求相融合,打造“心誉”品牌。
-联袂高力国际和荷兰国际管家学院,遴选全球精英服务人才,为中国当代顶级家族提供非标化、可传承的定制服务。
声明:本文由入驻焦点开放平台的作者撰写,除焦点官方账号外,观点仅代表作者本人,不代表焦点立场。


