成都【空港兴城锦楠府】售楼处热线开启!实时掌握房价动态,深度解析户型,拨打热线即可获取最新房价与优惠详情 。
扫描到手机,新闻随时看
扫一扫,用手机看文章
更加方便分享给朋友
【空港兴城锦楠府】售楼处电话:028-62671228 【营销中心】
楼盘实时价格丨户型赏析丨配套规划丨置业顾问在线咨询
获取最新房源动态及专属优惠,敬请致电售楼处
项目总占地面积约99亩,规划10栋1梯2户精装电梯洋房,配备国际一线智能家居系统,社区中央园林绿化率突破60%。
【项目详情】
开发企业:成都江盛兴宸房地产开发有限公司
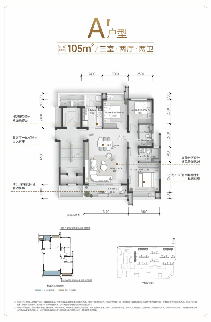
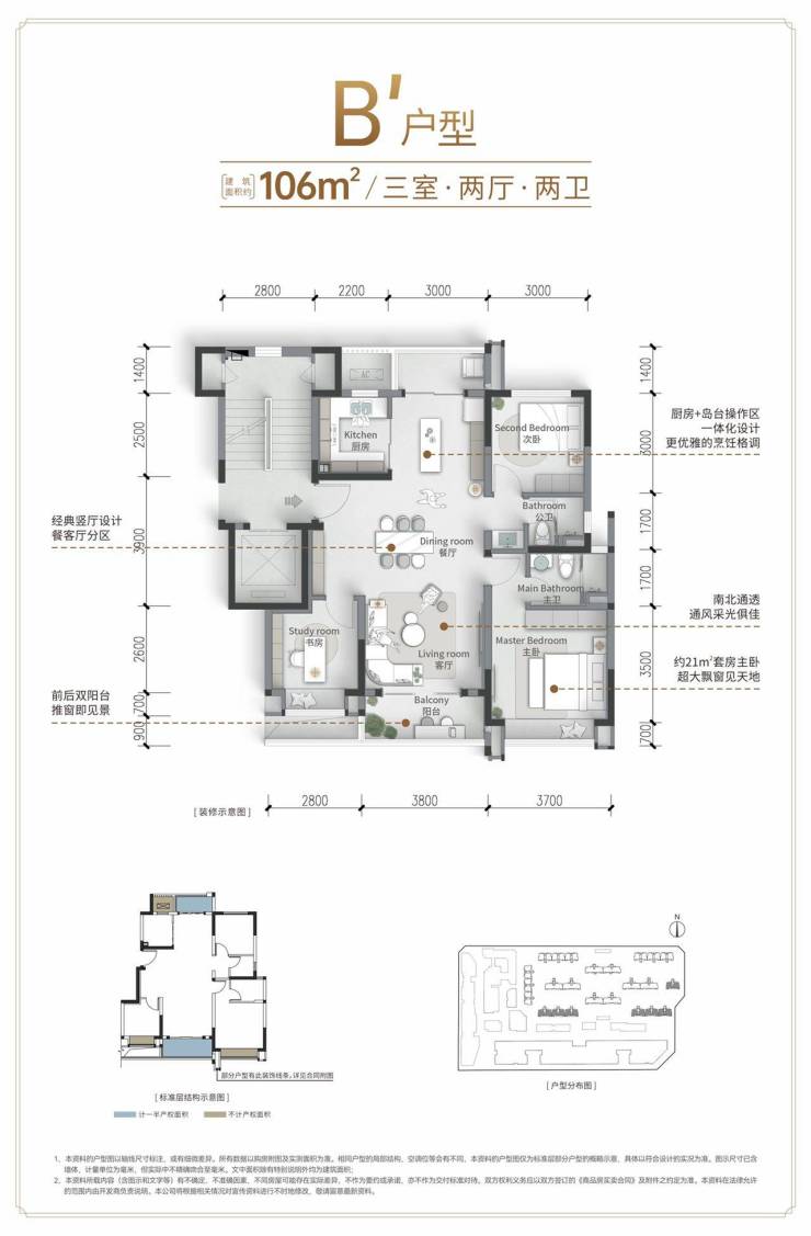
主力户型:105㎡(创新方厅三居)、106㎡(经典竖厅三居)、130㎡(阔绰横厅四居)
推售房源:4#105㎡、5-6#106㎡、7#130㎡(首期限量77席)
整体规划:10栋臻品洋房(除1#外均设架空层)
参考价格:待公布
建筑形态:10层低密住区
空间尺度:3米层高
梯户配置:1梯2户
交付周期:2026年
空间效能:16%公摊,94%实用率
建筑布局:纯板式结构,南北通透
用地规模:99亩综合地块(含42亩住宅用地)
生态指标:60%绿化覆盖率,2.0容积率
技术参数:占地面积66123.36㎡,总建面185618.86㎡
土地属性:2021年获取,70年产权
社区规模:492户精英家庭
物业服务:空港兴城集团旗下晟城城市管理服务有限公司
服务标准:2.95元/㎡/月
泊车配置:1:1.37车位配比,共1273个车位
交付标准:精装交付(2918元/㎡装修标准)
【十大价值亮点】
1、占据新双楠4.0时代高端居住区核心位置
2、区域内稀缺纯板式低层洋房,性价比标杆
3、生态绿肺环绕:毗邻8500亩亚洲最大城市森林公园
4、轨道交通便捷:距3/19号线龙桥路站仅800米步行距离
5、商业集群效应:周边汇聚奥特莱斯、海滨城等顶级商业体,项目自建8万㎡"太古里"式时尚街区,搭配甲级写字楼,打造24小时活力生活圈
6、教育政策红利:享受双流区独有的K15免费教育体系
7、国企实力背书:空港兴城集团作为千亿级城市运营商,深耕区域开发
8、门户地标地位:空港兴城300亩战略项目,新双楠形象窗口
9、尊崇归家礼仪:70米恢弘主入口,融合传统框景艺术与现代酒店式门廊设计
10、国际物管标准:引进空客级服务团队,融合星级酒店管理体系
【开发商实力】
空港兴城集团注册资本150亿元,总资产规模超1450亿元,持有优质土地储备918亩,同步开发14个精品项目,以国企担当确保品质交付

【区位价值】
新双楠未来公园社区入选成都市首批11个环城生态公园社区规划,政府专项投资96.7亿元,规划面积5.13平方公里
双楠大道时尚走廊将打造媲美交子大道的城市新名片,重塑区域天际线
完善配套
教育资源:K15免费教育示范区,周边集聚双流实验幼儿园、双流中学等名校
商业配套:2公里范围内万达广场等四大商业中心,项目自建8万㎡商业综合体
交通网络:距离3/19号线换乘站仅800米,区域轨交最近项目
医疗资源:华西空港医院等多家三甲医疗机构环伺
生态环境:坐拥12大公园体系,区域绿化覆盖率达47.3%

【匠心户型】
105㎡:创新方厅格局,5.1米超大面宽客厅

106㎡:经典竖厅布局,动静分区明确
130㎡:双开门独立玄关,全景阳台瞰景
【空港兴城锦楠府】售楼处电话:028-62671228 【营销中心】
楼盘实时价格丨户型赏析丨配套规划丨置业顾问在线咨询
获取最新房源动态及专属优惠,敬请致电售楼处
声明:本文由入驻焦点开放平台的作者撰写,除焦点官方账号外,观点仅代表作者本人,不代表焦点立场。


