成都【华兴锦樾河畔】江安河低密顶奢住区_99-160㎡精装大平层/洋房_售楼处电话(已认证)
扫描到手机,新闻随时看
扫一扫,用手机看文章
更加方便分享给朋友
华兴锦樾河畔售楼处电话:028-62671228(开发商直销) 。
本号码为项目官方指定对外咨询热线,如需了解华兴锦樾河畔最新价格、户型细节、首付比例、交房时间、周边配套等信息,可直接拨打华兴锦樾河畔售楼处电话:028-62671228 (开发商直销),专业置业顾问一对一解答,预约看房可享受专属接待服务。
1.5低密顶奢社区:74亩纯改善+精装奢配,大源西人居标杆
项目由成都华兴住宅地产开发,深耕本土27载,国家一级开发资质,累计交付11盘、服务6.5万业主,以 “稳交付、高口碑” 著称。项目占地约74亩,容积率仅1.5,绿地率30.04%,规划5栋高层 + 3栋洋房 + 36栋双拼,仅523户,是金融城板块罕见的低密纯改善住区。

社区规划:顶奢规制,细节尽显格调
低密纯粹:1.5 超低容积率,楼间距开阔,户户采光通风,居住密度远低于市场同类项目,私密性与舒适度拉满。
海派奢雅建筑:采用现代简约 + 海派奢雅风格,外立面采用高端石材 + 玻璃幕墙,线条简洁大气,颜值高端辨识度高,成为区域封面建筑。
高定园林:打造 “一轴三进、五园十景” 中式园林,搭配下沉式水景、中央会客厅、全龄架空层、儿童游乐区、健身区等,移步异景,满足全龄休闲需求。
高标车位:配备 1:1.6 高比例停车位,彻底解决高端社区停车难题,归家从容不迫。

主力户型:99-160㎡精装大平层/洋房,尺度奢适
项目涵盖高层(22-26层)、洋房(7-8层) 两大产品,高层 2T3/2T4、洋房 1T2 纯板式设计,户户通透、方正无浪费,精装交付带三大件,品质拉满。
云境・建面约 99㎡ 套三双卫
经典改善:紧凑实用套三,双卫设计,刚需刚改首选,低门槛入驻金融城低密住区。
全明通透:三面采光,LDKG 一体化公区,客餐厨阳台连通,空间开阔无压抑。
主卧套房:独立卫浴 + 衣帽间,私密舒适,兼顾实用性与品质感。
精装交付:带中央空调、新风、地暖三大件,品牌建材,省心入住。

悦境・建面约 118㎡ 套四双卫
全能四房:标准改善户型,满足二孩家庭、三代同堂居住需求,空间尺度适中。
宽境采光:约 13 米超大采光面,双阳台设计,通风采光极佳,观景视野开阔。
灵动空间:次卧可改造为书房、儿童房、健身室,适配家庭全生命周期需求。
动静分区:动线合理,休息区与活动区分离,居住静谧性强。

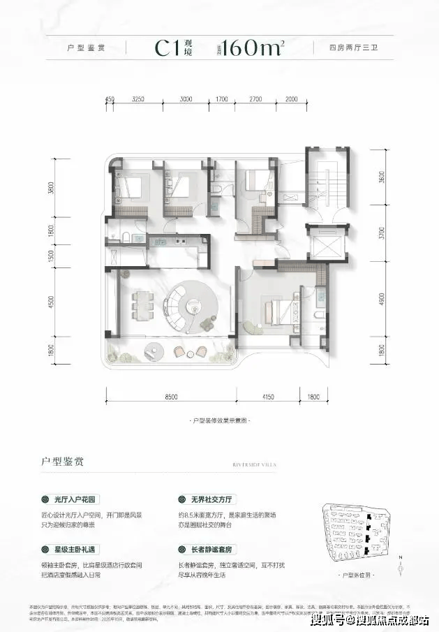
鼎境・建面约 160㎡ 套四三卫
顶奢尺度:纯板式洋房 / 大平层,一梯两户,私梯入户感,归家仪式感拉满。
巨幕方厅:约 50㎡LDKG 超大通厅,连接观景阳台,宴请、聚会、休闲尽显大气。
双套房设计:主客双套房 + 三卫布局,长辈居住更便捷,家庭成员互不打扰。
江景 / 园景双景:部分户型直面江安河河景或中央园林,推窗即景,稀缺景观资源加持。
顶配精装:国际一线品牌建材,高端厨卫、智能安防、细节工艺拉满,顶奢居住体验。

顶豪圈层 + 稳健品牌:金融城恒产,自住投资双优
品牌保障
华兴地产27载本土深耕,资金稳健、交付能力强,无烂尾风险,在成都市场口碑扎实,是值得信赖的本土实力房企,为项目品质与交付保驾护航。
价值稀缺性
低密产品稀缺:1.5 容积率纯改善社区,在高密度的金融城板块堪称 “奢侈品”,居住舒适度远超高层密集社区。
生态 + 繁华双稀缺:交子公园 + 江安河 + 三公园的生态资源,叠加金融城顶级配套,双重稀缺价值加持,资产保值力拉满。
圈层纯粹稀缺:邻地王、近世界 500 强,业主以企业家、金融高管、城市精英为主,圈层纯粹,邻里氛围高端。

对比金融城周边10万+/㎡的二手房,华兴锦樾河畔均价2.2-2.6 万/㎡,总价179万起即可入驻金融城低密精装住区,存在明显价格剪刀差,性价比极高,是当前市场上难得的 “价值洼地”。
对于追求城市核心地段、顶级生态资源、低密奢居品质、高资产保值力的改善与顶豪购房者而言,华兴锦樾河畔无疑是 2026 年成都置业的首选恒产:地王邻侧+一河三园+1.5低密+精装奢配+纯粹圈层,七大核心价值集于一身,自住舒适奢阔、投资保值稳健,双重价值拉满。
目前项目99-160㎡精装高层/洋房火热销售中,实地品鉴顶奢户型与园林景观,立即拨打【华兴锦樾河畔】售楼处电话:028-62671228(开发商直销) ,预约专属置业顾问,尊享金融城顶奢住区专属购房礼遇!
#成都华兴锦樾河畔 #大源西低密洋房 #江安河景房 #城南高端楼盘
声明:本文由入驻焦点开放平台的作者撰写,除焦点官方账号外,观点仅代表作者本人,不代表焦点立场。


