成都【人居九林语鎏云阁】最新价格信息-售楼处电话|热销户型全面解析|特价房优惠政策|线上销售中心

搜狐焦点成都站 2025-09-16 12:18:16
用手机看
扫描到手机,新闻随时看

扫一扫,用手机看文章
更加方便分享给朋友

项目自带约3000㎡花园悦街,聚集ICC、万象城、光环中心、华宇广场(约600m)、和悦广场(约1.5km)等主城级大型商圈。 九林语鎏云阁,以约2.5精致容积、近1000㎡无界主题架空层、全维改善臻装空间…

人居九林语鎏云阁】销售中心电话:028-62671228 【营销中心】

楼盘详情介绍丨最新售价丨户型鉴赏丨周边配套丨详细在线解答

如需了解最新房源信息_咨询优惠政策_请拨打上方售楼部电话!

【项目概况】

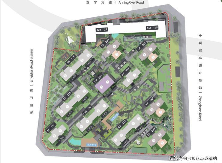
项目占地:约63亩

开发商:成都人居成兴置业有限公司

产品面积:约118-129-143-187㎡臻装大平层

楼栋总数:11栋住宅、2栋商业

总户数:687户

停车位:988个

容 积 率:2.5

绿化率:约25%

得房率:约100%

楼层情况:1#2#3#6#9#10#:17F;11#:22F;4#5#7#8#:26F

单层层高:118/129㎡:3米;143㎡:3.1米;187㎡:3.15米

梯户比:2T2、2T3

装修标准:精装(3380元)

物业公司:(待定)

物业费:预计3.0元/㎡/月

拿地时间:2023.10.26

交房时间:2027.6.30

在售:3#4#6#

单价:约30000-31000元/㎡

118㎡预计总价:370万左右;129㎡预计总价:390万左右;143㎡预计总价:430万左右

【户型鉴赏】极致户型设计 迭新空间场景想象

花兮间——建面约118㎡

风澜舍——建面约129㎡

山禾悦——建面约143㎡(方厅)

云栖画——建面约143㎡(边厅)

璞隐归——建面约187㎡

【项目简介】

人居九林语鎏云阁,作为人居全新改善著作。项目位于2.5环内,大观TOD旁,双公园环伺,聚集国际化水平的商业、商务及生活中心。项目整体打造品质低密小高,同时呈现8000㎡城东首席海派复古极致园林,将当代生活理念与经典海派美学结合,演绎精致奢雅的美学场景空间。

【品牌篇】成都领航级国企 布局4城20区

成都兴城人居,市属国有城市开发企业首位,深耕成都20载,深度参与城市更新,致敬时代发展,已累计开发商品房项目70余个,布局成都20个区(市)县,自2017年以来,综合实力屹立成都第一梯队。

【区域篇】承袭壕奢基因 新启攀成钢2.0时代

东大街,成就了攀成钢,攀成钢,也成就了东大街。东大街,一条主轴贯穿向东,起于春熙、太古里,汇聚高能产业,高奢商业,同时汇聚D10、伊泰天骄、仁恒滨河湾等众多壕宅,板块价值再度跃迁!

【配套篇】

主城罕见·优交通

双环线:2.5环及三环双环线

双主轴:安宁河路和东大街

双地铁:7号线大观站/2号线东客站

双TOD:大观TOD(规划中)/东客站TOD(2号线)

国际商圈·醇生活

项目自带约3000㎡花园悦街,聚集ICC、万象城、光环中心、华宇广场(约600m)、和悦广场(约1.5km)等主城级大型商圈。

高知学府·优教育

成都英华小学(约1.5km)、成都英华中学(约1.5km)、蓉城小学(芙蓉校区约200m)

锦绣青城幼儿园(斑竹分园)、成都大学附属中学(约800m)等。 均在1.5公里范围内。

绿境环伺·临公园

项目紧邻约410亩的塔子山公园(约1km)、约125亩东站绿轴公园(约1km)。

健康保障·医院

成都友谊医院(约600m)、锦欣妇女儿童医院(约800m)

【项目篇】海派大宅,悦己主义高光新著

九林语鎏云阁,以约2.5精致容积、近1000㎡无界主题架空层、全维改善臻装空间,高定一座雅奢与美感并存的纯粹之境。

【项目亮点规划】

九林语鎏云阁:迭新城东改善新作

大面LOW-E玻璃+真石漆+铝板

约8000㎡成都首席海派复古圆林

全景入户光厅,270°环幕景观舱

【精质立面】光幕美学新颜 刷新区域天际峯面

九林语“林光生活美学”的全新演绎,特选真石漆搭配金属铝板,演绎近代摩登风范,争耀时代的双层LOW-E沐光玻璃,尽展天际线律之美。

【景观造极】纯粹园林新境 演绎酒店式精神哲学

约8000㎡城东首席海派复古园林,当代生活理念与经典海派美学相结合,将海派摩登生活方式与高定仪式感酒店空间相融合,演绎精致奢雅的美学场景空间。

【奢华礼序】高定公区新景 境遇新派尊崇人生

以Andaz安达仕酒店之思,雕琢超宽幅横轴归家府门、定制级单元入户大堂、典藏级地下星空光厅,成就城市新贵的精神归属与审美表达。

【花园商街】约3000㎡花园悦街 领航美好生活

利用白色框架重新界定、围合、包裹花园式商街,汇聚极富调性和质感的商业品牌,演绎城市人文秀场。

【人居九林语鎏云阁】销售中心电话:028-62671228 【营销中心】

楼盘详情介绍丨最新售价丨户型鉴赏丨周边配套丨详细在线解答

如需了解最新房源信息_咨询优惠政策_请拨打上方售楼部电话!

声明:本文由入驻焦点开放平台的作者撰写,除焦点官方账号外,观点仅代表作者本人,不代表焦点立场。