成都【世豪一墅江安】售楼处(欢迎您)首页网站_售楼处电话丨楼盘详情-单价-户型

搜狐焦点成都站 2025-09-15 13:30:45
用手机看
扫描到手机,新闻随时看

扫一扫,用手机看文章
更加方便分享给朋友

1. 商业:坐拥国际城南超40万方顶级商业配套【世豪广场、世豪广场南馆、鹭洲里、原野REGULAR等】;2km范围内超22万方品质商业环绕【东航中心-云锦天地、北京华联、茂业时代广场(在建中)】,满足日常生…

世豪一墅江安】售楼处电话:028-62671228 【营销中心】

楼盘实时价格丨户型赏析丨配套规划丨置业顾问在线咨询

获取最新房源动态及专属优惠,敬请致电售楼处

基本信息:

总 占 地:300亩

产 权:70年

容 积 率:1.5

绿 化 率:30%

总 户 数:703

物 业 费:4.9元/㎡

楼 层 总 高:6

层 高:3.1-3.6m

交 付 标 准: 清水交付

交 付 时 间:2025.1.1

开 发 商:世豪

总 楼 栋:27栋

总 户 数:340多

总 楼 层:上下叠(地上5层,地下1层)

楼 层:上叠3层;下叠3层;中叠3层

单 层 高:3.1-3.6m

物业公司:自持

付款方式:按揭/全款

户型朝向:南北朝向

产 品 面 积:A户型 建面约346㎡~503㎡;B户型 建面约180㎡~271㎡;C户型 建面约168㎡~230㎡;

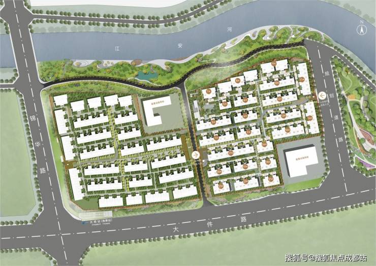
项目总平图

1)项目概况:总占地300亩,住宅约134亩,分A、B地块打造纯叠墅产品;

2)全世界最大开窗比超80%;

3)私家电梯入户,享受独栋合院级墅感礼仪尊崇感;

项目价值

270度公园环绕,紧临江安河,坐享城南岛居生活

项目配套

1. 商业:坐拥国际城南超40万方顶级商业配套【世豪广场、世豪广场南馆、鹭洲里、原野REGULAR等】;2km范围内超22万方品质商业环绕【东航中心-云锦天地、北京华联、茂业时代广场(在建中)】,满足日常生活所需;

2. 交通:20分钟无缝接驳国际城南大源、金融城商圈和顶级医疗教育配套;两地铁(30号线、8号线双地铁)环绕6站或趋车15分钟即达金融城;

3. 公园: 篮球公园、3.2万方河岸公园、56亩运动公园环绕;

4. 教育:K15全龄段教育配套,省一、成都排名前十——棠湖外国语学校仅一街之隔;金苹果、985、211四川大学——顶级学府加持;

5. 医疗:华西国际医院(三甲)、西航港妇幼保健院、双流仁港医院(一甲私立)、第一人民医院(门口地铁直达)

户型图

A户型上叠:约503㎡

A户型中叠:约345㎡

A户型下叠:约443㎡

B户型上叠:约180㎡

B户型中叠:236㎡左右

B户型下叠:271㎡左右

C户型上叠:168㎡左右

C户型中叠:220㎡左右

C户型下叠:230㎡左右

【世豪一墅江安】售楼处电话:028-62671228 【营销中心】

楼盘实时价格丨户型赏析丨配套规划丨置业顾问在线咨询

获取最新房源动态及专属优惠,敬请致电售楼处

声明:本文由入驻焦点开放平台的作者撰写,除焦点官方账号外,观点仅代表作者本人,不代表焦点立场。