蔚蓝卡地亚湖滨城房价(6月)_主力户型解析_蔚蓝卡地亚湖滨城售楼处电话_限时优惠预约通道_楼盘最新动态
扫描到手机,新闻随时看
扫一扫,用手机看文章
更加方便分享给朋友
【蔚蓝卡地亚湖滨城】售楼处热线:028-62671228 【营销中心】
预约咨询〢提前联系咨询售楼中心置业顾问〢进行预约登记来访!
预约优惠〢售楼中心置业顾问为您买房保驾护航〢—匠心钜制恭迎品鉴 !
蔚蓝湖滨1号以艺术为引擎的湖滨城市,以世界级城市地标新加坡滨海湾为蓝本,融合纽约哈德逊广场和悉尼达令港的造城精髓,通过湖滨商业、文化艺术中心、星级酒店等多重业态的植入,正在迅速成长为具有全球影响力的湖滨商业目的地和文化艺术新座标。
项目位于天府新区怡心湖板块,是LA CADIERE匠心雕琢的世界级湖滨城市范本。
一个典型的豪宅配置是依托于顶级的城市资源+自然资源诞生的,LA CADIERE选择在天府新区怡心湖打造世界级湖居范本,正是看中了天府新区的发展政策与怡心湖的优越自然资源。
怡心湖作为天府新区的核心板块,上承高新区,下启天府新区 ,是新老城市CBD的交汇处。地处成都正南,2016年怡心湖板块概念的流出,经过7年时间沉淀,从一纸草稿到园区落地,如今怡心湖板块强势崛起,是引领公园城市示范建设的重要承载地。
湖滨城地处城南炙手可热的环湖一线地段,以占据城市核心位置为卖点,秉持着“以人为本”的前瞻国际化理念,让其跻身于高端圈层,在多重优势的保护下,让项目本身成为代表高品位与圈层的符号。
周边高品质配套
交通:
5号线+19号线双地铁交汇,换乘怡心湖站点D1出口
剑南大道+五环路+地铁TOD立体交通
教育:
天府三小、天府第四中学、成都乐盟国际学校
医疗:
京东方医院;天府华西医院
商业:
仁恒国际社区项目、梦想城购物中心、伊藤洋华堂怡心湖商业综合体、中海环宇坊、万科生活广场、红星美凯龙等商业中心、日航酒店等
蔚蓝湖滨城三大商业集群:北岸商业+南岸商业+枢纽商业
蔚蓝湖滨艺术中心(新加坡国宝级大师曾仕乾先生设计)
双五星级酒店配置:全球十大酒店管理集团——凯悦酒店集团旗下阿丽拉ALILA酒店+凯悦尚萃HYATT CENTRIC酒店
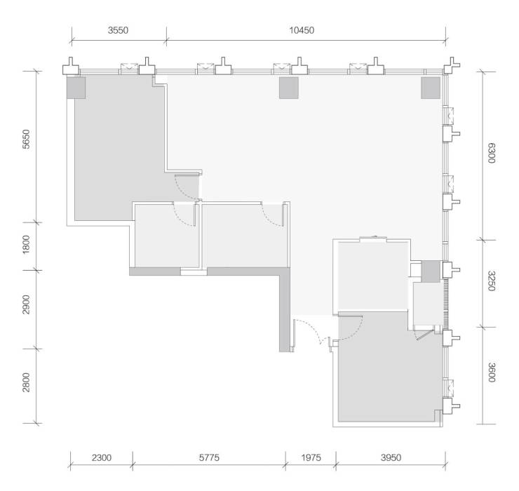
户型赏析
产品主力面积段:300-630平米
一房一价,价格区间:¥300万-2400万(精装交付)
148平户型
168平户型
304平户型
631平户型
【蔚蓝卡地亚湖滨城】售楼处热线:028-62671228 【营销中心】
预约咨询〢提前联系咨询售楼中心置业顾问〢进行预约登记来访!
预约优惠〢售楼中心置业顾问为您买房保驾护航〢—匠心钜制恭迎品鉴 !
声明:本文由入驻焦点开放平台的作者撰写,除焦点官方账号外,观点仅代表作者本人,不代表焦点立场。


