成都【蔚蓝卡地亚蓝庭】售楼处电话|最新售价参考|在售户型图集_面积段展示|优惠活动_特价房源|项目详情快速了解
扫描到手机,新闻随时看
扫一扫,用手机看文章
更加方便分享给朋友
【蔚蓝卡地亚蓝庭】销售中心电话:028-62671228 【营销中心】
在售户型图丨项目详情介绍丨剩余房源丨项目周边配套丨详细在线解答
如需了解最新房源信息_在售房源价格_请拨打上方售楼部电话!
楼盘介绍
基本信息:蔚蓝卡地亚蓝庭位于成都天府新区的LA CADIERE花园城,由成都花园城蔚蓝卡地亚置业有限公司开发,总建筑面积达105,048.46平方米。
建筑设计:项目占地30亩,由3栋高达35-44层的住宅和1栋商业组成,是一座超高层豪宅。由新加坡国宝级建筑大师曾仕乾先生设计,采用全幕墙公建化立面,三栋建筑体高低错落,依次排布,极具现代都市感。
园林景观:遵循亭台楼阁的精髓,通过精致的细节考量层层叠景,营造出一方静谧的绿植庭院花园,让居住者在繁忙的都市生活中找到宁静之所。
项目优势
高端品质:作为蔚蓝卡地亚旗下的高端住宅项目,在建筑材料、施工工艺等方面都有着严格的标准,确保房屋质量上乘。
大师设计:新加坡国宝级建筑大师曾仕乾亲自操刀,将现代建筑美学与东方意境完美融合,从建筑外观到内部空间布局,都展现出独特的设计魅力。
物业服务:由LA CADIERE商管集团旗下自有物业品牌蔚蓝物业提供服务,具备卓越的高端物业管理经验,为业主提供安全管控、品质管理、增值服务、装修管控、礼宾风尚等高品质服务。
居住舒适度:3梯2户的设计,建面约250平方米的奢阔大平层,给予业主更高的居住自由度与从容感。别墅尺度的阔绰客餐厅、艺廊化走廊设计等,兼顾了私密性与实用性,将功能性与尺度感做到极致。
区域优势
核心地段:位于成都天府新区CBD核心区域,紧邻地铁1号线武汉路站,直线距离仅约502米,同时S5号线和19号线红莲站也近在咫尺,交通十分便捷,能快速到达城市各处。
发展潜力:天府新区是成都未来发展的重点区域,规划有大量的商业、商务、文化等设施,随着区域的不断发展,房产价值有望得到进一步提升。
城市界面新:区域内多为新建建筑,城市界面整洁美观,基础设施完善,生活环境优越。
周边配套
交通:除了临近地铁线路外,周边还有多条主干道,方便自驾出行,能快速连接市中心以及其他重要区域。
商业:花园城本身配备有湖滨公园以及繁华的商业街,周边还有其他商业综合体,满足业主日常购物、餐饮、娱乐等需求。
教育:附近有多个优质教育资源,涵盖从幼儿园到中小学的全龄段教育机构,为孩子提供良好的教育环境。
医疗:周边有多家医院和医疗机构,为业主的健康提供保障。
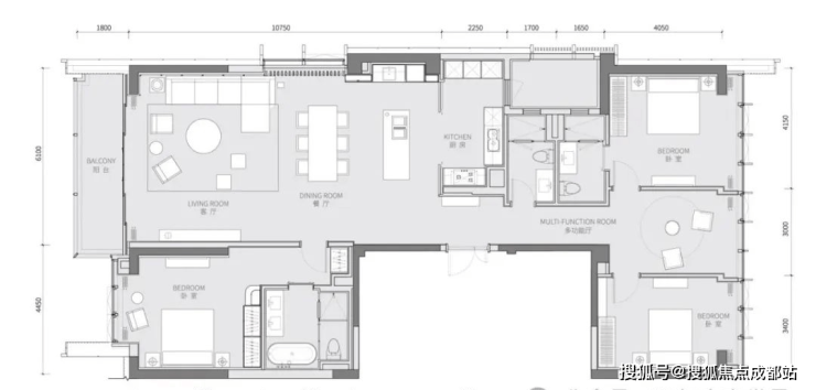
户型解析
建面约235-260㎡奢阔大平层
3梯2户设计,保证了业主的隐私和出行便利性。户型方正,空间利用率高,客餐厅尺度阔绰,视觉冲击感强,能满足家庭聚会和大型宴请等需求。双套房设计,为主人及长辈提供了独立的居住空间,保证了居住的私密性和舒适度。

建面约520㎡一层一户楼王户型
一层一户的设计,提供了极致的居住体验,拥有独立的电梯厅,空间开阔。超大的客厅和卧室,可根据业主的需求进行个性化的空间布局,满足高端客户对于居住空间的极致追求。

【蔚蓝卡地亚蓝庭】销售中心电话:028-62671228 【营销中心】
在售户型图丨项目详情介绍丨剩余房源丨项目周边配套丨详细在线解答
如需了解最新房源信息_在售房源价格_请拨打上方售楼部电话!
声明:本文由入驻焦点开放平台的作者撰写,除焦点官方账号外,观点仅代表作者本人,不代表焦点立场。


