成都招商时代公园(售楼处)欢迎您-售楼处电话|楼盘动态 /价格/地址/项目详情速查攻略

搜狐焦点成都站 2025-09-17 10:51:34
用手机看
扫描到手机,新闻随时看

扫一扫,用手机看文章
更加方便分享给朋友

按照"一城双核"规划,重点打造三大产业功能区,构建"成都未来城市新中心、成渝双城经济圈创新引擎、国家级新区发展标杆、公园城市示范区"。 787亩城市综合体,创新实践中央商务公园(CBP)模式,通过POD+TO…

招商时代公园】售楼处电话:028-62671228 【营销中心】

楼盘实时价格丨户型赏析丨配套规划丨置业顾问在线咨询

获取最新房源动态及专属优惠,敬请致电售楼处

【项目核心参数】

占地面积:54号地块51.8亩 59号地块36亩

总建筑面积:107100平方米

容积率:3.1 绿化率:35%

建筑形态:21-25层高层 梯户配置:2梯2户/2梯3户

交付标准:54号地精装5000元/㎡ 59号地精装4100/㎡

预计交付:54号地2025年9月 59号地2026年3月

车位配置:54号地机动车1293个 非机动车1074个 59号地654个

物业服务:招商积余 物业费:4.18元/㎡/月

房源总量:54号地618套(12栋) 59号地462套(6栋)

当前推售:59号地首开在售

产品信息:建面143-162㎡ 单价2.8-3.3万/㎡ 总价410-530万

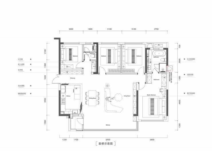
主力户型鉴赏

162㎡四房两厅双卫

143㎡四房两厅双卫

品牌实力

双世界500强央企背书

1.招商局集团创立于1872年,是中国近代民族工商业的开拓者。

2.作为多元化产业集团,核心业务涵盖综合交通、特色金融、城市综合开发运营三大领域。

3.香港总部运营逾百年,是最早扎根香港的中资企业代表。

4.招商蛇口作为集团旗下城市开发旗舰,截至2022年全球布局超110城,开发项目620余个,服务客户超千万。

区域价值解析

天府新区:国家级战略新区

作为国务院批复的国家级新区,天府新区肩负国家战略使命。按照"一城双核"规划,重点打造三大产业功能区,构建"成都未来城市新中心、成渝双城经济圈创新引擎、国家级新区发展标杆、公园城市示范区"。

天府总部商务区核心区位

规划面积28.6平方公里的天府总部商务区,以8.5平方公里中央商务区为核心,聚焦总部经济集群发展,打造世界级中央商务区。招商时代公园正处这一核心区域。

成都科学城创新引擎

重点发展数字经济与科技创新产业,构建研发产业集群,布局未来产业新高地。

天府数字文创城

以"1+2"产业体系为核心,重点培育网络视听产业,配套发展创意设计与文博旅游。

招商时代公园:见证城市进化

787亩城市综合体,创新实践中央商务公园(CBP)模式,通过POD+TOD+VOD三维规划,重塑城市价值。

3D融合规划理念

?POD公园城市典范

创新"公园里建城"理念,构建三级公园体系:

· 点状社交公园:利用建筑间隙打造生活化社交空间

· 线性绿廊系统:2160米人字绿廊连接生态网络

· 面状城市公园:毗邻3450亩天府公园

?TOD立体交通网络

构建"地面减密+地下加密"立体交通:

· 5条地铁线路无缝衔接

· 独立地下车行系统

· 高效慢行网络

?VOD活力生态系统

· 优质教育资源环伺:天府七中、元音书院等

· 双地标引擎:396米超塔+300米商务地标

· 人字绿廊+福州路双中轴布局

天樾境C区价值解析

54号地块占据396米地标旁绝佳位置,三面公园环抱,打造台地式峰景社区。

川西十景园林体系

以"雪山下的公园城市"为蓝本,打造:

· 一轴:水系迎宾归家礼序

· 九幕:川西秘境景观序列

· 30米阔尺主入口+300㎡曲水流觞庭院

建筑艺术美学

超镜体立面设计,采用:

· 香槟金铝板镶边

· 米灰色仿石漆

· 大面宽落地窗

· 蓝灰LOW-E幕墙

精工户型展示

D户型/226㎡四室两厅三卫

C户型/193㎡四室两厅三卫

B户型/174㎡四室两厅双卫

A户型/143㎡四室两厅双卫

【招商时代公园】售楼处电话:028-62671228 【营销中心】

楼盘实时价格丨户型赏析丨配套规划丨置业顾问在线咨询

获取最新房源动态及专属优惠,敬请致电售楼处

声明:本文由入驻焦点开放平台的作者撰写,除焦点官方账号外,观点仅代表作者本人,不代表焦点立场。