成都【高投启鸣宸序】售楼部电话(已认证)_ 线上售楼中心首页_最新售价_在售户型_1月优惠活动_查看项目进度
扫描到手机,新闻随时看
扫一扫,用手机看文章
更加方便分享给朋友
【高投启鸣宸序】售楼处电话:028-62671228 【官方认证】
楼盘实时价格丨户型赏析丨配套规划丨置业顾问在线咨询
获取最新房源动态及专属优惠,敬请致电售楼处
【启鸣宸序基本信息】
占地面积:30.2亩
目前在售楼栋:1、2栋
面积:120-143平
单价:3-3.5万
总价:359-510万
绿地率:35%
总户数:383户
总层高:17层
梯户比:2T2
装修标准:3000元
交房时间:2027年10月
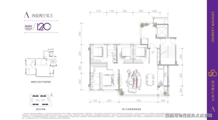
建面约120㎡ | 超极四房•光厅双厅双卫
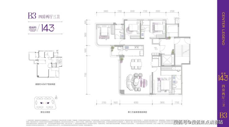
建面约143㎡ | 超感四房•光厅双厅三卫 启鸣宸序
在售户型
【项目核心价值】
立体交通:两横三纵-新通大道 | 新程大道 | 天府大道|蓉遵高速 | 梓州大道;地铁500米内6号线换乘通达全城 ;三大TOD 红星路车辆基地TOD(规划中) | 新川路站TOD(规划中) | 陆肖TOD(在建中)
名校环伺:一街之隔?上海师范大学成都海川学校·K12、高新区实验小学、新川科技园小学
公园生态:约865亩新川之心公园、约210亩兰花博览园、约250亩新川南北环伺公园、约174亩新川湿地公园
商业环绕:2km西南首个万象天地(在建)、2km远达购物中心、伊藤洋华堂(蓝润店)、4km山姆会员店、2/4/8号邻里中心
【高投-城市地标建设者与运营者】
国企担当,与高新发展共生共长
成都高投成立于1996年,秉承“发展高科技、实现产业化"的宗旨,二十余载匠心深耕,已成为集城市开发运营、产业投资和资本运作、电子信息产业实业为一体的综合性国有资本投资运营公司。
旗下高投产城集团为新时代高品质产城融合综合运营商,已建成市政道路653公里、学校136所、公服配套1090万㎡,打造欧洲中心、天府软件园、AI创新中心等地标建筑以及产业园区,运营铁像寺水街、交子大道等地标商业项目,是高新区发展的重要参与者和推动者。

2025年,高投置业在产品力上的一次最强输出——「启鸣」系,以新派改善之力,将再次刷新城市人居新标准,也势必也将成为2025年度置业成都必看红盘。
【区域价值】
成都高新区是经国务院批准的全国首批国家级高新区
新川整体规划约10.34平方公里,科产城一体化,发展人工智能、5G信息、生物医疗等世界前沿产业。以新加坡花园城市为规划蓝本,板块整体容积率仅约1.4,整区约52%土地用于生态与公建,实现“推窗见绿、步行入园”的宜居范本。
世界大师联袂巨献,低密公园城市宜居范本
由美国AECOM、新加坡Surbana、Grant Associates以全球顶尖设计理念规划新川,聚合四川省文化艺术中心等人文地标、新加坡特色滨湖商业等新消费中心,打造15分钟国际社区。

三大前沿产业布局
5G智慧、人工智能、前沿医学产业蓬勃发展,已聚集中移动(成都)研究院、新华三、鼎桥、百度、欧珀、中科创达等头部企业及高成长企业100余家;世界500强企业美敦力设立的全球第7个、中国第2个医疗创新中心在新川正式开业运营。目前,园区已汇聚180余家高能级企业。

【周边配套】
交通圈——立体交通,纵横全城路网
【两横三纵】「新通大道 | 新程大道 | 天府大道|蓉遵高速 | 梓州大道」
【公共交通】地铁6号线-新通大道站(距离17亩项目约300米)新川站(距离30亩项目约500米)三大TOD 「红星路车辆基地TOD(规划中) | 新川路站TOD(规划中) | 陆肖TOD(在建中)」
名校圈——优质名校,城南精英主场

人文圈——人文高地,一公里即达的城市文化场
四川省文化艺术中心(第37届大众电影百花奖举办地)|新川兰花文化博览园|新川博物馆(即将开建)| (2.6km)高新体育中心(2024汤尤杯举办地)
生态圈——千亩公园,让生活住进自然
新川之心中央公园|新川湿地公园|新川环城公园
商业圈——繁华商圈,品质消费目的地
(2km)西南首个万象天地(建设中)|(2km)蓝润置地广场(伊藤洋华堂)|(2km)远大购物中心|(4km)山姆会员店|2/4/8号邻里中心

医疗圈——权威医疗 健康护航
(1.7km)四川省中西医结合医院高新院区(三甲医院)| (3.8km)四川大学华西第二医院高新区妇女儿童医院
【高投启鸣宸序】售楼处电话:028-62671228 【官方认证】
楼盘实时价格丨户型赏析丨配套规划丨置业顾问在线咨询
获取最新房源动态及专属优惠,敬请致电售楼处
声明:本文由入驻焦点开放平台的作者撰写,除焦点官方账号外,观点仅代表作者本人,不代表焦点立场。


