成都【中海锦叁号院】售楼处电话|11月房价动态|在售户型参考|特价房信息|本月优惠申请
扫描到手机,新闻随时看
扫一扫,用手机看文章
更加方便分享给朋友
【中海锦叁号院】销售中心电话:028-62671228 【中介勿扰】
楼盘详情介绍丨最新售价丨户型鉴赏丨周边配套丨详细在线解答
如需了解最新房源信息_咨询优惠政策_请拨打上方售楼部电话!
【项目基础信息】
开 发 商:成都海赢房地产开发有限公司
总层 高:洋房7-14层、上下叠拼
层高:143-173㎡:3米 ;198㎡:3.1米;249㎡:3.15米 叠拼:3.4㎡
梯户比:143-198㎡ 2T2;248㎡一层一户、一梯一户
在售产品:洋房、叠拼
占地面积:121亩
建筑面积:133860㎡
面积段:洋房143-170-198-248㎡;叠拼290㎡、330㎡
单价:3.3-4万
总价:480-1600万
容 积 率:1.8
总 户 数:657户
车位:1073个
车位比:1:1.6
拿地时间:2024.7.17
交房时间:2027年3月底前
装 标:精装带三大件
物 业:4.8元
物业公司:中海物业
地 铁 :4号线蔡桥站约600米;13号线瓦窑滩站约1500米
【生活配套】
教育|鼎聚卓越高智名校
幼儿园:实验小学附属幼儿园(蔡桥分园)•成都市金沙幼儿园(万家湾园区)、成都市第六幼儿园 (蔡桥园区)
小 学:泡桐树小学(桐欣校区)、成都市同辉(国际) 学校、草堂小学 (子美校区)
中 学:成都石室联合中学 (弘文校区)、光华校区(大摇号)、成都市第了7中学校、成都市青羊实验中学
生态|链接高质静谧绿境
五大城市公园:F体育公园、蔡桥公园(在建中)、非遗公园、成飞公园、
西侧紧邻公园(规划中)
交通|立体便捷触达全城
三横:日月大道/光华大道/光华八线
三纵:西二环/西三环/绕城高速
二软道.4号线19号线/13号线(在建中)
商业|构建舒适生活圈
直线距离约5km内三大醇熟商圈内多个城市级综合体,满足业主日常生活所需
三大商圈:鹏瑞利商圈、中铁西城商圈、青羊万达商圈
医疗 丨汇集三甲 无忧生活
成都市妇女儿童中心医院、成飞医院、成都中医药大学附属医院、四川省人民医院
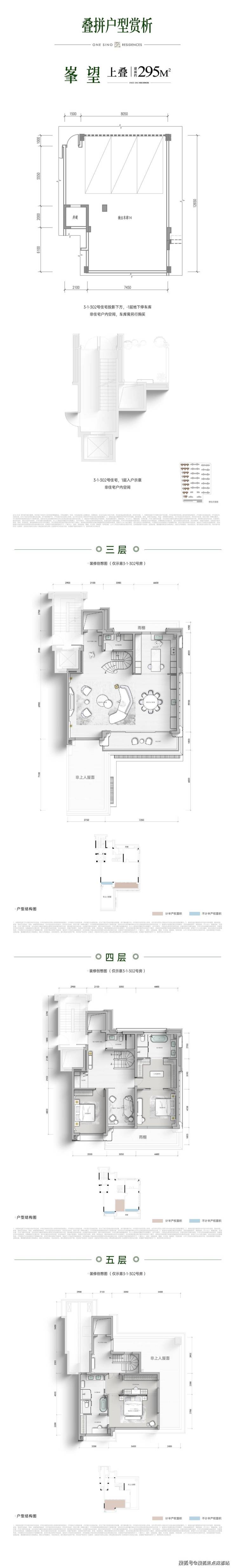
【户型图】
洋房
143平米户型

170平米户型

198平米户型

249平米户型

叠拼【上叠+下叠295㎡】
【中海锦叁号院】销售中心电话:028-62671228 【中介勿扰】
楼盘详情介绍丨最新售价丨户型鉴赏丨周边配套丨详细在线解答
如需了解最新房源信息_咨询优惠政策_请拨打上方售楼部电话!
声明:本文由入驻焦点开放平台的作者撰写,除焦点官方账号外,观点仅代表作者本人,不代表焦点立场。


