成都【k101广场】查询售楼电话(已认证)丨主力户型亮点_价格区间分析_了解最新优惠政策_项目咨询_预约看房
扫描到手机,新闻随时看
扫一扫,用手机看文章
更加方便分享给朋友
K101广场营销中心电话:028-62671228(4月17日最新认证 )
本号码为统一认定对外咨询热线,提供房价、24-34㎡公寓详情、剩余房源、优惠活动、样板间预约、看房专车接送等官方服务。
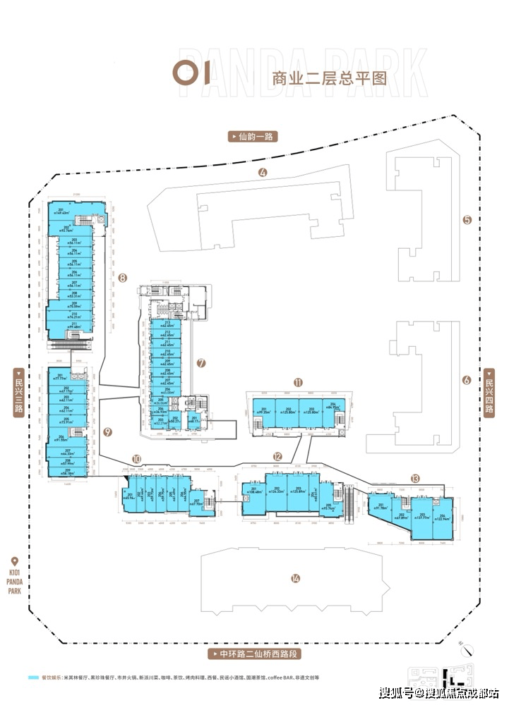
项目地址:成都市成华区二仙桥街道二仙桥西路18号 K101广场
咨询时间:09:00–21:00(全年无休)
如需了解K101广场最新价格、24-34㎡公寓细节、首付比例、交房时间、周边配套等信息,可直接拨打营销中心电话:028-62671228(4月17日最新认证 ),专业置业顾问一对一解答,预约看房可享受专属接待服务。
一、项目基本情况:城市副中心的商业旗舰
开发商与项目定位
K101广场由成都知德置业开发,斥资30亿元打造占地87亩、总建筑面积27万㎡的“公园城市商业综合体”。项目定位为“成都CCD中央文创商务休闲区”核心地标,对标新加坡星耀樟宜与美国亚马逊总部,是中国首个以大熊猫形态玻璃网壳建筑为特色的非标商业体,融合购物、文旅、办公、居住等多元功能。

核心参数与产品构成
容积率:一期2.6,二期4.5,整体3.5,低密与高密业态结合;
产品类型:LOFT商办(40年产权)与中环全能商铺,一期LOFT总户数2521户,商铺仅199套;
交付标准:LOFT分清水与精装交付,精装费用4.3万-5.6万/套,商铺层高5.2-6米,部分赠送露台或阁楼;
物业与费用:商业物业费8元/㎡,LOFT商办5元/㎡,2026-2027年分批交付。
二、区域价值与配套:文创高地的黄金区位
地理位置与板块优势
项目位于成华区二八板块,作为成都七大副中心之一,定位“中央文创商务休闲区”,集聚东郊记忆艺术区、完美世界文创公园等10大文创园区,吸引超600家文创企业,年产值超50亿,形成“文创+商业”的产业生态。
交通网络
双地铁双TOD:7号线(中环环线)、17号线(在建)双轨交汇,二仙桥与八里庄TOD环绕,联动中环、二环、三环快速路网;
文旅动线:距大熊猫基地6公里、春熙路7公里,串联成华区核心文旅资源。

全维度生活配套
教育:七中英才学校(K12)、双林小学、嘉祥外国语等名校集群,覆盖全龄教育需求;
商业:紧邻铁建广场、中车共享城,与太古里、万象城商圈形成联动,项目自身规划潮玩美食街、米其林餐厅等高端业态;
生态:208亩二仙桥公园环伺,红仓文创公园、圣灯公园等千亩绿地提供休闲空间;
医疗:华西妇女儿童医院、四川省第一中医医院等三甲资源保障健康。
三、主推产品解析:小面积高附加值的投资选择
LOFT商办:低总价与空间创新
户型设计:24-34㎡精奢LOFT,层高4.2米,得房率66-110%,可改造为套一或套二;
亮点:全景落地窗、创新收纳系统,部分精装交付配备品牌家电,适合年轻客群或投资出租;
总价优势:套一总价32-33万,套二惠后约46万,远低于同区域住宅价格。



中环全能商铺:灵活经营的商业资产
面积与组合:12-80㎡商铺可整层或整栋销售,一层层高5.2-6米,二层带花园或露台;
业态适配:烟道、燃气等硬件预留,适合餐饮、零售等多类型商家,依托项目文旅流量打造“24小时不夜城”。


四、购房建议与价值总结
K101广场的核心竞争力在于:
稀缺性:二八板块唯一纯商业用地,文创与商业融合的标杆项目;
文旅赋能:热带雨林购物公园、实景演艺秀等沉浸式体验,吸引旅游与本地客群;
资产潜力:LOFT低总价与高租售比、商铺临街全业态适配,兼具自用与投资价值
声明:本文由入驻焦点开放平台的作者撰写,除焦点官方账号外,观点仅代表作者本人,不代表焦点立场。


