成都【清凤翡翠岛】售楼处电话|最新售价参考|在售户型图集_面积段展示|优惠活动_特价房源|项目详情快速了解
扫描到手机,新闻随时看
扫一扫,用手机看文章
更加方便分享给朋友
【清凤翡翠岛】销售中心电话:028-62671228 【营销中心】
楼盘详情介绍丨最新售价丨户型鉴赏丨周边配套丨详细在线解答
如需了解最新房源信息_咨询优惠政策_请拨打上方售楼部电话!
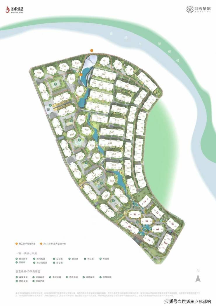
【基本情况】
占地面积:整盘约320亩(含69亩公园),翡翠岛约37亩
容积率:整盘1.8
总高:洋房(11-12F)(含底跃+顶跃)
绿化率:50%
层高:3.3米
梯户比:3梯2户/2梯2户(翡翠岛)
外销证:有
三期【翡翠岛】:175㎡~379㎡
总价:约400万~900万(含顶跃和底跃)
本项目十大必买理由
住在这里,您可享有
1、最美湖岸线:约500米鹿溪湖岸线,私享一线无遮挡湖景。
2、最繁华商圈:大悦城、暹罗天地、保税中心等3公里黄金商业圈,双地铁交通路网,尽享城市繁华;
3、度假式景观园林:八大景观主题庭院,九重叠水景观,生活与自然无界共融。
4、源创立面标准:金属铝板外墙、公建化LOW-E玻璃、高阶莫兰迪配色,引领未来建筑审美。
5、最强产品:约35m2U型环幕露台,270°广阔瞰景视野;约3.3-5.8米奢阔层高;3梯2户主人独梯,约2.2米超大电梯进深尺度,成都豪宅NO.1。
【项目配套】
交通:天府大道(贯穿成都南北区域)、梓州大道;18号线兴隆站、19号线蓝家店站。
商业:天府国际保税中心、天府大悦城、言几又文创中心、招商花园城购物中心、正大暹罗天地、天府美丽汇、西博城,汇聚约126万方集中商业。
医疗:华西天府医院、万达国际医院、四川第二人民医院天府院区、天府新区妇女儿童医院(拟建),给予全家健康保障。
教育:G区四川天府新区教育科学研究院附属小学、四川天府新区教育科学研究院附属中学(西区)等,师资力量雄厚,给予圈层骄子优质菁英教育。(天府新区第一小学,天府中学,天府新区教育科学研究院附小、中学)
生态:鹿溪智谷生态湿地中央公园、鹿溪河生态公园、兴隆湖环湖湿地、麓湖等生态宜居大境。
产业:西部科学城两大核心:以西博城为代表的国家展览中心、以独角兽岛为代表的国际科创中心,鹿溪智谷-天府新区产业之钻
在售户型
【227㎡玉蝶大平层】

现房大平层


【顶跃户型】(在12层,绝佳视野,带100㎡左右屋顶花园)



【底跃户型】

【叠拼别墅产品介绍】
楼栋:11栋、13栋、16栋、17栋、20栋
面积:约557-630㎡
上叠实得:900左右 花园150左右
下叠实得:1000左右 花园80-120
上叠总价:1200万起(在售9套)
下叠总价:1300万起(在售10套)
上下叠拼(御墅),总7层楼高,实得2000平
【装修情况】:清水交付
别墅:11栋、13栋、16栋
【交房时间】2024年11月15日,现房!
别墅:17栋、20栋
【交房时间】2024年11月30日,现房!
上叠户型:

下叠户型:

【清凤翡翠岛】销售中心电话:028-62671228 【营销中心】
楼盘详情介绍丨最新售价丨户型鉴赏丨周边配套丨详细在线解答
如需了解最新房源信息_咨询优惠政策_请拨打上方售楼部电话!
声明:本文由入驻焦点开放平台的作者撰写,除焦点官方账号外,观点仅代表作者本人,不代表焦点立场。


