成都【蔚蓝卡地亚蓝庭】售楼中心电话|房价及项目分析|在售户型面积_拨打售楼处电话享线上咨询优惠
扫描到手机,新闻随时看
扫一扫,用手机看文章
更加方便分享给朋友
【蔚蓝卡地亚蓝庭】售楼处电话:028-62671228 【营销中心】
楼盘实时价格丨户型赏析丨配套规划丨置业顾问在线咨询
获取最新房源动态及专属优惠,敬请致电售楼处
项目概览
蔚蓝卡地亚蓝庭坐落于成都天府新区LA CADIERE花园城,由成都花园城蔚蓝卡地亚置业有限公司匠心打造,总开发体量达10.5万平方米。项目占地30亩,规划3栋35-44层住宅及1栋商业综合体,构筑超高层豪宅典范。
建筑艺术
项目特邀新加坡建筑泰斗曾仕乾先生执笔设计,采用全幕墙公建化立面,三栋建筑采用阶梯式布局,形成错落有致的城市天际线。建筑细节处处彰显现代美学,将东方意境与当代设计语言完美融合。
园林意境
园林设计汲取传统造园精髓,通过立体景观营造手法,打造层层递进的庭院空间。精心配置的绿植体系与艺术景观相映成趣,为都市精英营造闹中取静的栖居环境。
核心优势
品质标杆:秉承蔚蓝卡地亚高端基因,项目在选材用料、施工标准等方面均执行严苛规范,确保产品品质始终处于行业领先水平。
大师手笔:曾仕乾大师将"建筑即艺术"的理念贯穿始终,从整体规划到空间细节均体现独特设计哲学,打造具有收藏价值的建筑艺术品。
臻享服务:由LA CADIERE旗下蔚蓝物业提供星级服务,涵盖24小时安防、专属管家、装修监管等全方位服务体系,重新定义高端生活标准。
空间哲学:3梯2户专属配置,建面约250㎡的阔绰平层,实现别墅级空间体验。艺廊式走廊串联功能空间,双套房设计兼顾代际隐私,将居住舒适度提升至全新高度。
区位价值
枢纽位置:占据天府新区CBD核心腹地,距地铁1号线武汉路站仅502米,S5号线及19号线红莲站举步可达,立体交通网络畅达全城。
发展前景:作为成都重点发展区域,天府新区规划建设大量商业商务及文化设施,区域价值持续攀升,资产保值增值潜力显著。
城市风貌:片区整体开发标准领先,现代化建筑群与完善基础设施相得益彰,营造国际化的宜居环境。
生活配套
立体交通:多维路网与轨道交通无缝衔接,快速通达城市各核心区域。
繁华商业:项目自带湖滨公园及商业街区,周边高端商业综合体环伺,满足品质生活所需。
优质教育:全龄段名校资源环绕,为子女成长提供优质教育保障。
健康守护:三甲医院及专业医疗机构近在咫尺,守护家人健康。
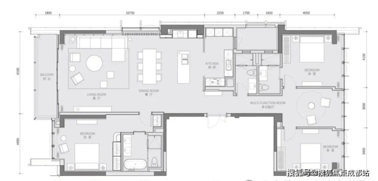
户型臻品
235-260㎡云端平层
3梯2户尊享配置,方正格局实现空间高效利用。约7米阔绰厅堂气度非凡,双套房设计完美解决多代同堂需求,每个功能分区均体现人性化考量。

520㎡天际楼王
一层一户的极致私密,专属电梯厅彰显尊崇。可自由规划的超尺度空间,满足收藏、社交、居住等多元需求,成就塔尖人士的理想居所。

【蔚蓝卡地亚蓝庭】售楼处电话:028-62671228 【营销中心】
楼盘实时价格丨户型赏析丨配套规划丨置业顾问在线咨询
获取最新房源动态及专属优惠,敬请致电售楼处
声明:本文由入驻焦点开放平台的作者撰写,除焦点官方账号外,观点仅代表作者本人,不代表焦点立场。


