国庆购房嗨购季来袭!成都【凯瑞望丛天序】售楼处电话公布。每日刷新特价房源,在售户型深度解析,最新成交价快速查询,楼盘详情全面揭秘 。

搜狐焦点成都站 2025-10-02 12:52:00
用手机看
扫描到手机,新闻随时看

扫一扫,用手机看文章
更加方便分享给朋友

文化地标:古蜀文明发祥地“望丛祠”高效交通:地铁6号线望丛祠站(距离约800M)成熟教育:公办-郫筒一小、岷阳实验外国语学校;民办-成都嘉祥外国语学校郫都校区、郫都区华爱学校等医疗资源:三甲-郫都人民医院、…

【凯瑞望丛天序】销售中心电话:028-62671228 【营销中心】

在售户型图丨项目详情介绍丨剩余房源丨项目周边配套丨详细在线解答

如需了解最新房源信息_在售房源价格_请拨打上方售楼部电话!

【项目基础信息】

项目占地:65亩

开发商:凯瑞天府房地产开发有限公司

物业公司:嘉和物业

总户数:632户

总层高:17层

低容积率:2.0

绿化率:35%

装标:预计3000

价格:预计1.5万—1.6万

物业费:预计2.7元

车位比:1:1.26

环伺公园绿地:约500亩

首开楼栋:4栋,6栋,8栋、9栋,10栋、12栋

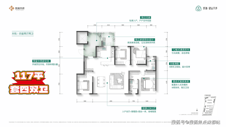
【在售户型】

117-139-175小高层(总高17层 全封窗)

240平清水独栋

190平上下叠

郫都中央公园住区 10MINS美好生活圈

文化地标:古蜀文明发祥地“望丛祠”

高效交通:地铁6号线望丛祠站(距离约800M)

成熟教育:公办-郫筒一小、岷阳实验外国语学校;民办-成都嘉祥外国语学校郫都校区、郫都区华爱学校等

医疗资源:三甲-郫都人民医院、郫都中医医院

周边商业:佛罗伦萨奥特莱斯小镇、西侧/南侧商业体(规划)、蜀新天街等

约500亩望丛中央公园里(建设中)·浮岛度假墅区

117/139/175㎡情景奢宅 I 185-240㎡揽翠墅院

——————————————————————

先进公园再入家门,私藏约500亩望丛中央公园(建设中)

改善规划,更纯粹的业主圈层

领创三重酒店式礼序归家(首个中央车站)

领创7大安缦式泛会所体系(健身/童玩/私宴/棋牌/书吧/会客等)

领创约2000㎡度假水景(繁花水院/浮屿花岸)

———————————————————————

望丛中央公园(建设中):在500亩城市中央公园里(建设中),重新发明生活

串联望丛祠与成都科幻馆,形成“一轴串双核,一园望古今”的空间格局

规划杜宇广场、开明广场、杜鹃花语等七大景观节点,包含约5.9万㎡中央大草坪、约1.7万㎡核心水景,未来可承载音乐节、望丛赛歌会等文化演艺活动,融合亲子休闲、文化体验与研学科普功能

【凯瑞望丛天序】销售中心电话:028-62671228 【营销中心】

在售户型图丨项目详情介绍丨剩余房源丨项目周边配套丨详细在线解答

如需了解最新房源信息_在售房源价格_请拨打上方售楼部电话!

声明:本文由入驻焦点开放平台的作者撰写,除焦点官方账号外,观点仅代表作者本人,不代表焦点立场。