国庆购房季来袭!成都【招商时代公园-天澜境 B 区(59 号地块)】售楼部电话在此。特价房源每日上新,在售户型、最新成交价可查,更有【招商时代公

搜狐焦点成都站 2025-10-01 14:26:48
用手机看
扫描到手机,新闻随时看

扫一扫,用手机看文章
更加方便分享给朋友

主入口对景水院,采用“自然系”主题雕塑与浑然天成的景致湖滩,同时以天然石块、片岩结合下沉卡座,打造约300㎡曲水流觞逸境。以欣赏者视角为设计语言,锻造香槟金铝板,镶边轻奢金属线条,米灰色仿石漆、落地窗、大面…

招商时代公园】售楼处电话:028-62671228 【营销中心】

楼盘实时价格丨户型赏析丨配套规划丨置业顾问在线咨询

获取最新房源动态及专属优惠,敬请致电售楼处

【项目基础信息】

总净用地面积:59号地36亩

总计容建筑面积: 107100㎡

容积率:3.1 绿地率:35%

梯户比:2T3 总层高:21-25层

装修标准:精装交付( 59#装标:4040元/㎡ )

交房时间: 59#26年3月 59车位:654

物业:招商积余 物业费:4.18

59号地套数462套,总6栋

59地块 (26年3月交房)

少量优质性价比房源 价格 以售楼部实际释放为准

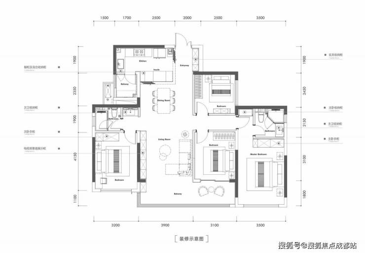
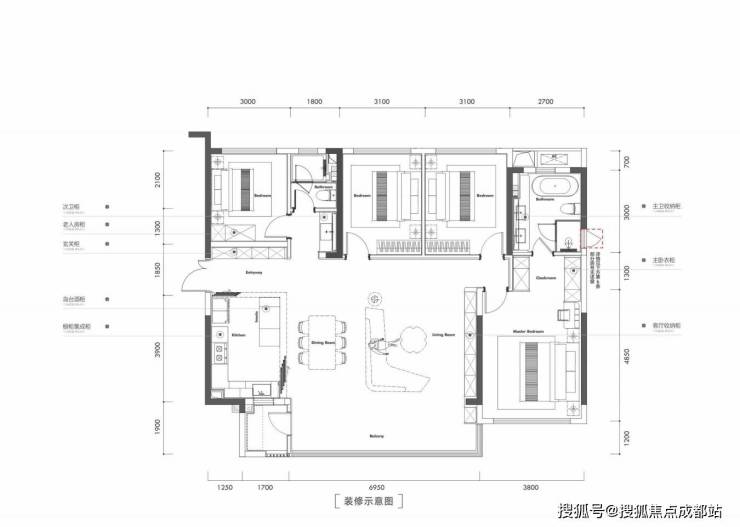
建面:143-162㎡ 精装4100元/㎡ 单价2.8-3.3万

报价:143:410-450w;162:480-530w

162㎡套四双卫

143㎡套四双卫

主入口采用门庭与景观一体化设计。超30米阔尺仪门与约5.6米挑高,采用深灰石材墙面与铝板顶饰,彰显尊崇气质;

主入口对景水院,采用“自然系”主题雕塑与浑然天成的景致湖滩,同时以天然石块、片岩结合下沉卡座,打造约300㎡曲水流觞逸境。

林下剧场 长者空间

兼顾长辈天伦生活的适老空间

考究分区布局,以“幽静”场景为设计原则,精筑一方康体休闲天地。

雪域童趣 知识星球

深研⼼理与⾏为的孩童配置

新奢印象 超镜体都会天际线

由光影编排的建筑格局,绘就空中立体的海

超镜体映景立面,随角度的变换,流映自然四季与超塔的视觉艺术。以欣赏者视角为设计语言,锻造香槟金铝板,镶边轻奢金属线条,米灰色仿石漆、落地窗、大面宽的艺术界面,塑造蓝灰LOW-E幕墙的流线美学,契合高窗墙比,让建筑体本身成为一道风景线。

【招商时代公园】售楼处电话:028-62671228 【营销中心】

楼盘实时价格丨户型赏析丨配套规划丨置业顾问在线咨询

获取最新房源动态及专属优惠,敬请致电售楼处

声明:本文由入驻焦点开放平台的作者撰写,除焦点官方账号外,观点仅代表作者本人,不代表焦点立场。