成都中绿园领秀金沙售楼处电话_7月钜惠_最新成交价_热销户型_限时特价房通道_线上咨询入口
扫描到手机,新闻随时看
扫一扫,用手机看文章
更加方便分享给朋友
【中绿园领秀金沙】营销中心热线:028-62671228
最新价格公示丨臻品户型解析丨全维配套详解丨专业顾问一对一服务
致电售楼处,尊享限时购房礼遇与独家房源信息
【项目核心指标】
开发企业:成都中绿园置业有限公司(中国绿发成都子公司)
物业形态:高端住宅社区
建筑形态:低密小高层
区位优势:三环至绕城黄金地带
占地面积:约4.7万方
总建筑面积:12.4万方
容积率:1.8(主城稀缺低密住区)
绿地覆盖率:35%
总规划户数:570席
楼栋布局:21栋臻品楼宇
交付标准:国际品牌精装(具体以开发商公示为准)
主力户型:127-167㎡改善型居所
梯户配置:两梯两户私密尊享
物业服务:鲁能物业(4元/㎡/月)
车位配比:1:1.7(地下车位1015个)
预计交付:2025年6月

城西首获绿建二星认证的科技健康住区
2024城西改善置业标杆 央企匠著西贵藏品
品牌实力
黄金区位
全维配套
生态体系 | 一廊一河六园生态网
教育资源 | 全龄优质教育矩阵
交通体系 | 立体路网畅达全城
商业配套 | 四大商圈环抱
青羊万达(2km)/鹏瑞利广场(3km)/优品道广场(4.7km)/仁和春天(5.6km)
医疗资源 | 三甲健康护航
成都第一骨科医院(1.5km)/成飞医院(4.3km)/妇女儿童中心医院(5km)
产品亮点-1600㎡下沉式双会所|5000万级配套投入|
建筑美学 精工立面
创新运用金属铝板幕墙系统,塑造现代简约线条;全景落地窗设计,最大化引景入室
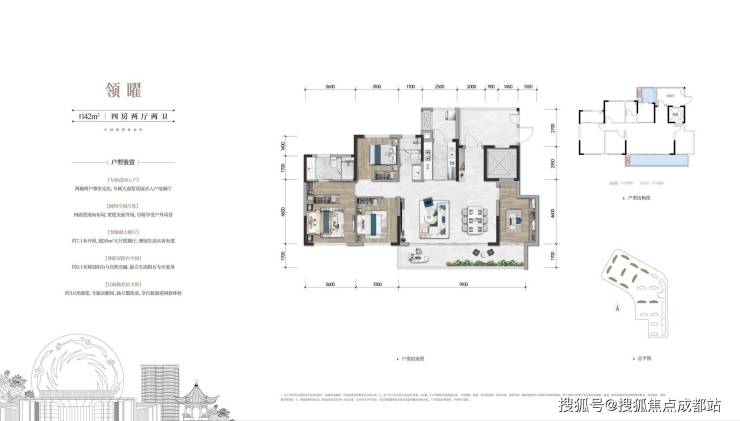
臻品户型解析
【中绿园领秀金沙】营销中心热线:028-62671228
最新价格公示丨臻品户型解析丨全维配套详解丨专业顾问一对一服务
致电售楼处,尊享限时购房礼遇与独家房源信息
声明:本文由入驻焦点开放平台的作者撰写,除焦点官方账号外,观点仅代表作者本人,不代表焦点立场。


