想快速了解成都【国宾九玺】项目详情吗?这里有售楼部电话、最新房价公示,在售户型图集展示,还有特惠房源限时推出!

搜狐焦点成都站 2025-10-14 15:20:59
用手机看
扫描到手机,新闻随时看

扫一扫,用手机看文章
更加方便分享给朋友

住宅部分统一采用16-17层纯板式小高层设计,主力户型为建面约127-141㎡纯粹四居,每户均配置约6.8-9米宽景阳台,打造270°环幕视觉盛宴。目前板块已形成金周路、侯家桥、梓潼宫三大TOD协同发展格局:…

【国宾九玺】销售中心电话:028-62671228 【营销中心】

在售户型图丨项目详情介绍丨剩余房源丨项目周边配套丨详细在线解答

如需了解最新房源信息_在售房源价格_请拨打上方售楼部电话!

位于成都金牛区的金周路TOD国宾九玺与地铁2号线金周路站实现无缝接驳。项目整体占地约49.5亩,规划建设9栋住宅及1栋商业综合体。住宅部分统一采用16-17层纯板式小高层设计,主力户型为建面约127-141㎡纯粹四居,每户均配置约6.8-9米宽景阳台,打造270°环幕视觉盛宴。项目采用精装交付标准,配备地暖、中央空调、新风系统三大核心科技系统,绿地率高达35%。在建筑密度、层高设计、绿地规模及无障碍设施等关键参数上,均优于国家最新规范要求,为现代家庭构建全维度的品质生活空间。

户型深度解析:

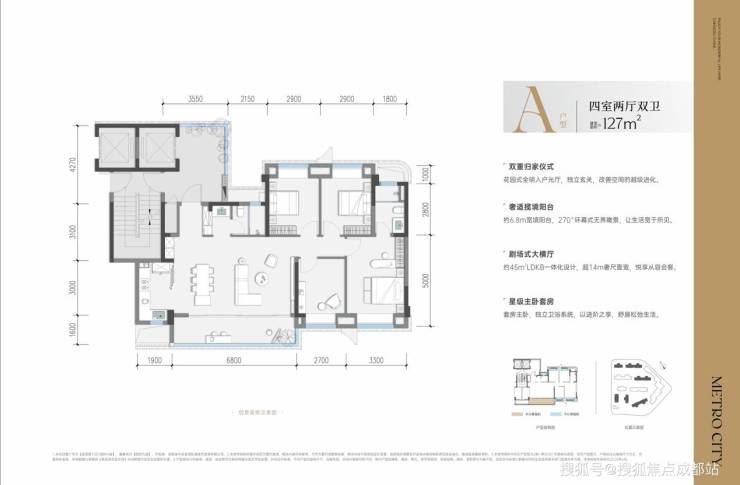
建面约127㎡户型

约12平方米独立入户光厅突破传统玄关局限,升级为多功能情景空间。约6.8米宽境阳台配合270°观景视野,在国宾板块内树立全新标杆,结合窗外延绵绿意,实现四季景致的自然交融。

建面约141㎡户型

约18平方米奢华入户光厅重新定义归家礼仪,约9米星空穹顶阳台坐拥270°全景视野,与客餐厅形成流畅的空间互动,在同面积段产品中展现出卓越的产品竞争力。

区域价值分析:

作为改善型置业的热门选择,国宾九玺所在的国宾板块展现出显著的发展潜力。目前板块已形成金周路、侯家桥、梓潼宫三大TOD协同发展格局:金周路TOD定位"高端生态活力住区"与"一站式邻里服务中心",配备大型商业及公共服务设施;侯家桥TOD聚焦"科技服务+智慧交通"领域,构建人工智能产业集群;梓潼宫TOD则整合精品商业、教育办公与品质住区功能,打造复合型城市空间。凭借金周路TOD的核心区位优势,项目已成为集便捷生活、优质教育、生态资源与人文底蕴于一体的城市生活典范,持续引领区域价值提升。

生活配套详解

交通网络:双地铁配置(2号线已运营+9号线规划中),高效连接城市核心区域,促进居住与产业功能协同发展。

商业配套:项目规划约5000㎡社区商业,与金禧二路综合体、金周路综合体形成互补商业体系。2公里范围内覆盖多个大型购物中心,全方位满足日常消费需求。

教育资源:项目北侧与茶店子小学(金樽分校)仅一路之隔,2.5公里范围内汇聚机关二幼、成都四幼、茶店子小学(金禧分校/国宾校区)、石笋街小学(盛达校区)、成都七中金牛中学、成都七中万达教育集团金牛中学、成都外国语学校及附属小学等多所知名学府(温馨提示:学校信息仅供参考,具体入学政策以教育局公布为准)。

生态环境:项目周边公园系统呈珠链式布局,社区"口袋公园"与金泉运动公园、中海体育公园、两河城市森林公园有机串联,形成多层次的生态绿廊体系。

【国宾九玺】销售中心电话:028-62671228 【营销中心】

在售户型图丨项目详情介绍丨剩余房源丨项目周边配套丨详细在线解答

如需了解最新房源信息_在售房源价格_请拨打上方售楼部电话!

声明:本文由入驻焦点开放平台的作者撰写,除焦点官方账号外,观点仅代表作者本人,不代表焦点立场。