成都【锦城拾云】售楼处电话|最新成交价数据_户型面积段_项目介绍详情_年终特惠限时开启
扫描到手机,新闻随时看
扫一扫,用手机看文章
更加方便分享给朋友
【锦城拾云】销售中心电话:028-62671228 【营销中心】
在售户型图丨项目详情介绍丨剩余房源丨项目周边配套丨详细在线解答
如需了解最新房源信息_在售房源价格_请拨打上方售楼部电话!
锦城拾云位于“昭觉寺·动物园”商圈核心,占地约49亩,规划10栋建筑(8F、10F洋房+18F小高层),全南向的楼栋通过错位排布,视野最大化的同时,构建起以“古邻昭觉·诗居胜地”为灵感的“一环两轴三中心八园”景观体系。锦城拾云聚焦市场“真实改善需求”,推出99-136㎡主力户型,以205万元起的亲民总价,兑现“让更多人留在主城”的愿景。

【在售户型】
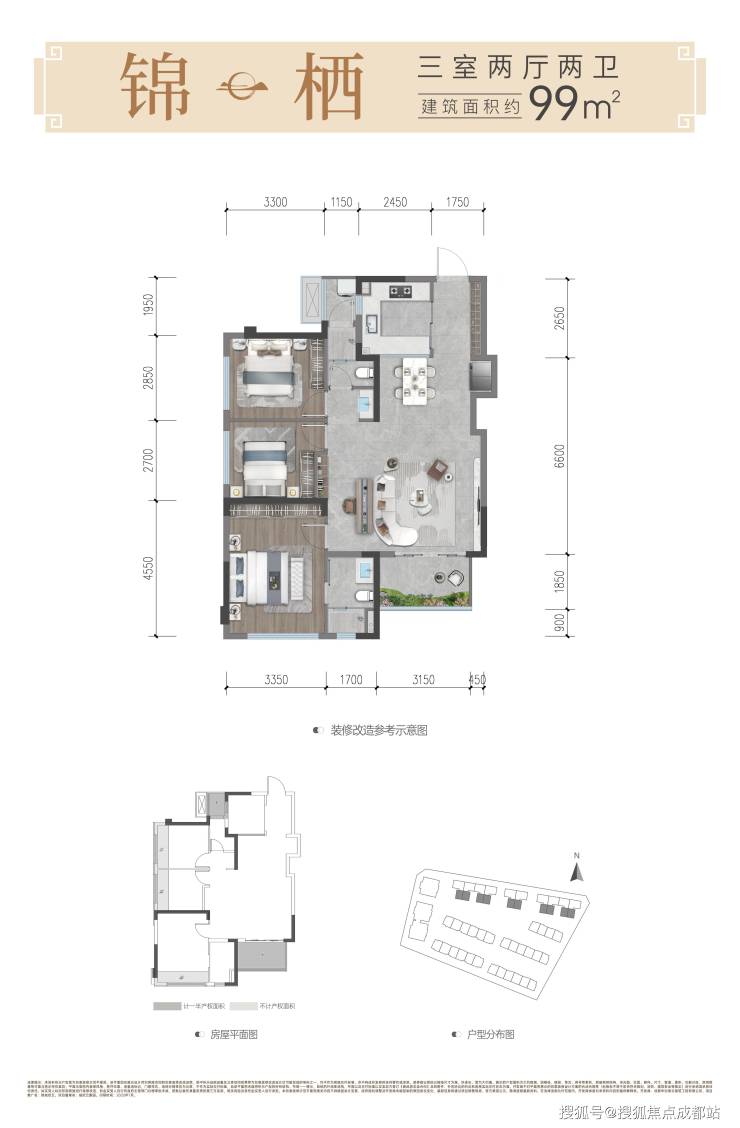
建面约99㎡套三:主城入门改善优选
方厅布局,动静分区清晰,约5.3米面宽、30㎡的一体化社交方厅。南北双阳台、主次双卫生间的配置,远超同面积段产品标准;两间次卧可根据需求改造,叠加约15㎡赠送面积,实际使用空间堪比市面120㎡户型。
建面约 123㎡套四:多孩家庭“适配款”
户型采用横厅设计,约7.9米开间搭配客餐厨阳台一体化布局,形成约50㎡奢阔社交公区,足以容纳中西双厨;约28㎡南北通透主卧套房,配备步入式衣帽间与独立梳妆台/书桌空间。三间次卧面积均等,适配多孩家庭“平权居住”需求,中间两间次卧可改造为“双主卧套房”,满足家庭成长后的居住变化。

建面约119㎡套四洋房
LDK方厅设计,面积约40㎡,北向次卧和南向次卧都可融入方厅,幻变更大的社交空间,约5.15米的景观阳台,直面唐风园林,引景入室。南向约24㎡的主卧套房,3间次卧尺度舒适,包括为收纳设置的玄关800库,满足3代人多孩家庭的居住场景。

建面约136㎡套四洋房
空间尺度进一步升级,四间卧室以客厅为中心分布,家庭成员互不干扰;约 5.6 米面宽客厅形成约59㎡ LDKG空间,比同面积段产品多出约8-10㎡使用空间,居住舒适度更高。

【区域价值】
板块定位环“昭觉寺·动物园”商圈,它不仅是主城北门户,更承担着对接成渝双城经济圈的枢纽功能。依托川西第一禅林昭觉寺、成都大熊猫繁育基地、动物园等重量级城市名片,昭觉寺板块近年持续发力文创、文旅新消费场景,全新打造的天府国际动漫城、昭觉里商业街等,已然成为吸引年轻人的潮流新IP,成为区域发展的澎湃动力。

【周边配套】将主城精华尽数浓缩到15分钟生活圈内
交通:项目距地铁3号线动物园站仅约200米,7站即可直达春熙路、太古里;搭配地面纵横交织的快速路网(环线:中环路、二环路、三环路,纵线:北星大道、昭觉寺南路、府青路),把更多时间留给生活。
商业:项目方圆一公里,密布天府国际动漫城、昭觉里特色街区(在建)、华润熙悦广场、泛悦城市广场、青龙广场等百万方商业,柴米油盐、国际时尚、潮流文创,在这里融合共生。
教育:项目紧邻市十三幼(市一级幼儿园)和百年名校双水小学,区域内还有北新实验小学、石室初中、成华嘉祥外国语高中等名牌学校,全龄教育在家门口就可解决。(本部分仅为项目周边教育资源展示,具体学区划分以教育局政策为准。)
公园:动物园、昭觉寺、大熊猫繁育基地之外,周边还有沙河公园、海滨公园、凤凰山露天音乐公园等休闲去处,项目楼下还有街心公园,举步即达。
以“唐风为魂,品质为核”的锦城拾云,将唐代生活的雅致意趣融入社区肌理,精准击破中环产品“高总价、同质化”的竞争困局,打造出独树一帜的文化人居IP。
声明:本文由入驻焦点开放平台的作者撰写,除焦点官方账号外,观点仅代表作者本人,不代表焦点立场。


