成都【国宾九玺】售楼处电话_10月房价更新|户型面积|在售房源|项目优惠|交房时间

搜狐焦点成都站 2025-10-09 13:46:35
用手机看
扫描到手机,新闻随时看

扫一扫,用手机看文章
更加方便分享给朋友

当前板块已形成金周路、侯家桥、梓潼宫三大TOD协同发展体系:金周路TOD定位"高端生态活力住区"与"一站式邻里服务中心",提供大型商业及公共服务配套;侯家桥TOD以"科技服务+智慧交通"为核心,构建人工智能产…

【国宾九玺】销售中心电话:028-84363344 【营销中心】

在售户型图丨项目详情介绍丨剩余房源丨项目周边配套丨详细在线解答

如需了解最新房源信息_在售房源价格_请拨打上方售楼部电话!

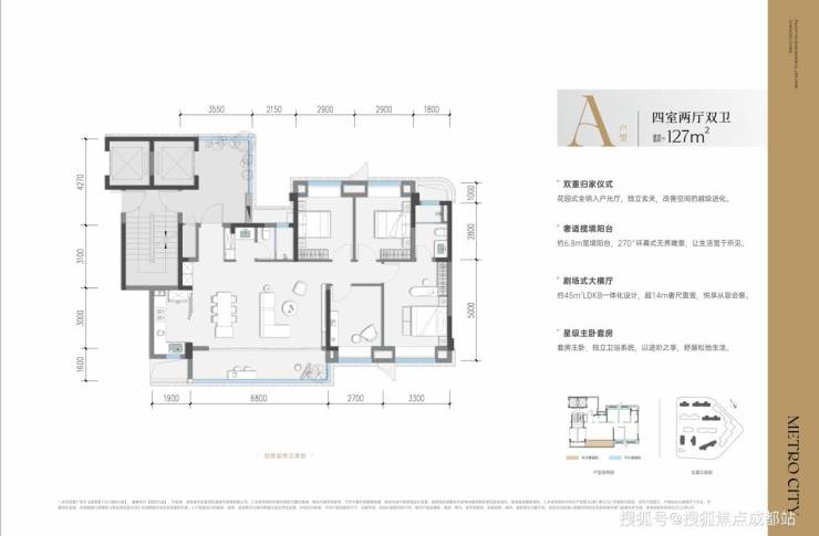
坐落于成都金牛区的金周路TOD国宾九玺与地铁2号线金周路站无缝衔接。项目总占地约49.5亩,规划打造9栋住宅及1栋商业综合体。住宅产品均为16-17层纯板式小高层,主力户型为建面约127-141㎡纯粹四居,每户标配约6.8-9米宽境阳台,实现270°环幕视觉体验。项目精装交付标准涵盖地暖、中央空调、新风系统三大核心配置,绿地率更达到35%。在建筑密度、层高设计、绿地规模及无障碍设施等关键指标上,均超越国家最新标准,为家庭营造全方位舒适居住体验。

户型解析:

建面约127㎡户型

约12平方米独立入户光厅突破传统过渡空间概念,升级为多功能情景场域。约6.8米宽境阳台配合270°观景视野,在国宾板块内堪称标杆之作,结合窗外延绵绿意,实现四季景致无缝衔接。

建面约141㎡户型

约18平方米奢华入户光厅重塑归家礼仪,约9米星空穹顶阳台坐拥270°全景视野,与客餐厅形成流畅空间联动,在同面积段产品中展现出卓越竞争优势。

板块价值:

作为改善型置业热点区域,国宾九玺所在的国宾板块具备显著的发展确定性。当前板块已形成金周路、侯家桥、梓潼宫三大TOD协同发展体系:金周路TOD定位"高端生态活力住区"与"一站式邻里服务中心",提供大型商业及公共服务配套;侯家桥TOD以"科技服务+智慧交通"为核心,构建人工智能产业生态圈;梓潼宫TOD则融合精品商业、教育办公与品质住区,塑造多功能城市空间。依托金周路TOD的核心优势,项目已成为融合便捷生活、优质教育、生态资源与人文底蕴的城市生活范本,持续推动区域价值升级。

生活配套

交通体系:双地铁配置(2号线已运营+9号线规划中),高效串联城市核心功能区,激活区域居住与产业协同发展。

商业资源:项目自带约5000㎡社区商业,与金禧二路综合体、金周路综合体形成互补商业网络。2公里范围内涵盖多个大型购物中心,全面满足日常生活消费需求。

教育资源:项目北侧与茶店子小学(金樽分校)仅一街之隔,2.5公里辐射圈内集聚机关二幼、成都四幼、茶店子小学(金禧分校/国宾校区)、石笋街小学(盛达校区)、成都七中金牛中学、成都七中万达教育集团金牛中学、成都外国语学校及附小等多所优质学府(温馨提示:学校信息仅供参考,不作为入学承诺依据)。

生态景观:项目周边公园体系呈珠链式分布,社区"口袋公园"与金泉运动公园、中海体育公园、两河城市森林公园有机串联,构建多层次生态绿廊网络。

【国宾九玺】销售中心电话:028-84363344 【营销中心】

在售户型图丨项目详情介绍丨剩余房源丨项目周边配套丨详细在线解答

如需了解最新房源信息_在售房源价格_请拨打上方售楼部电话!

声明:本文由入驻焦点开放平台的作者撰写,除焦点官方账号外,观点仅代表作者本人,不代表焦点立场。