成都【麓湖生态城W2悦溪】6月必看盘|最新房价动态|热销户型解析|优惠政策|麓湖生态城W2悦溪售楼中心电话
扫描到手机,新闻随时看
扫一扫,用手机看文章
更加方便分享给朋友
「麓湖生态城W2悦溪」销售中心电话:028-62671228 【营销中心】
楼盘详情介绍丨最新售价丨户型鉴赏丨周边配套丨在线咨询
如需了解最新房源信息_咨询优惠政策_请拨打上方售楼部电话!
作为麓湖生态城W2地块的全新住宅组团,W2悦溪坐落于麓湖公园区核心位置,毗邻伊藤洋华堂北侧。项目主打110-160平方米精装户型,定位为麓湖"YOUNG系"产品线,为区域注入年轻活力。
【项目亮点】
在高端项目云集的麓湖板块,W2悦溪以首改、再改户型为主力产品,111-141平方米的户型设计更贴近主流改善需求,展现出麓湖品牌对细分市场的精准把握。
【核心参数】
区位:麓湖公园区
建筑形态:14-21层小高层/高层
主力户型:111㎡三房两卫、141㎡三房两卫
梯户配置:两梯四户
在售楼栋:8#、9#
交付标准:精装交付
参考价格:待定(历史备案价25528.99-34400.99元/㎡)
预计交付:2026年12月

【区位优势】
项目占据天府大道东侧黄金地段,距离地铁1号线红石公园站仅450米,创下麓湖住宅组团最近地铁距离纪录。1号线作为城市南北动脉,可快速直达金融城、天府三街等核心商务区,为职场精英提供高效通勤选择。
【生活配套】
商业资源:伊藤洋华堂、6万方商业水街及特色风情商业街
生态景观:北临590亩天府森林公园,西靠2.3万方L5活力公园,南接10万方红石公园
教育资源:划入天府新区优质C学区,涵盖麓湖小学、天府七小/八小、元音小学等5所名校,周边更有K12名校天府七中。项目东侧天府八中已启动招生,红石幼儿园等教育设施完善。
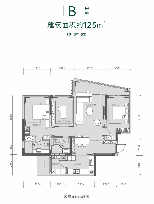
【户型鉴赏】


「麓湖生态城W2悦溪」销售中心电话:028-62671228 【营销中心】
楼盘详情介绍丨最新售价丨户型鉴赏丨周边配套丨在线咨询
如需了解最新房源信息_咨询优惠政策_请拨打上方售楼部电话!
声明:本文由入驻焦点开放平台的作者撰写,除焦点官方账号外,观点仅代表作者本人,不代表焦点立场。


