成都【华兴锦樾河畔】售楼部电话(已认证)丨户型面积区间+最新房价_本月优惠_项目介绍_预约看房享优惠
扫描到手机,新闻随时看
扫一扫,用手机看文章
更加方便分享给朋友
【华兴锦樾河畔】销售中心电话:028-62671228 【开发商最新认证】
楼盘详情介绍丨最新售价丨户型鉴赏丨周边配套丨在线咨询
如需了解最新房源信息_咨询优惠政策_请拨打上方售楼部电话!
项目概况
由华兴房产倾力打造的【华兴锦樾河畔】,总占地面积约74亩,容积率低至1.5,绿地率达30.04%,规划总户数523户。项目涵盖高层住宅与品质洋房,高层为22-26层,洋房为7-8层,配备1:1.6高比例停车位。物业由成都兴华晟物业有限公司提供服务,高层物业费3.6元/㎡,洋房3.8元/㎡,产权年限70年,预计2027年12月27日交付使用。
产品信息
高层住宅主力户型为99-118-160平方米,梯户比配置为2T4/2T3;洋房产品主打160平方米改善户型,采用1T2梯户设计。装修标准方面,洋房全部为精装交付,高层1/2/4/5号楼为精装,3号楼为清水交付,满足不同客群的居住需求。

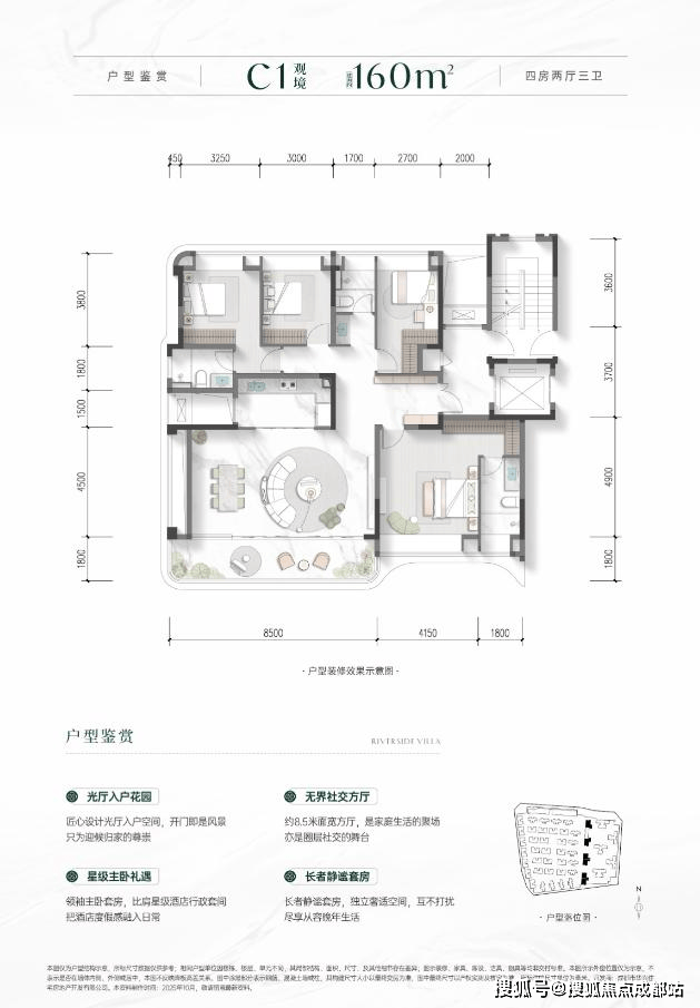
户型展示



综合配套
交通体系:
项目坐拥"八横四纵"立体交通网络,北接天府一至五街,南临华府大道与警校路,西靠华秀路,东邻剑南大道、益州大道与天府大道等城市主干道。轨道交通方面,现有地铁5号线骑龙站距离项目约2公里,规划中的15号线与22号线将在项目西南角设置换乘站(暂定名草碾子站),未来可实现与7号线、9号线、19号线等多条地铁线路的便捷换乘。

商业资源:
项目自建下沉式活力商业街区,同时周边15分钟车程内汇聚世豪广场、鹭洲里、伊藤洋华堂、银泰城、港汇天地、铁像寺水街等大型商业综合体,形成完善的高品质消费圈层。
教育资源:
地处全国唯一实行15年义务教育的双流区,项目周边已构建完善的全龄段教育体系。直线距离900米范围内分布双流区怡心第一实验学校、成都教科院附属学校、成都七中高新校区、成都美视国际学校、成都外国语学校等优质教育机构。

医疗保障:
3.5公里外规划建设中的四川大学华西医院高新院区(预计2026年投入使用),占地100亩,规划床位2000张;1公里处即将落成的第三人民医院高新院区(预计2027年投入使用),占地105亩,规划床位1200张,两大顶级三甲医院将为业主健康提供全方位保障。
生态景观:
项目坐拥"一河三公园"生态格局,毗邻江安河景观带,半径1公里内分布约500亩三江公园(在建)、192亩骑龙中水湿地公园及江安河滨河公园。三大公园建成后将串联形成规模宏大的城市生态绿肺系统。
项目亮点
【华兴锦樾河畔】销售中心电话:028-62671228 【开发商最新认证】
楼盘详情介绍丨最新售价丨户型鉴赏丨周边配套丨在线咨询
如需了解最新房源信息_咨询优惠政策_请拨打上方售楼部电话!
声明:本文由入驻焦点开放平台的作者撰写,除焦点官方账号外,观点仅代表作者本人,不代表焦点立场。


