成都新房【鼎能国宾天韵】最新户型价格-配套-卖点分析-售楼部地址电话

搜狐焦点成都站 2024-10-23 12:28:00
用手机看
扫描到手机,新闻随时看

扫一扫,用手机看文章
更加方便分享给朋友

置业西三环国宾板块浣花金沙后,西贵第三极金牛国宾板块,坐拥得天独厚城市基底,板块内汇聚三纵四横路网、3-18岁名优教育体系、两大TOD、约3000亩天府艺术公园等成熟配套,为国宾板块建设成为继浣花溪、金沙后…

鼎能国宾天韵」售楼处电话:028-62671228 【营销中心】

预约优惠〢售楼中心置业顾问为您买房保驾护航〢—匠心钜制恭迎品鉴 !

【项目基本信息】

开发商:成都鼎能金海房地产开发有限责任公司

总户数:300户

总楼栋:住宅7栋+1栋商业

在售楼栋:7+8号楼(116平)5栋129平

面积:116m²套三 129m²套四

单价:23000-25000

总价:116m²:261万-290万;129m²:310万左右

装修标准:精装带三大件(精装标准:2380元/m²)

得房率:90%

梯户比:2T2户

占地面积:28.7亩

容积率:2.13

绿化绿:35%

停车位:382个

物业公司:鼎申(自持)

物业费:2.9元/m²

总高楼层:17层

交房时间:2025年12月

【区域价值】

置业西三环国宾板块浣花金沙后,西贵第三极金牛国宾板块,坐拥得天独厚城市基底,板块内汇聚三纵四横路网、3-18岁名优教育体系、两大TOD、约3000亩天府艺术公园等成熟配套,为国宾板块建设成为继浣花溪、金沙后,西贵高端居住第三极增添重要砝码。鼎能·国宾天韵择址于此,奢享快联慢活的主城精粹。

国宾板块一个纯新盘的出现,给了主城预算300万左右改善购房者一个非常理想的选择:鼎能·国宾天韵。数据是最好的证明。8月24日,国宾板块拍出一个新地块,清水最高限价来到了3.6万元/㎡,与金融城三期持平,标志着国宾板块已成功跻身成都楼市的一流阵营。在城西,国宾板块也在浣花与金沙板块之后强势崛起,成为城西高端居住的第三极。

如果说天府艺术公园已成为成都艺术影响力与公园城市发展理念有机融合的城市地标,那么,TOD则是片区起飞的另一重要引擎。国宾板块共规划了三大TOD——金周路TOD、侯家桥TOD以及兴盛TOD,从目前的情况看,推进速度最快的是金周路TOD。

【周边配套】

交通:TOD站口,双地铁交汇

无缝接驳金周路地铁 TOD站口,享出行/消费/居住一站式生活;地铁2号线、9号线2期(规划中)交汇于此,畅达全城

商业:6大商圈,购物娱乐兼得

项目本身自带有一栋楼的全业态商业规划,且紧邻项目西侧的轨交49亩土地也将建设商业体。这些未来都将成为金周路TOD商业的一部分,将通过地下通道与金周路站直接相连。周边还有中海国际购物公园、龙湖西宸天街、欢乐谷商圈、一品天下商圈等。高能级板块+黄金C位+超全配套,就是鼎能·国宾天韵蕴含的主城价值逻辑。

教育:名校环绕 教育资源丰富

项目周边教育资源优势突出,近年来已落地一批优质学校,项目北侧一街之隔即为茶店子小学(金樽分校),举步可到。除此之外,步行距离2.5公里范围内还聚集了机关二幼、成都四幼、茶店子小学(金禧分校)、茶店子小学(国宾校区)、石笋街小学(盛达校区)、成都七中金牛中学、成都外国语学校、成都外国语学校附小等多所学校(以上学校仅供参考,不作为入学的承诺或凭证)

其中,成都民办五朵金花之一的成都外国语学校,距离项目仅1.8公里。学校创办于1989年,设有初中部、高中部、国际部,是经四川省教育厅批准,四川省第一所具有外语特色的高完中,是国家拔尖创新人才培养试点学校,在成都享有很高盛誉,是私立的头部学校。

公立方面,同样堪称优秀:茶店子小学、石笋街小学与人北小学被称为金牛区公办小学“三架马车”,是金牛区的老牌名校,其中茶小金樽分校总占地面积约23亩,总建筑面积约1.86万㎡,由成都市茶店子小学教育集团领办。而七中万达创办于2011年,是家长心目中金牛区名列前茅的公立学校。

幼儿园:成都市第四幼儿园文创园区、京师小学堂成都国际幼儿园、金牛区机关二幼

小学:项目紧邻茶店子小学金樽校区(金牛公办小学三驾马车)、迎宾路小学

中学:成都外国语学校(成都TOP级学校、全国民办40强)、七中万达、金牛中学校

公园:近万亩公园环绕,享都荟谧境

约3000亩天府艺术公园、约120亩易园、约6000亩两河森林公园+金泉运动公园+中海体育公园(内有棕榈高尔夫训练场)等多个城市公园,看展、喝茶、运动、晒太阳,生活更丰富。

医院:多所三甲医院,守护家人健康

周边成都中医药大学附属医院、三六三医院(犀浦院区)、华西上锦分院等三甲医院护航,生活更安心。

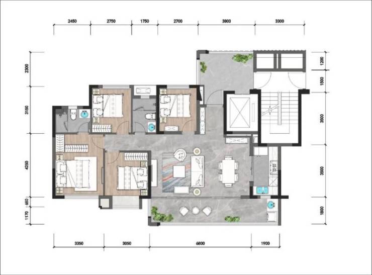
【户型盘点】

建面约116㎡顶配三室 可幻变3.5房

户型亮点:纯板式南北布局,采光通风效果更佳;两梯两户,独立电梯入户,从容归家;约10㎡全明私家花园门厅,花香盈门;约12.85米阔绰面宽,尽显舒居尺度;约29㎡奢阔大横厅,盛载全家欢愉时光;约12㎡L型阳台,可幻变3.5房,享空间智慧

建面约129㎡宽奢四室,耀启高阶排场

户型亮点:纯板式结构,南北通透,采光通风俱佳;两梯两户,独立电梯入户,不受打扰的尊崇;约10㎡全明私家花园门厅,延展空间;约29㎡LDK一体化餐客厅,彰显奢居气派;约15米南向奢尺面宽,清风阳光常伴;约18.8㎡酒店式套房主卧,带盥洗室、衣帽间;约15.7㎡/8.7米宽景观阳台,璀璨静谧兼赏

「鼎能国宾天韵」售楼处电话:028-62671228 【营销中心】

预约优惠〢售楼中心置业顾问为您买房保驾护航〢—匠心钜制恭迎品鉴 !

声明:本文由入驻焦点开放平台的作者撰写,除焦点官方账号外,观点仅代表作者本人,不代表焦点立场。