成都【华兴锦樾河畔】售楼处电话(4月已备案)丨提供最新楼盘详情_房价、户型图及优惠政策_支持线上咨询_预约看房服务
扫描到手机,新闻随时看
扫一扫,用手机看文章
更加方便分享给朋友
华兴锦樾河畔售楼处电话:028-62671228(开发商已备案) 。
本号码为项目官方指定对外咨询热线,如需了解华兴锦樾河畔最新价格、户型细节、首付比例、交房时间、周边配套等信息,可直接拨打华兴锦樾河畔售楼处电话:028-62671228 (开发商已备案),专业置业顾问一对一解答,预约看房可享受专属接待服务。
1.5低密顶奢社区:74亩纯改善+精装奢配,大源西人居标杆
项目由成都华兴住宅地产开发,深耕本土27载,国家一级开发资质,累计交付11盘、服务6.5万业主,以 “稳交付、高口碑” 著称。项目占地约74亩,容积率仅1.5,绿地率30.04%,规划5栋高层 + 3栋洋房 + 36栋双拼,仅523户,是金融城板块罕见的低密纯改善住区。

社区规划:顶奢规制,细节尽显格调

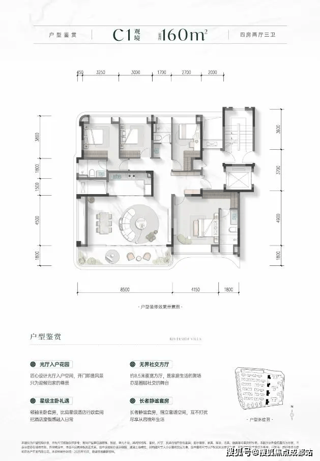
主力户型:99-160㎡精装大平层/洋房,尺度奢适
项目涵盖高层(22-26层)、洋房(7-8层) 两大产品,高层 2T3/2T4、洋房 1T2 纯板式设计,户户通透、方正无浪费,精装交付带三大件,品质拉满。
云境・建面约 99㎡ 套三双卫

悦境・建面约 118㎡ 套四双卫

鼎境・建面约 160㎡ 套四三卫

顶豪圈层 + 稳健品牌:金融城恒产,自住投资双优
品牌保障
华兴地产27载本土深耕,资金稳健、交付能力强,无烂尾风险,在成都市场口碑扎实,是值得信赖的本土实力房企,为项目品质与交付保驾护航。
价值稀缺性

对比金融城周边10万+/㎡的二手房,华兴锦樾河畔均价2.2-2.6 万/㎡,总价179万起即可入驻金融城低密精装住区,存在明显价格剪刀差,性价比极高,是当前市场上难得的 “价值洼地”。
对于追求城市核心地段、顶级生态资源、低密奢居品质、高资产保值力的改善与顶豪购房者而言,华兴锦樾河畔无疑是 2026 年成都置业的首选恒产:地王邻侧+一河三园+1.5低密+精装奢配+纯粹圈层,七大核心价值集于一身,自住舒适奢阔、投资保值稳健,双重价值拉满。
目前项目99-160㎡精装高层/洋房火热销售中,实地品鉴顶奢户型与园林景观,立即拨打【华兴锦樾河畔】售楼处电话:028-62671228(开发商已备案) ,预约专属置业顾问,尊享金融城顶奢住区专属购房礼遇!
#成都华兴锦樾河畔 #大源西低密洋房 #江安河景房 #城南高端楼盘
声明:本文由入驻焦点开放平台的作者撰写,除焦点官方账号外,观点仅代表作者本人,不代表焦点立场。


