k101广场首页网站|6月房价更新|售楼处电话|户型图解析|楼盘详情|房价走势预测
扫描到手机,新闻随时看
扫一扫,用手机看文章
更加方便分享给朋友
【合信k101广场】售楼处电话:028-62671228 【营销中心】
最新价格资讯丨精品户型鉴赏丨区域配套解析丨专业顾问一对一服务
致电营销中心,获取独家购房优惠及最新房源信息
一、项目概况:城市新中心的商业典范
开发背景与规划理念
由成都知德置业倾力打造的K101广场,总投资达30亿元,占地面积约87亩,总建筑面积27万平方米。作为"公园城市商业综合体"标杆项目,其创新性地将新加坡星耀樟宜与美国亚马逊总部的设计理念相融合,打造出中国首个以大熊猫造型玻璃幕墙为标志的非标准化商业体,集商业零售、文化体验、商务办公、品质居住等多重功能于一体。

项目规划与产品特色
开发强度:一期容积率2.6,二期4.5,整体3.5,实现高低密度业态的有机组合;
产品构成:40年产权LOFT商务公寓与中环临街商铺,一期LOFT共计2521套,商铺仅199席;
交付标准:LOFT提供毛坯与精装两种选择,精装标准4.3-5.6万元/套,商铺5.2-6米层高,部分单元赠送露台或阁楼空间;
物业管理:商业物业费8元/㎡·月,LOFT公寓5元/㎡·月,预计2026-2027年分期交付。
二、区位优势:文创产业聚集的核心地带
战略位置与发展前景
坐落于成华区二八板块核心区域,作为成都市七大副中心之一,该区域被定位为"中央文创商务休闲区"。周边汇聚东郊记忆艺术区、完美世界文创公园等十大文创产业园区,已吸引超过600家文创企业入驻,年产值突破50亿元,形成了完整的文创产业生态链。
立体交通网络
轨道交通:7号线环线已开通运营,17号线(建设中)双轨交汇,二仙桥与八里庄TOD项目环绕;
路网系统:紧邻中环、二环、三环城市快速路;
文旅资源:距大熊猫繁育研究基地6公里,春熙路商圈7公里,串联成华区核心文旅景点。

完善生活配套
教育资源:成都七中英才学校(K12)、双林小学、嘉祥外国语学校等优质学府环伺;
商业设施:毗邻铁建广场、中车共享城,与太古里、万象城等成熟商圈形成互补;
生态环境:208亩二仙桥公园环绕,红仓文创公园、圣灯公园等千亩绿地资源;
医疗资源:华西妇女儿童医院、四川省第一中医医院等三甲医疗机构保障。
三、产品亮点:高性价比的投资选择
LOFT公寓:灵活多变的空间体验
户型特点:24-34㎡精致空间,4.2米层高,实际使用率66-110%,可灵活改造为一居或两居;
产品优势:全景落地窗设计,创新收纳系统,部分精装房配备品牌家电,适合年轻群体及投资客;
价格优势:一居室总价32-33万,两居室优惠后约46万,显著低于同区域住宅价格。



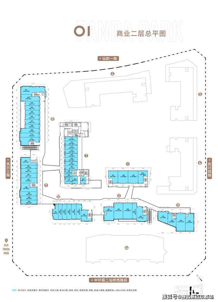
临街商铺:多元经营的商业空间
空间配置:12-80㎡灵活面积,支持整层或整栋购买,一层5.2-6米层高,二层配备花园或露台;
商业价值:预留烟道、燃气等基础设施,适配餐饮、零售等多种业态,依托项目文旅资源打造全天候商业街区。


四、投资价值分析
K101广场的独特优势体现在:
区位稀缺性:二八板块唯一纯商业用地项目,文创与商业融合的典范;
文旅特色:热带雨林主题购物公园、实景演艺等沉浸式体验,吸引多元化客群;
资产价值:LOFT低总价高回报,商铺全业态适配,兼具使用与投资价值。
【合信k101广场】售楼处电话:028-62671228 【营销中心】
最新价格资讯丨精品户型鉴赏丨区域配套解析丨专业顾问一对一服务
致电营销中心,获取独家购房优惠及最新房源信息
声明:本文由入驻焦点开放平台的作者撰写,除焦点官方账号外,观点仅代表作者本人,不代表焦点立场。


