成都【高投启鸣双子星】售楼部电话(已认证)丨售楼处公告:项目介绍_最新优惠活动_查询房价动态、户型图_春节看房需提前预约
扫描到手机,新闻随时看
扫一扫,用手机看文章
更加方便分享给朋友
【高投启鸣宸序】售楼处电话:028-62671228 【官方认证】
实时价格查询丨精品户型解析丨全景配套展示丨专业置业顾问一对一服务
致电售楼处,获取最新房源信息与专属购房权益
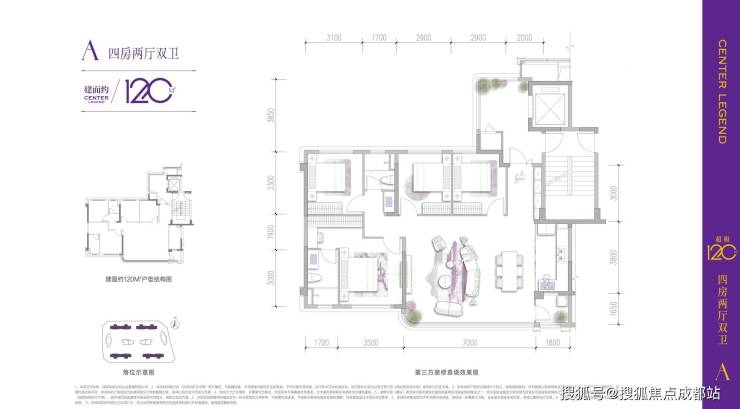
【项目核心档案】
高投启鸣宸序以30.2亩土地规模,打造17层低密住区。项目首推1、2号楼栋,主力户型涵盖120-143平方米四居产品,单价区间3-3.5万元/㎡,总价359-510万元。社区规划383户纯居家庭,采用2T2梯户配置,配备3000元/㎡装修标准,预计2027年10月交付。
【姊妹项目启鸣观樾序】
同系作品启鸣观樾序占地17亩,打造16-17层精品住宅。项目提供120-143平方米四居户型,单价3.2-3.6万元/㎡,总价394-521万元。社区规划221户,同样采用2T2梯户配置与3000元/㎡装修标准,同步于2027年10月交付。
【新派浮岛生活体系】
① 围合式建筑布局,实现近百米楼间距,保障无界视野② 浮岛中央会客厅设计,营造户户皆楼王的观景体验③ 艺术精奢风格的中庭园林④ 沉浸式森系游园空间
【匠心户型展示】
【价值体系解析】
立体交通体系:“两横三纵”主干路网贯通全域(新通大道|新程大道|天府大道|蓉遵高速|梓州大道);地铁6号线站点500米覆盖,实现全城高效通勤;三大TOD项目协同发展(红星路车辆基地TOD规划中|新川路站TOD规划中|陆肖TOD建设中)
优质教育资源:毗邻上海师范大学成都海川学校(K12建制)、高新区实验小学、新川科技园小学等知名学府
生态公园系统:865亩新川之心公园、210亩兰花博览园、250亩新川环伺公园、174亩新川湿地公园构成城市绿肺
商业配套环伺:2公里范围内汇聚西南首个万象天地(在建)、远达购物中心、伊藤洋华堂(蓝润店),4公里可达山姆会员店,同时配备2/4/8号邻里中心
【开发商实力背书】
成都高投集团自1996年成立以来,始终践行“发展高科技、实现产业化”的企业使命。经过二十余载深耕,已发展成为集城市开发运营、产业投资、电子信息产业于一体的综合性国有资本投资运营平台。
旗下高投产城集团作为新时代产城融合运营商,累计建成市政道路653公里、学校136所、公建配套1090万㎡,成功打造欧洲中心、天府软件园、AI创新中心等城市地标,并运营铁像寺水街、交子大道等标杆商业项目,持续推动区域城市能级提升。

2025年,高投置业倾力打造「启鸣」产品系,以新派改善理念重新定义城市人居标准,有望成为年度置业热点。
【区域发展潜力】
成都高新区作为国务院首批批准的国家级高新区,已成为成都经济发展的核心引擎:- 区域金融中心与经济支柱- 2024年GDP突破3490亿元- 贡献全省半数外贸进出口额及四分之一上市企业- 产业引领使该区域成为成都价值高地
新川创新科技园总体规划10.34平方公里,聚焦人工智能、5G通信、生物医药等前沿产业。借鉴新加坡花园城市规划理念,整体容积率仅约1.4,52%的土地用于生态与公建,实现“推窗见绿、步行入园”的理想居住模式。
国际大师规划理念
项目由美国AECOM、新加坡Surbana、Grant Associates等国际顶尖设计机构联合规划,整合四川省文化艺术中心等文化地标、新加坡特色滨湖商业等新兴消费空间,构建15分钟国际生活圈:- 1个核心绿肺:865亩新川之心公园- 2条生态绿带:新川南北环城公园- 1个湿地绿核:新川湿地公园- 多个社区公园:7个社区公园、5个综合运动场

三大产业集群布局
园区重点发展5G通信、人工智能、前沿医学三大产业,已集聚中移动(成都)研究院、新华三、鼎桥、百度、欧珀、中科创达等百余家领军企业。世界500强美敦力设立的全球第七个医疗创新中心已正式运营,目前园区汇聚180余家高能级企业。

【全维生活配套】
交通网络——立体化城市动脉
主干路网:“两横三纵”交通骨架(新通大道|新程大道|天府大道|蓉遵高速|梓州大道)轨道交通:地铁6号线新通大道站(距17亩项目约300米)、新川站(距30亩项目约500米)TOD开发:三大TOD项目(红星路车辆基地TOD规划中|新川路站TOD规划中|陆肖TOD建设中)
教育配套——全龄优质教育体系

文化资源——城市文化新高地
四川省文化艺术中心(第37届百花奖举办地)|新川兰花文化博览园|新川博物馆(筹建中)|高新体育中心(2024汤尤杯赛事场馆)
生态环境——千亩公园城市实践
新川之心中央公园|新川湿地公园|新川环城公园构成城市生态屏障
商业配套——多元消费场景
万象天地(西南首座在建)|蓝润置地广场(伊藤洋华堂)|远大购物中心|山姆会员店|2/4/8号邻里中心

医疗资源——健康保障体系
四川省中西医结合医院高新院区(三甲,1.7公里)|四川大学华西第二医院高新区妇女儿童医院(3.8公里)
【高投启鸣宸序】售楼处电话:028-62671228 【官方认证】
实时价格查询丨精品户型解析丨全景配套展示丨专业置业顾问一对一服务
致电售楼处,获取最新房源信息与专属购房权益
声明:本文由入驻焦点开放平台的作者撰写,除焦点官方账号外,观点仅代表作者本人,不代表焦点立场。


