成都【电建华曦府】最新房价及在售户型推荐!最低总价_拨打最低总价_拨打【电建华曦府】售楼处电话欢迎垂询!

搜狐焦点成都站 2025-09-27 10:52:27
用手机看
扫描到手机,新闻随时看

扫一扫,用手机看文章
更加方便分享给朋友

户型亮点:约8㎡全明入户光厅,独立玄关享尊崇归家;约58㎡ LDKG领创级剧场客厅,奢阔演绎格调生活场;约16㎡环岛式阔境厨房,从容烹饪幸福滋味;约37㎡套房主卧,私享约14㎡独立衣帽间;次卧面积均约10㎡…

【电建国宾华曦府】售楼处热线:028-62671228 【营销中心】

西三环·成外旁·百亩洋房住区,建面约110-143㎡国宾封面大宅

一、项目概述

【项目占地】约92亩

【容积率】约2.0

【绿化率】约35%

【项目规划】规划19栋建筑

【房源套数】945户

【产品面积】建面约110㎡—143㎡

在售情况:14号楼:110平,1T2户;12号楼:130平,2T2户;16号楼:143平,2T2户(即将售罄);19号楼:143平,2T2户(货源充足)

装修标准:3299元/平

预计单价:2.5万/平起

预计交房时间:2026年9月

二、户型鉴赏-封面大宅

曦光:建面约110㎡-三室两厅两卫

户型亮点:约6㎡全采光入户私厅,臻享独立阔境玄关;约45㎡LDKG奢尺宽厅,大气格局,无界享受;约6㎡U型开放式厨房,予家烟火有味;约22㎡主卧套房,尊享独立卫浴、步入式衣帽间;约11㎡南向阳台,私享四季无限风光。

煦光:建面约130㎡-四室两厅两卫

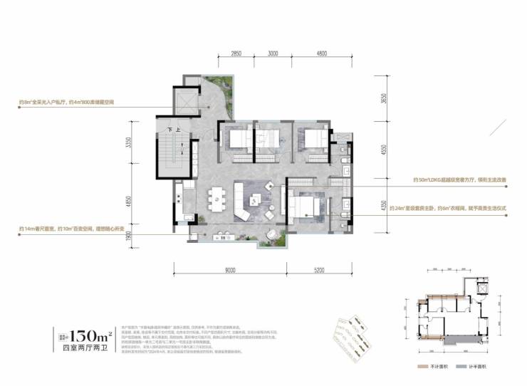
户型亮点:约8㎡全采光入户私厅,约4㎡800库储藏空间;约50㎡LDKG超越级宽奢方厅,领衔主流改善;约24㎡星级套房主卧,约6㎡衣帽间,赋予高贵生活仪式;约14m奢尺面宽,约10㎡百变空间,理想随心所变

曜光:建面143㎡-四室两厅两卫

户型亮点:约8㎡全明入户光厅,独立玄关享尊崇归家;约58㎡ LDKG领创级剧场客厅,奢阔演绎格调生活场;约16㎡环岛式阔境厨房,从容烹饪幸福滋味;约37㎡套房主卧,私享约14㎡独立衣帽间;次卧面积均约10㎡,超改善级空间打造;约14㎡奢阔二合一阳台,与自然无界交融。

三、产品价值

神鸟迎归-尊荣归家礼遇;12道光影水柱,取意太阳神鸟,表达对光明和美好的追逐与向往。

封面大门-望族归家礼序;臻造7米挑高,长约76米阔尺疆域大门;门体全系使用意大利进口普拉达绿奢石,进行手工铺设,门前种植了两颗迎客松,以丰富的视觉语言形式传达“迎客之道”,也寓意着“接福纳祥”

精奢大堂-以格调养尊荣;归家大堂奢遇“劳斯莱斯”梦幻星空顶设计,千颗灯光形成华曦府以光为寓意的logo点点星光让归家如梦如幻,彰显奢华格调。

水幕天井-一韵东方谧境;下沉式“四水归堂”中庭叠水景观,寓意水聚天心。天光下临,地德上载,不仅有聚财的功效,更藏风聚气,打造一幕自然的迎宾礼序。

入院美学-深藏宁静与奢华;独立主题单元入户花园,设置双侧叠水溪景归家入户,运用现代科技水刀拼花雕刻古典川蜀纹样,入户门头采用石材和弧形玻璃精致交接,细节上处处体现华曦府对于美学艺术的追求。

归家礼遇-风雅仪式享受

约5.4米层高酒店式归家大堂,全透明玻璃入户,内透出建筑外观高山流水元素的天然石材背景墙,地面通铺全系土耳其进口天然石材,打造精奢质感归家礼遇。

品牌介绍

中国电力建设集团有限公司是国务院国有资产监督管理委员会直接管理的中央企业。作为共和国长子、全球清洁低碳能源、水资源与环境建设领域的引领者,全球基础设施互联互通的骨干力量,服务“一带一路”建设的龙头企业,助力实现人民对美好生活的向往。中国电建地产集团有限公司是国务院国资委核定的16家主营房地产开发与经营业务的中央企业之一,具有房地产开发一级资质。

区域价值

【中优规划】时代红利,战略规划成就置业热点;成都主城金牛国宾版块,“中优”战略规划,旨在打造高品质生活宜居地。

【未来发展】耀目城市未来,恒贵价值高地;国宾高科新城,千亿高科产业聚集,国家高科产业中心,产业发展带来经济、城市发展。

周边配套

教育:全龄段优越教育资源;幼儿园:成都十六幼儿、机关二幼、金周路幼儿园、私立幼儿园“英菲克幼儿园”;小学:茶店子小学金樽校区;中学:七中万达金牛中学、[教育部批准具有保送资格] 成都外国语学校。

交通:“两横三纵四地铁”立体交通。两横:金科南路、北三环;三纵:金牛大道、西华大道、蜀西路;四地铁:地铁2号线、6号线、9号线(规划中)、12号线(规划中)。

医疗:三级医院:四川省人民医院金牛医院;综合性三级甲等医院]:成都三六三医院、成都市西区医院;四川省第五人民医院(预计2026年建设完成)。

商业:2km内四大商场:中海国际购物公园、天府艺术公园、8万方天府111、山姆会员店。4km内高端商业:15万方龙湖西宸天街、24万方金牛大悦城(在建)。

公园:天府艺术公园、中海体育公园、两河森林公园、金泉运动公园、犀浦体育公园、成都欢乐谷

【电建国宾华曦府】售楼处热线:028-62671228 【营销中心】

声明:本文由入驻焦点开放平台的作者撰写,除焦点官方账号外,观点仅代表作者本人,不代表焦点立场。