成都【中海锦叁号院楼】售楼部电话(已认证)丨售楼处首页:了解房价动态、户型大小、特价房源、预约享优惠。
扫描到手机,新闻随时看
扫一扫,用手机看文章
更加方便分享给朋友
【中海锦叁号院】销售中心电话:028-62671228 【官方认证】
楼盘详情介绍丨最新售价丨户型鉴赏丨周边配套丨详细在线解答
如需了解最新房源信息_咨询优惠政策_请拨打上方售楼部电话!
【项目核心价值】
由成都海赢房地产开发有限公司匠心打造的中海锦叁号院,坐落于青羊区核芯板块,项目总占地121亩,建筑面积约13.4万平方米,以1.8的低容积率营造舒适宜居的社区环境。规划657户精品住宅,配备1073个车位,实现1:1.6的高标准车位配比。
项目涵盖7-14层洋房及上下叠拼产品,洋房面积段143-248㎡,叠拼主打290-330㎡阔绰空间。室内层高精心设计,143-173㎡户型达3米,198㎡提升至3.1米,249㎡更实现3.15米层高,叠拼产品则享有3.4米的优越层高。梯户配置彰显品质,143-198㎡采用2梯2户,248㎡实现一层一户的尊享布局。
项目于2024年7月竞得地块,预计2027年3月底前交付。精装标准配备三大件,由知名中海物业提供4.8元/㎡的优质服务。当前售价区间3.3-4万元/㎡,总价480-1600万,满足不同客群的改善需求。
【立体交通网络】
项目坐拥"三横三纵"路网格局:日月大道、光华大道、光华八线构成横向主干道;西二环、西三环、绕城高速形成纵向通道。轨道交通优势显著,距4号线蔡桥站约600米,13号线瓦窑滩站(在建)约1500米,19号线同步规划,实现多维度出行覆盖。
【优质教育资源】
项目周边汇聚全龄段优质教育资源:实验小学附属幼儿园(蔡桥分园)、金沙幼儿园(万家湾园区)提供学前教育保障;泡桐树小学(桐欣校区)、同辉(国际)学校、草堂小学(子美校区)构建小学教育矩阵;石室联合中学(弘文校区)、青羊实验中学及成都市第37中学校组成中学教育梯队,更有光华校区纳入大摇号范围。
【生态休闲配套】
项目毗邻五大城市公园体系,包括F体育公园、在建的蔡桥公园、非遗公园、成飞公园,西侧更规划有大型市政公园,为业主提供全方位的休闲健身空间。
【完善生活配套】
直线5公里范围内覆盖三大成熟商圈:鹏瑞利商圈、中铁西城商圈、青羊万达商圈,集聚多个城市级商业综合体。医疗资源丰富,周边坐落成都市妇女儿童中心医院、成飞医院、成都中医药大学附属医院及四川省人民医院等三甲医院。
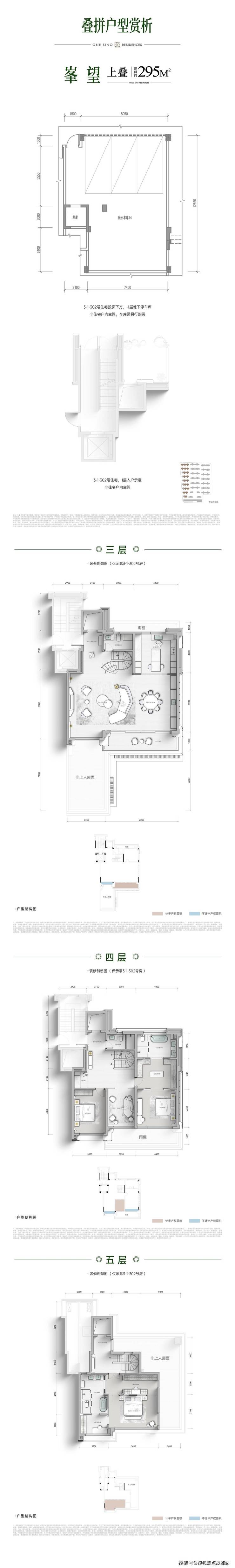
【户型空间解析】
洋房系列
143平米舒适三居

170平米阔绰四居

198平米尊享平层

249平米奢阔大宅

叠拼产品
295㎡上下叠拼
【中海锦叁号院】销售中心电话:028-62671228 【官方认证】
楼盘详情介绍丨最新售价丨户型鉴赏丨周边配套丨详细在线解答
如需了解最新房源信息_咨询优惠政策_请拨打上方售楼部电话!
声明:本文由入驻焦点开放平台的作者撰写,除焦点官方账号外,观点仅代表作者本人,不代表焦点立场。


