成都恒大天府半岛售楼处电话丨恒大天府半岛营销中心电话丨地址丨户型价格|楼盘详情
扫描到手机,新闻随时看
扫一扫,用手机看文章
更加方便分享给朋友
「恒大天府半岛」销售中心电话:028-62671228 【营销中心】
楼盘详情介绍丨最新售价丨户型鉴赏丨周边配套丨在线咨询
如需了解最新房源信息_咨询优惠政策_请拨打上方售楼部电话!
【项目概况】
占地面积:131亩
产品类型:32层高层住宅
首批房源:77号楼(共80栋)
户型配置:3梯4户
建筑面积:121-142㎡(1-2号房142㎡,3-4号房121㎡)
空间利用率:142㎡户型90%,121㎡户型89%
公摊面积:23%
园林绿化:35%
容积指标:4.9
物业服务:金碧物业(3元/㎡/月)
装修标准:3200元/㎡(含地暖+新风系统)
参考均价:13000-15000元/㎡
房源总量:512套
交付时间:2026年6月
【核心优势】
坐拥麓湖板块稀缺资源,首付20万+即可入手三房双卫臻品。3T4梯户配置保障出行效率,精工匠筑品质人居。

【区位价值】
作为国家级新区核心板块,天府新区2023年GDP达4632.8亿元(增速6.9%),位列全国新区第五。区域已形成"一带两翼一城六区"发展格局,正加速建设西部高端服务业中心和国家自主创新示范区。凭借得天独厚的政策优势与产业集聚效应,这里已成为成都"双核共兴"战略的重要引擎。(数据来源:天府发布官方公众号)

【生态景观】
七期楼栋毗邻规划中的生态公园,推窗可见绿意盎然的自然景观。社区内配置多功能健身场地,实现下楼即享运动休闲,归家即是度假体验。
【置业机遇】
本批次推出建面120-140㎡精装华宅,13000元/㎡起抢占天府新区价值洼地。坐享锦江生态带与麓湖商圈双重配套,以稀缺生态资源重塑高端生活范式。

【全能配套】
商业体系:1公里直达麓坊中心,畅享公园式购物体验。周边聚集和悦广场、三利爱琴海、天府大悦城等高端商业体,98.7亩五期地块规划打造特色商业街区,满足多元消费需求。
教育资源:社区配建幼儿园及小学,毗邻金苹果河畔新世界幼儿园(市一级园)。规划中的吊金滩天桥建成后,2公里范围内可达天府七中、实验外国语学校(西区)等优质学府,提供公立私立双重教育选择。
生态资源:3公里范围内坐拥锦江生态带、天府森林公园等城市绿肺,红石公园等生态矩阵环伺,打造全天候自然栖居体验。

交通网络:立体化交通体系包含天府大道、剑南大道等城市主干道,地铁1号线广福站便捷接驳。规划中的高铁天府站(2025年建成)将进一步提升区域通达性。
医疗配套:周边布局四川泰康医院、华西天府医院等三甲医疗资源,天府新区人民医院提供全方位健康保障。
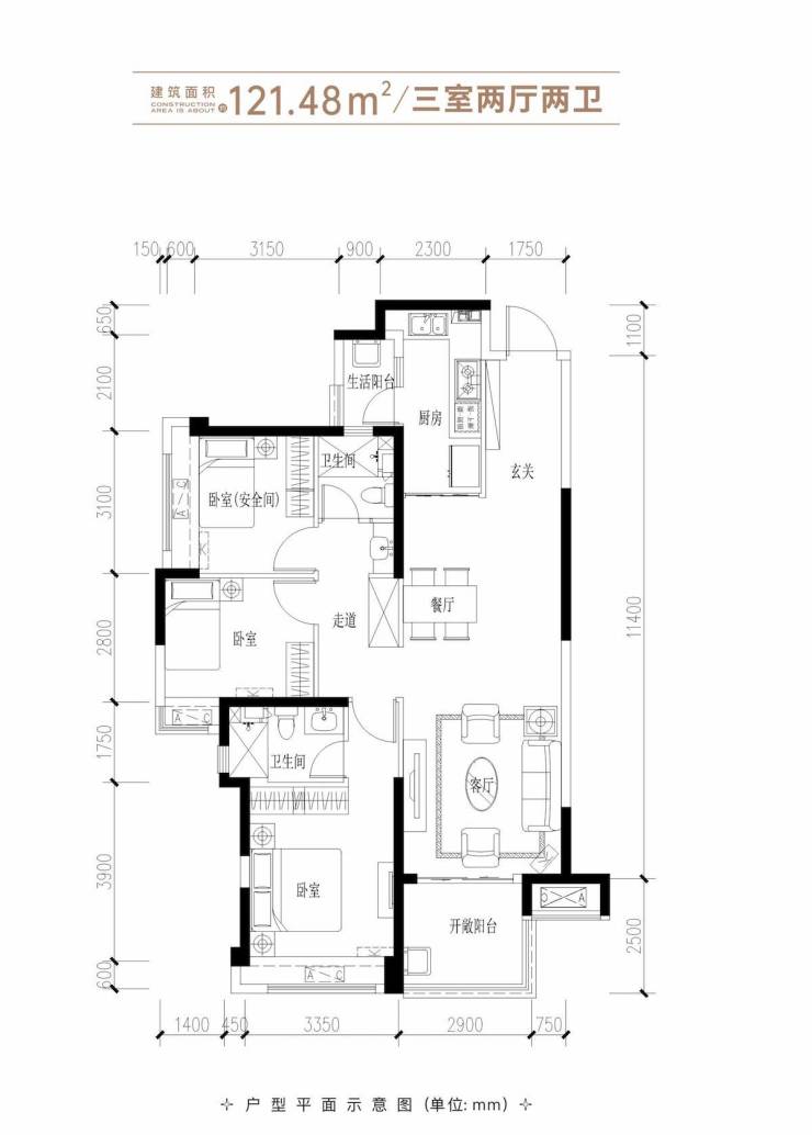
【臻品户型】
三房户型:创新动静分区设计,全屋配置景观飘窗。约6米宽厅连接270°观景阳台,主卧套房保障私密性,次卧瞰景阳台拓展生活场景。
四房户型:餐厨阳台一体化布局,会客空间彰显大家风范。主卧套房配备独立衣帽间,打造专属私密空间。
「恒大天府半岛」销售中心电话:028-62671228 【营销中心】
楼盘详情介绍丨最新售价丨户型鉴赏丨周边配套丨在线咨询
如需了解最新房源信息_咨询优惠政策_请拨打上方售楼部电话!
声明:本文由入驻焦点开放平台的作者撰写,除焦点官方账号外,观点仅代表作者本人,不代表焦点立场。


