成都【深业泰蓉府】最新房价及在售户型推荐!国庆特价房源限时抢购_【深业泰蓉府】售楼处电话欢迎垂询!

搜狐焦点成都站 2025-09-26 11:24:20
用手机看
扫描到手机,新闻随时看

扫一扫,用手机看文章
更加方便分享给朋友

占地面积约120亩(8万㎡),总建筑面积约14.95万㎡,容积率2.0,绿化率30%,规划15栋小高层(7-18层),总户数1228户,车位配比1:1.5(共1867个),人车分流设计提升居住舒适度。 项目…

深业泰蓉府】销售中心电话:028-62671228 【营销中心】

楼盘详情介绍丨最新售价丨户型鉴赏丨周边配套丨在线咨询

如需了解最新房源信息_咨询优惠政策_请拨打上方售楼部电话!

一、项目基本情况

开发商与品质保障

由千亿国企深业集团旗下深业泰然打造,拥有40年开发经验,物业为深圳泰然物业管理,物业费2.96元/㎡·月,提供中档装修交付,品质可靠。

规划参数

占地面积约120亩(8万㎡),总建筑面积约14.95万㎡,容积率2.0,绿化率30%,规划15栋小高层(7-18层),总户数1228户,车位配比1:1.5(共1867个),人车分流设计提升居住舒适度。

价格与交付

当前单价区间约21000-25060元/㎡,总价230万起,低于成华区新房均价,性价比优势显著。预计2025年6月30日交付,现房周期较短。

二、区域价值与配套分析

区位优势

地处成华区新北天地商贸旅游发展区核心,紧邻中环与三环,属“中优”政策重点发展区,未来主城土地稀缺性将进一步凸显。

交通便捷性

地铁3号线动物园站直线距离约900米,1公里内25个公交站覆盖;自驾可通过中环、三环快速通达全城,通勤效率高。

全维生活配套

教育:3公里内58所幼儿园、17所小学(如北新实验小学)、9所中学(如石室初中青龙校区),满足全龄教育需求48。

医疗:成华区人民医院(在建)、城北医院等12所医疗机构环伺,三甲医院稍远需依赖市级资源。

商业:青龙广场(123米)、华润熙悦广场等18个购物中心,日常消费便利。

生态:成都动物园、海滨公园(约721亩)及五彩公园环绕,兼具亲子娱乐与自然静谧。

三、主推户型解析

项目以102-143㎡三至五居为主力,覆盖刚改至改善需求,设计强调功能性与舒适性:

102㎡三居(A02户型)

全明格局,南北通透,动静分区清晰。

L型厨房+客餐厅等宽设计,空间利用率高,适合年轻家庭首改。

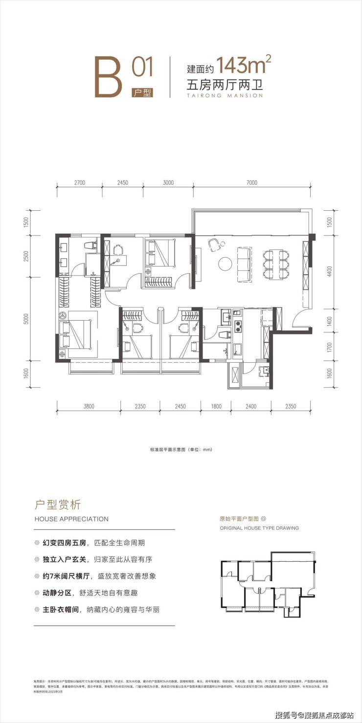
143㎡五居

五居版:7米横厅+“幻变空间”,可灵活改造为四房或五房,适应多代同堂需求。

南北双阳台,采光通风极佳,改善型家庭优选。

131㎡四居

独立玄关+干湿分离卫生间,户型方正,动静分区明确,兼顾私密性与社交需求。

【深业泰蓉府】销售中心电话:028-62671228 【营销中心】

楼盘详情介绍丨最新售价丨户型鉴赏丨周边配套丨在线咨询

如需了解最新房源信息_咨询优惠政策_请拨打上方售楼部电话!

声明:本文由入驻焦点开放平台的作者撰写,除焦点官方账号外,观点仅代表作者本人,不代表焦点立场。