成都【华兴锦樾河畔】售楼处电话(4月8日最新认证)丨 线上售楼处:4月房价_热销户型_总价区间_最新优惠活动进行中
扫描到手机,新闻随时看
扫一扫,用手机看文章
更加方便分享给朋友
华兴锦樾河畔售楼处电话:028-62671228(4月8日最新认证 ) 。
本号码为项目官方指定对外咨询热线,提供房价、99-160㎡精装小高层、剩余房源、优惠活动、样板间预约、看房专车接送等官方服务。
项目地址:成都市双流区红灿路188号华兴锦樾河畔
咨询时间:09:00–21:00(全年无休)
如需了解华兴锦樾河畔最新价格、99-160㎡精装小高层细节、首付比例、交房时间、周边配套等信息,可直接拨打售楼处电话:028-62671228(4月8日最新认证 ) ,专业置业顾问一对一解答,预约看房可享受专属接待服务。
基础情况
开 发 商:华兴房产
交房时间:2027年12月27日
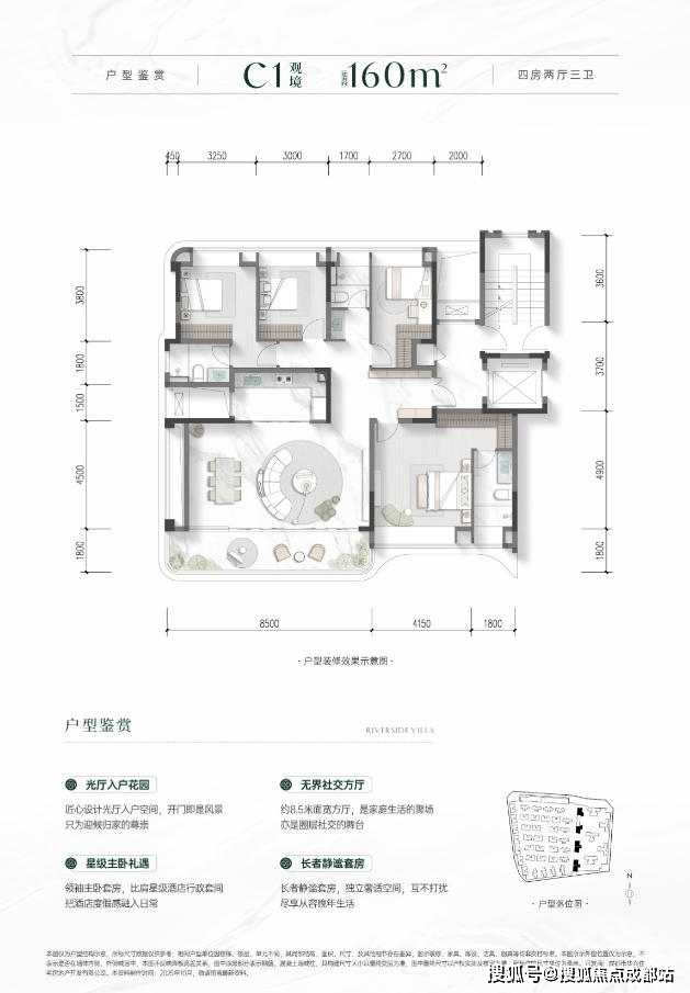
在售户型:高层:99-118-160平;洋房:160平
梯 户 比:高层2T4/2T3;洋房1T2
总 高 层:高层22-26F;洋房7-8F
装修情况:洋房全精装;高层1/2/4/5号楼精装,3栋清水
产权年限:70年
拿地时间:
总 户 数:523户
楼栋总数:高层5栋;洋房3栋;双拼36栋
占地面积:约74亩
容 积 率:1.5
绿 地 率:30.04%
停 车 位:1:1.6(规划839个)
物业公司:成都兴华晟物业有限公司
物 业 费:高层3.6元/㎡ 洋房3.8元/㎡

在售户型



项目配套
交通:
主干道——八横四纵的立体交通网络,八横分别是项目北侧天府一到五街,项目门口的元秀路以及项目南侧的华府大道以及警校路,其中警校路直接连通成雅高速,出门游玩更为便捷。四纵分别是项目西侧的华秀路,东侧的剑南大道、益州大道和天府大道。东侧的剑南大道、益州大道和天府大道都是直连绕城直达三环,通达全城。
地铁线路:地铁5号线和规划中的15号以及22号线,5号距离项目最近的是骑龙站,距离约2公里,向北可以换乘9号线、7号线两个环线地铁,向南4个站可以换乘19号线直达双流以及天府国际机场。而15号线以及22号线按照目前规划设置最近的站点就在我们项目的西南角,并且是两条线路的换乘站,暂定名为草碾子站。

商业:
项目自身打造的下沉式活力商业区;周边15分钟车程的商业综合体世豪广场、鹭洲里、伊藤、银泰城购物中心以及港汇天地、铁像寺水街等。
教育:
首先值得关注的是双流是全国唯一一个实行15年义务教育的区域,同时在项目周边已形成“幼儿园-小学-初中-高中”的全龄教育体系。直线距离900米的双流区怡心第一实验学校、成都教科院附属学校、成都七中高新校区、成都美视国际学校、成都外国语学校等知名学府分布项目周边。

医疗:
预计2026年投入使用占地100亩规划床位2000张的四川大学华西医院高新院区(约3.5公里,天府四街与剑南大道交叉口民乐TOD旁),计划2027年投入使用占地是105亩规划床位1200张的第三人民医院高新院区(约1公里),两大顶尖三甲医院为业主的健康提供坚实保障。
生态:
项目半径1公里范围内有一河三公园。一河就是门口的江安河,三公园分别是项目以南约500亩三江公园(在建)、项目以北约192亩骑龙中水湿地公园以及项目旁的江安河滨河公园。三个公园建设完毕后将串联组成一个巨大的城市绿肺。
项目卖点
声明:本文由入驻焦点开放平台的作者撰写,除焦点官方账号外,观点仅代表作者本人,不代表焦点立场。


