成都【阅天府】诚邀您拨打售楼处热线,轻松获取最新销售资讯、精致户型图、精准一房一价表以及详尽区域图 。

搜狐焦点成都站 2025-09-14 11:56:00
用手机看
扫描到手机,新闻随时看

扫一扫,用手机看文章
更加方便分享给朋友

地铁:19 号线二期(已开通)秦皇寺站距项目仅 430 米,直达双流机场与天府机场;6 号线(已开通)天府商务区站、红莲站;规划中的 26号线(远期)。 成都阅天府作为天西板块的标杆项目,凭借稀缺的地段、…

阅天府】销售中心电话:028-62671228 【营销中心】

楼盘详情介绍丨最新售价丨户型鉴赏丨周边配套丨在线咨询

如需了解最新房源信息_咨询优惠政策_请拨打上方售楼部电话!

一、项目概况:央企联袂打造的纯居标杆

开发商:华发股份与华润置地联合开发,双央企背书,品质保障。

位置:天府新区厦门路与雅州路交界处,位于天西板块核心区,紧邻天府公园与鹿溪河生态区。

产品:占地约 143 亩,容积率 2.4,由 10F 洋房和 23-24F 大平层组成,共 694 户,纯居社区无底商。

价格:均价约 36997 元 /㎡,洋房总价 400-450 万,大平层总价 550-890 万。

交付时间:预计 2027 年 6 月,精装交付(普标 3000 元 /㎡,豪装 7000 元 /㎡)。

亮点:270° 环幕落地窗、铝板 + 玻璃幕墙外立面、下沉式会所、450 米城市会客中轴。

二、区域价值:城市新中心的核心资产

1. 板块定位

天西板块是天府新区总部商务区核心,定位 “未来城市新中心”,与金融城、大源形成 “城南三核”。区域内聚集了蔚蓝卡地亚花园城、万科天府锦绣等豪宅项目,土地楼面价超 17000 元 /㎡,未来升值潜力巨大。

2. 交通配套

地铁:19 号线二期(已开通)秦皇寺站距项目仅 430 米,直达双流机场与天府机场;6 号线(已开通)天府商务区站、红莲站;规划中的 26 号线(远期)。

自驾:天府大道、益州大道、广州路西段等主干道,30 分钟直达金融城、大源。

3. 教育资源

幼儿园:成都市天府新区美地社区幼儿园(布歌未来)、元音幼儿园。

小学:四川天府新区第七小学、天府七中小学部。

中学:天府七中(民办,2025 年面向本区招生)、元音中学。

4. 医疗配套

三甲医院:四川大学华西天府医院(在建,2025 年投用)、万达国际医院(规划中)。

社区医疗:正兴医院(二甲)、天府新区妇女儿童医院(规划中)。

5. 商业配套

已开业:天府招商花园城、方圆荟。

即将开业:天府大悦城(2025 年 12 月开业,15 万㎡商业综合体)、TFS 天府国际保税商业中心(在建)。

6. 生态资源

公园:天府公园(3km 内 23 个公园)、鹿溪河生态区、兴隆湖湿地公园。

绿廊:人字绿廊商业街、城市候机楼景观带。

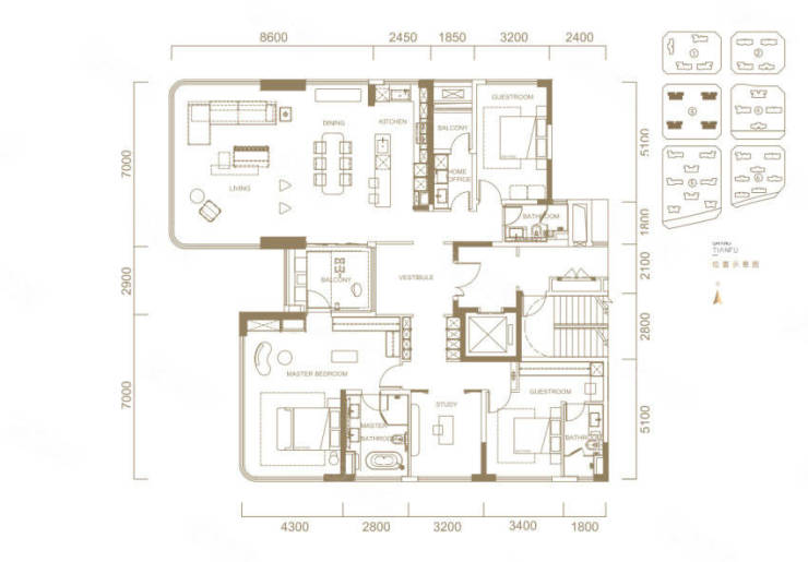
三、主推户型解析:空间美学与功能创新

1. 洋房 143㎡(4 室 2 厅 2 卫)

亮点:1T2 户,独立入户前厅;约 16.6 米采光面,全明格局;主卧套房 + 双次卧,适合三孩家庭。

价格:单价 2.8-3.1 万,总价 400-450 万。

适用人群:改善型家庭,注重舒适性与性价比。

2. 大平层 173㎡(4 室 2 厅 3 卫)

亮点:2T2 户,方厅设计;约 7.2 米横厅,连通景观阳台;主卧 270° 环幕视野,独立衣帽间。

价格:单价 3.2-3.8 万,总价 560-600 万。

适用人群:城市新贵,追求社交空间与景观资源。

3. 大平层 230㎡(4 室 2 厅 3 卫)

亮点:双端全景舱设计,南北双环幕视野;约 14 米主卧采光面,独立书房;U 型悬浮聚厅 + 交互式空中院馆。

价格:单价 3.5-3.8 万,总价 810-890 万。

适用人群:高净值家庭,注重空间尺度与私密性。

四、项目优劣势分析

成都阅天府作为天西板块的标杆项目,凭借稀缺的地段、创新的产品、成熟的配套,成为 2025 年成都豪宅市场的热门选择。其核心价值在于 “城市新中心 + 低密纯居 + 央企品质” 的三重加持,适合追求长期价值的改善型购房者。建议实地考察样板间,重点关注 230㎡双端全景舱户型,同时结合自身预算与居住需求,把握当前政策红利期,理性决策。

【阅天府】销售中心电话:028-62671228 【营销中心】

楼盘详情介绍丨最新售价丨户型鉴赏丨周边配套丨在线咨询

如需了解最新房源信息_咨询优惠政策_请拨打上方售楼部电话!

声明:本文由入驻焦点开放平台的作者撰写,除焦点官方账号外,观点仅代表作者本人,不代表焦点立场。