成都【上璟润府】售楼处电话|最新售价参考|在售户型图集_面积段展示|优惠活动_特价房源|项目详情快速了解
扫描到手机,新闻随时看
扫一扫,用手机看文章
更加方便分享给朋友
【上璟润府】销售中心电话:028-62671228 【营销中心】
如需了解最新房源信息_在售房源价格_请拨打上方售楼部电话!

择址东三环构建公园、教育、居住、商业为一体的生活图景,成为成都高阶改善理想栖所。
交通:东三环、地铁4号线在侧,9号、12号线(规划中)构成立体交通网。
生态:逾万亩青龙湖公园、约2万m²时代云朵公园、约160亩上璟公园的优质生态本底。
教育:区域内有四川师范大学附属临枫小学、树德中学领办的华川中学,项目北侧小学规划中。(不作入学承诺,入学政策最络以教育部门相关文件为准)
商业:华润置地配建约1.5万㎡时代润街已开业,地铁4号线近享万象城、建设路、魅力凯德等城东三大商圈,范家院子TOD商业规划中。

上璟润府以自然为基,筑起约160亩的感官公园,打造约1km溪谷水岸、约1.5km蓝花楹大道、约3.9km公园式归家步道,并结合上璟公园特色构筑溪谷十二景、四季物候、博物成长营地、自然运动空间等配套,每一次归家都是一场穿越公园的漫步。


上璟润府5#地块位于上璟公园南侧地势最高处,天然地势高差拾级而上,构成“步步高升”的地势格局;北临河道享百米溪谷视野,为居者带来尊贵、舒适的生活享受。
低密墅区 仪式归家
1.88超低容积率、点式楼栋布局,打造通透的庭院围合。自然水系贯穿、丰盈园林景观,打造超强仪式感的归家入院体验。
以此24席 终极改善
上璟润府叠拼以大平层化设计,在观景尺度、空间越阶、场景私享、生活尊享等实现全维跃升,深度适配高阶改善家庭需求。引自然入室,高采光、高得房率、南北双花园等,超前创想缔造更尊崇的空间哲学。
【户型鉴赏】
下叠-润锦-建面约227㎡ 四室两厅两卫
【超豪华志趣空间,全采光地下室,成都罕有】
全采光地下双层空间,承载层峰人士运动、观影、收藏、会客、聚会等志趣特权。
【首层两面庭院,内外无界自成一方天地】
首层院子双面瞰景,花园入户将四季美景纳入院中;超大尺度LDKB一体化社交会客厅,圈层交往与家族圆桌聚餐一应承载。
【二层前后双阳台,总裁级主卧套房,室室观景】
约13.5米L型景观阳台,主卧奢配衣帽间、双台盆卫浴;南北双阳台配置阳光流转、绝佳视野。
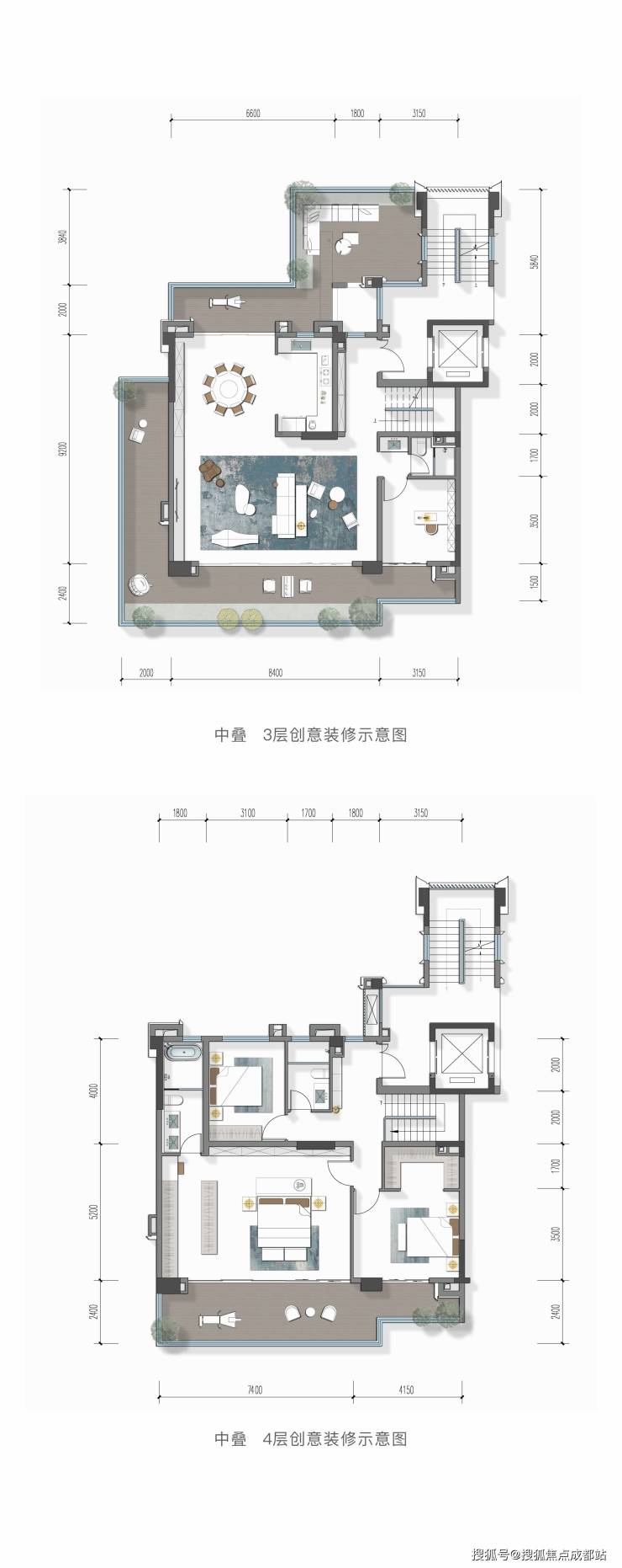
中叠-润安-建面约210㎡ 四室两厅三卫
【三面环绕式空中花园,近赏中庭远眺公园】
三面阳台设计无边界广角视野,实现客餐厅全采光的同时清风流动,空间更具多元化,可以是观景花园、储物空间、也是闲趣天地。
【豪华主卧套房,缔造极致采光面】
阔尺衣帽间+双台盆卫浴,搭配约11.5米L型阳台,园景入目、进阶生活仪式感。
【上璟润府】销售中心电话:028-62671228 【营销中心】
如需了解最新房源信息_在售房源价格_请拨打上方售楼部电话!
声明:本文由入驻焦点开放平台的作者撰写,除焦点官方账号外,观点仅代表作者本人,不代表焦点立场。


