成都【银河玺悦和鸣】售楼处电话来袭!国庆购房狂欢季,每日更新特价房源!在售户型全解析,最新成交价一键查询,更有楼盘详情等您来探!

搜狐焦点成都站 2025-10-01 12:36:06
用手机看
扫描到手机,新闻随时看

扫一扫,用手机看文章
更加方便分享给朋友

项目的所有户型公摊普遍较小,算上阳台、飘窗等赠送空间,整体实得面积均在90%以上,建面约128㎡的套四实得更是达到了约100%。 做到了1梯2户、约7㎡的私享入户厅,四室双卫还有约32㎡的大横厅,实得面积更…

「银河玺悦和鸣」售楼处热线:028-84363344 【营销中心】

「银河玺悦和鸣」主打建面约101-128㎡的套三套四,共计202套,清水挂牌价约15738~19028元/㎡,优惠后总价149万元/套起,结合现在政策,首付1.5成,仅22万左右就可以上车。项目占地约67.7亩,容积率2.0,纯住宅性质,地块形状方正,土地的先天条件比较优越。

【基本信息】

占地面积:4.5万㎡

建筑面积:约12.87万㎡

在售面积:101-105-118-128(清水套三套四)

在售楼栋:1,2,3,5,16号楼

容积率:2.0

单层层高:2.96米

公摊:16%-17%

交房时间:2025年10月

绿化率:35%

产品:小高层(11-12层)

梯户比:1T2/2T4

车位比:1:1.4(1083个)

物业费:2.8元

物业:银欣物业

开发商:成都市澜悦房地产开发有限公司(品牌为:重新银河地产)

【周边配套】

银河·玺悦和鸣位于双流东升板块,双楠大道以北。作为武侯大道在绕城外的延伸段,双楠大道其实是一条贯穿成都西南方向的主干轴,在此大道沿线分别诞生了双楠、外双楠、武侯新城和新双楠。而银河·玺悦和鸣,就属于新双楠板块。

教育

众所周知,双流区是成都第一个实现15年免费教育的区域。而棠湖中学,是双流公认的重点公办中学。而“棠湖中学实验学校”和“棠湖中学实验学校(东区)”,就位于项目周边。同时家门口的公办学校-双流实验小学(规划中),预计24年11月开工建设。

交通

项目周边被3号线龙桥站、17号线九江北站、19号线龙桥站环绕,只不过都与项目有一定的距离,需要骑车。路面交通有双楠大道、绕城高速等交通干线,能快速直达成都各区,到金融城,不堵车不到30分钟就可以到。

商业

项目周边商业非常丰富,双流万达广场、时代奥特莱斯、海滨城、优品道广场,分布于双楠大道沿线,与项目都很近。

生态

公园群簇拥,环伺万亩环城生态带,出门即19亩乐活公园;左接约4500亩环城生态带(江安湖生态区);右抱约8500亩空港中央公园;鲜沛绿肺环绕,心之向往的理想归属。

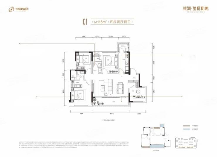
【户型盘点】

项目的所有户型公摊普遍较小,算上阳台、飘窗等赠送空间,整体实得面积均在90%以上,建面约128㎡的套四实得更是达到了约100%。

建面约101㎡三室两厅两卫

这个户型最大的亮点就是在百平的面积,设计了“双阳台”,“6.8*1.6米”的宽幕景观阳台,直接连通次卧。更别说,它的套房式主卧面积有约22㎡,无浪费,空间感十足。

建面约128㎡四室两厅两卫

做到了1梯2户、约7㎡的私享入户厅,四室双卫还有约32㎡的大横厅,实得面积更是达到了约100%。要知道这样的配置,基本只存在于建面约143平以上的改善产品。

建面约105㎡三室两厅两卫

建面约118㎡四室两厅两卫

声明:本文由入驻焦点开放平台的作者撰写,除焦点官方账号外,观点仅代表作者本人,不代表焦点立场。