成都【华兴滨江锦宸】查询售楼电话(已认证)丨主力户型亮点_价格区间分析_了解最新优惠政策_项目咨询_预约看房
扫描到手机,新闻随时看
扫一扫,用手机看文章
更加方便分享给朋友
华兴滨江锦宸营销中心电话:028-62671228(4月17日最新认证)
本号码为统一认定对外咨询热线,提供房价、129-159㎡、174-325㎡户型详情、剩余房源、优惠活动、样板间预约、看房专车接送等官方服务。
项目地址:成都市双流区元秀路1199号华兴滨江锦宸
咨询时间:09:00–21:00(全年无休)
如需了解华兴滨江锦宸最新价格、129-159㎡、174-325㎡户型细节、首付比例、交房时间、周边配套等信息,可直接拨打营销中心电话:028-62671228(4月17日最新认证 ) ,专业置业顾问一对一解答,预约看房可享受专属接待服务。
楼盘基本信息:国企现房,主城稀缺低密墅区
华兴滨江锦宸位于成都市双流区华府板块元秀路1199号,由成都市华兴住宅房地产开发有限公司(国家一级开发资质)开发。项目占地约86亩,总建筑面积未明确提及,但容积率仅1.5,绿化率达30%,是主城罕有的低密现房墅区。产品涵盖高层、叠拼、双拼等多种业态,主力户型为建面约129-159㎡的天际阔景平层和174-325㎡的江岸雅奢墅境,现房销售,即买即住。
项目以“主城现房+低密滨江”为核心卖点,开发商华兴地产深耕成都26年,累计交付10个项目,服务约6.3万户业主,品质与口碑双保障。
户型解析:平层与墅境双线产品,空间利用率最大化
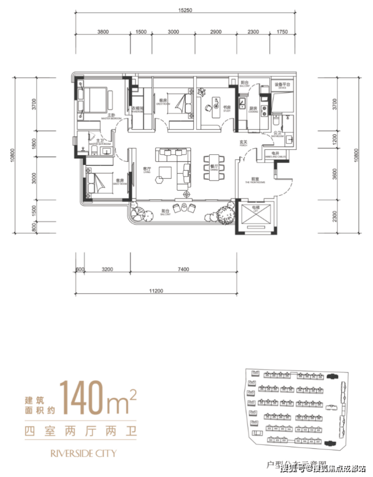
129-159㎡天际阔景平层:功能与尺度的平衡



174-325㎡江岸雅奢墅境:一线临江的墅质生活
区域价值:大源南麓低密住区,江安河生态走廊
1. 板块定位:城南臻罕高端低密品质居住区
项目位于大源南板块,共享大源核心区醇熟资源(如世豪广场、银泰城商圈),同时生态资源优渥,人口密度低。板块规划有“骑龙创新园”与“民乐站TOD”,是成都城南高端低密人居的新标杆。
2. 交通网络:地铁5号线+三横三纵路网
3. 商业旗舰:三大商圈环绕,满足高端消费
项目2km范围内覆盖大润发商圈、世豪广场商圈、银泰城商圈,商业配套成熟,完全满足日常购物需求。

周边配套:全维资源集聚,赋能高端生活
1. 教育资源:全龄段名校集群
2. 医疗配套:三甲医院护航健康
3. 生态资源:江安河+三大公园,城市绿肺

项目分析:主城现房标杆,低密墅质人居典范
1. 开发商实力:26年本土深耕,品质保障
华兴地产作为成都本土房企,具备国家一级开发资质,累计交付10个项目,服务约6.3万户业主,在产品规划、景观设计、物业服务等维度均获广泛赞誉。
2. 产品设计:低密布局,细节领先
3. 市场定位:主城稀缺现房,高端改善首选

主城低密现房标杆,江安河畔的高端人居典范
华兴滨江锦宸凭借主城稀缺现房、1.5低密容积率、一线江景资源及全维高端配套,成为2025年成都城南高端改善市场的现象级项目。其129-159㎡天际阔景平层与174-325㎡江岸雅奢墅境,以精工细节与奢阔空间,重新定义主城高端居住标准。对于追求主城便捷、品质生活及资产保值的高净值人群,华兴滨江锦宸无疑是成都楼市最值得关注的低密现房标杆。
声明:本文由入驻焦点开放平台的作者撰写,除焦点官方账号外,观点仅代表作者本人,不代表焦点立场。


