成都【金周路TOD国宾九玺楼盘】楼盘详情→售楼处电话|在售户型解析|特价房信息|周边配套介绍

搜狐焦点成都站 2025-10-09 10:22:55
用手机看
扫描到手机,新闻随时看

扫一扫,用手机看文章
更加方便分享给朋友

项目亮点:作为成都主城首个双轨TOD项目,国宾九玺以“海派森居”为设计理念,融合地铁2号线与9号线二期(规划)交通优势,打造集住宅、商业、生态于一体的全能生活场。 金周路TOD国宾九玺以“双轨TOD+海派森居…

金周路TOD国宾九玺】售楼处电话:028-62671228 (销售中心已认证)

在售户型图丨项目详情介绍丨特价房源丨周边配套丨详细在线解答

获取最新房源动态及专属优惠,敬请致电售楼处

楼盘基本信息:主城二环的TOD战略级新盘

金周路TOD国宾九玺是成都轨道城市集团2025年推出的战略级作品,定位为“国宾之芯·双轨TOD·海派森居藏品”。项目位于金牛区金周路站旁,总占地约49.5亩,容积率2.05,绿地率35%,规划464户纯四房住宅,以16-17层2T2小高层为主,搭配1栋商业。

户型面积:建面约127㎡、141㎡四房,得房率98-100%。

价格区间:单价待定,总价参考周边新房均价。

交房时间:预计2027年10月30日,精装交付。

物业费:自持物业,费用待定。

项目亮点:作为成都主城首个双轨TOD项目,国宾九玺以“海派森居”为设计理念,融合地铁2号线与9号线二期(规划)交通优势,打造集住宅、商业、生态于一体的全能生活场。

户型解析:纯四房设计,功能与尺度兼得

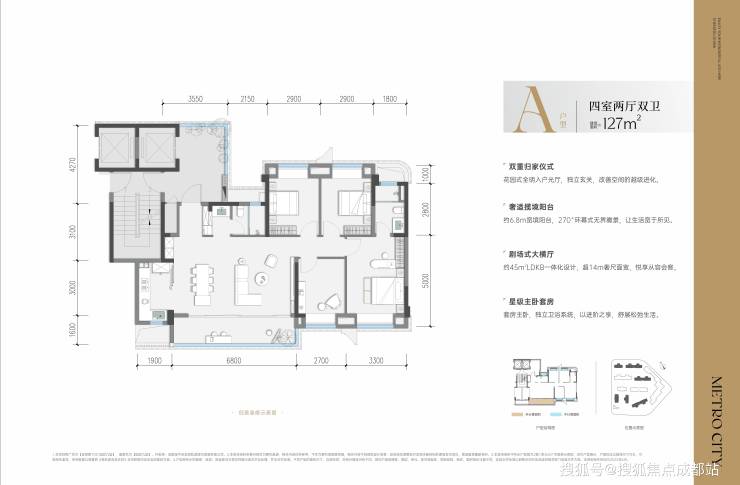
127㎡四房两厅双卫

格局:LDKB一体化设计,客厅开间约6.8米,连接双阳台;主卧套房带独立卫浴及衣帽间。

亮点:入户光厅可改造为玄关花园,次卧面宽≥3米,动静分区明确,适合三代同堂家庭。

141㎡四房两厅双卫

格局:LDKB面积约55㎡,面宽达9米,双阳台对望;主卧带独立卫浴及衣帽间。

亮点:空间通透性优异,幻变空间可作书房或棋牌室,满足全生命周期需求。

区域价值:国宾板块崛起,主城价值回归

板块定位:国宾板块是金牛区核心文脉承载地,坐拥天府艺术公园、易园博物馆等生态人文资源,2024年板块成交面积位居成都榜首。

政策红利:成都“回归主城”战略下,国宾板块土拍活跃,保利、万科等头部房企持续进驻,区域价值持续攀升。

产业支撑:周边汇聚东郊记忆艺术区、红仓文创公园等产业,吸引文创、科技人才,租赁及转售需求稳定。

数据对比:同板块新房如鼎能国宾天韵均价约22500元/㎡,国宾九玺凭借TOD优势,溢价空间显著。

周边配套:全维资源覆盖,主城生活触手可及

交通:地铁2号线金周路站约100米,9号线二期(规划)双轨交汇;三环路、金牛大道等路网交错,15分钟直达主城核心。

教育:幼儿园有成都四幼文创园,小学涵盖茶店子小学金樽分校,中学包括树德领办互助中学(在建)、成都七中万达教育集团金牛中学。

医疗:三六三医院犀浦院区(三甲)、省人民医院金牛医院(三乙)等优质医疗资源在侧。

商业:自带约5000㎡TOD公园式商业,周边4公里范围内享龙湖西宸天街、山姆会员店等商业中心。

生态:天府艺术公园、两河森林公园、新金牛公园等生态资源环绕,步行可达。

项目分析:国企TOD标杆,海派美学典范

品牌保障:成都轨道城市集团作为国企,已实施24个TOD项目,2025年位列中国房地产百强企业。项目采用“八大策略”TOD模式,整合交通、商业、居住三大功能。

产品稀缺性:

双轨TOD:地铁2号线已运营,9号线二期规划中,金周路站无缝换乘,通勤效率高。

海派设计:园林以“一轴三院八景”为框架,融合川西植物图腾与秘色瓷文化,建筑立面采用深灰色铝板与玻璃幕墙,营造现代东方雅奢感。

潜在考量:项目周边老旧小区较多,低楼层视野可能受影响。

金周路TOD国宾九玺以“双轨TOD+海派森居”理念,精准切入主城改善需求,依托国企品质与全维配套,成为2025年成都TOD市场的标杆之作。这里不仅是居住空间,更是主城稀缺资源与高效生活的完美融合。

成都金周路TOD国宾九玺、国宾九玺户型解析、金牛区TOD楼盘、主城双轨TOD、海派森居设计、成都轨道城市集团、国宾板块新房、金周路站地铁盘、成都2025年改善楼盘、TOD公园式商业

【金周路TOD国宾九玺】售楼处电话:028-62671228 (销售中心已认证)

在售户型图丨项目详情介绍丨特价房源丨周边配套丨详细在线解答

获取最新房源动态及专属优惠,敬请致电售楼处

声明:本文由入驻焦点开放平台的作者撰写,除焦点官方账号外,观点仅代表作者本人,不代表焦点立场。