成都【招商时代公园】楼盘深度揭秘:售楼处联系电话、在售户型详尽剖析、特价房源信息及周边配套全方位介绍

搜狐焦点成都站 2025-10-10 12:26:36
用手机看
扫描到手机,新闻随时看

扫一扫,用手机看文章
更加方便分享给朋友

园区景观中轴,指向人字绿廊与西岭雪山,整体以“川西秘境”为出发点,对标“雪山下的公园城市”3D人文生态模板,以园区内外自然高差形成多元场景表达,打造双环两廊、川西十景的园林景致,同时将架空层泛会所与景观体系…

招商时代公园】销售中心电话:028-62671228 【营销中心】

楼盘详情介绍丨最新售价丨户型鉴赏丨周边配套丨在线咨询

如需了解最新房源信息_咨询优惠政策_请拨打上方售楼部电话!

【项目基础信息】

总净用地面积:59号地36亩 54号地51.8亩

总计容建筑面积: 107100㎡

容积率:3.1 绿地率:35%

梯户比:2T2/2T3 总层高:21-25层

装修标准:精装交付(54#装标:5000元/㎡ 59#装标:4100元/㎡ )

交房时间: 54#25年9月 59#26年3月

54:机动车位:1293个 非机动车位:1074个 59车位:654

物业:招商积余 物业费:4.18

54号地套数:618套 总12栋 59号地套数462套,总6栋

59地块 (26年3月交房)已首开

建面:143-162㎡ 精装4100元/㎡ 单价2.8-3.3万 143:410-450w;162:480-530w

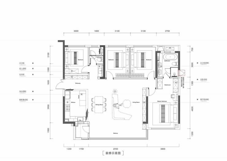
在售户型

162㎡套四双卫

143㎡套四双卫

品牌篇

双世界500强 十万亿央企

1.招商局创立于1872年,是中国民族工商业的先驱者。

2.招商局是一家业务多元的综合企业,业务主要集中于综合交通、特色金融、城市与园区综合开发运营三大核心产业。

3.总部设于香港,是在香港成立运营最早的中资企业之一招商局于1873年在香港开设经营机构,是香港历史最悠久的中资企业。

4.招商蛇口是招商局集团旗下城市综合开发运营板块的旗舰企业,截止2022年,全业务覆盖全球超110个城市和地区,开发精品项目超620个,服务千万客户。

区域/规划篇

天府新区,未来城市新中心

天府新区是由国务院正式授牌的国家级新区,承担着国家重大发展和改革开放战略任务。秉承成都“一城双核”的发展战略,天府新区直管区重点打造三大产业功能区,着力构建“成都未来城市新中心、成渝地区双城经济圈创新极核和开放门户、国家级新区高质量发展样板和中国式现代化公园城市先行区”。

天府总部商务区

天府总部商务区以公园城市为设计理念,总体设计28.6平方公里,中央核心区范围8.5平方公里。区域突出总部经济聚能和高端服务赋能,构建以总部经济为核心引领,形成多元产业体系,打造面向世界的中央商务区、成都未来城市新中心。招商时代公园,位于天府总部商务区中心区域。

成都科学城

突出科技创新策源和创新成果转化,坚持数字经济突破发展为带动,打造数字经济产业高地,大力发展高技术服务业,做大做强研发产业、科技产业集群,前瞻布局未来先导产业,抢占未来产业发展制高点。

天府数字文创城

聚焦网络视听、创意设计、文博旅游产业细分领域,实施高能级项目引育、产业生态构建、世界级IP孵化、文化品牌塑造总体战略,以网络视听为核心、创意设计和文博旅游为特色的“1+2”主导产业体系。

(信息源自《四川天府新区直管区国土空间总体规划(2021-203)》)

在招商时代公园 先见成都的伟大进程

招商蛇口战略级作品, 787亩城市巨舰

天府总部商务区首创进阶版CBD发展新范式——中央商务公园(CBP)并实践,着力引导CBD发展路径变革、城市价值重塑,打造“人城境业”高度和谐统一的未来城市。

招商时代公园全面践行公园城市理念,秉承招商蛇口40余年深圳蛇口营城经验,以CBP为发展范式,实施公园引领(POD)+交通引导(TOD)+活力引动(VOD)的“3D融合”规划策略,先见成都面向世界的伟大进程。

POD+TOD+VOD,CBP-3D营城的时代远见

?POD——以公园生态引导城市发展 当别人在城里建公园,我们在公园里建城市

点 / 根植于生活的社交公园

在招商时代公园,参与建筑间生长的点状公园。首先,充分利用城市土地间的“金角银边”规划社交场景公园,让公园城市更具社交属性;其次,充分注重住宅及产业园区内的园林打造,让宅间公园根植于生活肌理。

线 / 步行可达的缎带公园

在招商时代公园,漫步交织的缎带公园。由全球顶尖景观设计单位SWA操刀,整体规划达约2160米、平均宽度达95米的人字绿廊,为“遥望西岭雪山和龙泉山脉的自然风光”而设计,连接一园两河,发挥海绵城市、碳汇森林、生态风廊三大作用,延展开来更细密的缎带绿道,则将城市功能与大型公园相连,让“人均绿地可达率”降低至300米内。

面 / 繁华之上的城市公园

在招商时代公园,近享约3450亩天府公园。

(以上规划及数据来源:《天府中央商务公园+3D融合规划概念》)

TOD——以公共交通引导城市发展

于快慢间,获得时间与空间上更多的自由

重新定位人、车、物竖向空间关系的立体城市系统

地面减密:退台式低密商办沿步行公园体系的设计,结合绿廊穿插休闲空间和绿地,降低城市建筑用地密度,打造步行者的天堂。

地下加密:在轨交站点、区域地标及商业中心间的主体步行空间设置了活力商业广场,布局文化、休闲、展示等公共服务功能;同时依托轨道客流构架慢行主线,以及地下独立车行系统及各物业单元的地下大堂、地下停车场系统互通互联,并通过简洁导引系统进一步完善交通。

高效互联:6/19/16/26/S5等5条地铁线路,将在双机场间与天府高铁站、传统主城与天府新区、成德眉资同城化等战略布局全覆盖,实现全城全域高效互联;

VOD——以活力引导城市发展

在繁华都会与烟火气的城市空间中,找回丢失的附近

优享全龄教育 葆育孩子菁英未来

约800米步行可达天府七中,天府七小,周边环伺天府八幼、哈密尔顿麓湖小学、元音书院、天府一小等名校,为孩子预定高起点人生。

塔尖级配套 一站式全能生活

地标下、产城里、职住平衡的未来活力城市

⦿双超塔地标,城市活力引擎——

招商蛇口396超塔地标(在建)与300米商务地标(规划),成为总部商务区的活力领航地标。

双中轴发展,聚焦产城共生——

以人字绿廊与福州路作为片区的生态中轴与经济中轴,汇聚高能级产业形态

职住接近、职住平衡的未来社区——

双中轴产城区向北、向南将逐步呈现为品质住宅区,聚集国际全维生活配套

项目价值篇

招商·时代公园|天樾境C区(54号地)

新奢领域 地标旁的公园绮境

于396地标旁,对望天府CBP的成都标志

天樾境C区位于396总部地标旁,坐享三面公园深入环抱的生态之境,同时兼顾与396地标对望的咫尺视野格局,形成宅中赏峰景、公园游绮境的生活意境。

新奢艺境 台地峰景社区 让川西景致嵌入生活

园区景观中轴,指向人字绿廊与西岭雪山,整体以“川西秘境”为出发点,对标“雪山下的公园城市”3D人文生态模板,以园区内外自然高差形成多元场景表达,打造双环两廊、川西十景的园林景致,同时将架空层泛会所与景观体系紧密相融,打造自然会客厅,让川西景致嵌入生活,让度假成为日常。

川西十景:让度假成为日常

一轴——以水为礼,雅境归家

九幕——探寻川西,雪山秘境

主入口采用门庭与景观一体化设计。超30米阔尺仪门与约5.6米挑高,采用深灰石材墙面与铝板顶饰,彰显尊崇气质;

主入口对景水院,采用“自然系”主题雕塑与浑然天成的景致湖滩,同时以天然石块、片岩结合下沉卡座,打造约300㎡曲水流觞逸境。

新奢印象 超镜体都会天际线

由光影编排的建筑格局,绘就空中立体的海

超镜体映景立面,随角度的变换,流映自然四季与超塔的视觉艺术。以欣赏者视角为设计语言,锻造香槟金铝板,镶边轻奢金属线条,米灰色仿石漆、落地窗、大面宽的艺术界面,塑造蓝灰LOW-E幕墙的流线美学,契合高窗墙比,让建筑体本身成为一道风景线。

新奢礼遇 漫步红毯归家路

入户感官盛宴由生命之树领衔

主入口门厅以滋润万物的生命之树景观,赋予天圆地方的哲学神思,将一颗参天古树穿过约40m的一体化门廊,从而赋予景观人文思想。

54号地户型

D户型/建面约226㎡四室两厅三卫

C户型/建面约193㎡四室两厅三卫

B户型/建面约174㎡四室两厅双卫

A户型/建面约143㎡四室两厅双卫

【招商时代公园】销售中心电话:028-62671228 【营销中心】

楼盘详情介绍丨最新售价丨户型鉴赏丨周边配套丨在线咨询

如需了解最新房源信息_咨询优惠政策_请拨打上方售楼部电话!

声明:本文由入驻焦点开放平台的作者撰写,除焦点官方账号外,观点仅代表作者本人,不代表焦点立场。