上批次单价1万出头,大源老盘即将入市
扫描到手机,新闻随时看
扫一扫,用手机看文章
更加方便分享给朋友
地处大源核心,一个曾经烂尾七年的网红盘——嘉悦汇(现已改名为“天府天玺”),可能将在近期有新动作。
近日,“天府天玺”官微发布关于“华惠嘉悦汇广场”项目的声明,表示“华惠嘉悦汇广场”房地产项目目前正在预售证取得过程中,将严格按照成都市住建局、成都市司法局联合出台《关于优化完善商品住房公证摇号排序选房有关规定的通知》进行摇号销售。

加上去年项目突然有新动作,引入了新的承建方,目前部分主体基本完工,也给即将入市销售的消息再添一道实锤。
项目曾于2015年进行过一次开盘推售,当年的住宅成交均价在1万元/㎡左右(预售证号:10644),加上占据大源的绝佳区位,如果近期再次推售,热度或将不输于新鸿基悦城、长冶南阳御龙府等城南网红盘,有意向的朋友可以提前关注。
“天府天玺”这个项目,小妹认为最大的亮点,就在其绝佳的地段和配套。
项目位于高新区天府二街与益州大道交汇处,该片区作为大源早期开发区域,赶上了城南第一波发展热潮,地理位置和交通通达性十分优越。
从交通来看,项目纵向拥有益州大道、剑南大道、天府大道,横向天府1、2、3、4、5街,加上距地铁5号线大源站直线距离700米,1、18号线世纪城站1.2公里,不论自驾还是坐地铁都很方便。
商业方面,一街之隔就是复城国际广场,星巴克、盒马鲜生、电影院一应俱全,周边还有世豪广场、鹭洲里商业街、铁象寺水街、伊藤、麦德龙啥子都有,众所周知,大源最不缺的就是商场!
再看学校,同样是一街之隔,背后就是金苹果幼儿园和益州小学老校区,对面则是益州小学新校区和高新吉瑞幼儿园,全部都在家门口。
周边生态环境优美,斜对面400米就是大源中央公园,往北1公里还有更大的桂溪公园,下班后漫步公园中,各种红花绿树带来的舒适与惬意容易消除疲乏。
这样的地段,谁看了不说绝!
从项目方面释放出的信息来看,将入市的6号楼竟然分成了两个部分,六号楼的一单元二单元与三单元隔中庭相望。
不过,无论是哪个部分,都没有直接临街,一面对中庭,一面对着商业楼栋,在小区内部算是比较好的占位。

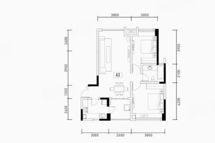
从释放出的总平图来看,六号楼三个单元一共将推出6种户型,共计394套房源(该数据仅供参考,最终以项目方面信息为准)。
6#-1和6#-2部分会有朝北的A1、A2、A3三种户型,分别是建面约96㎡套三、建面约82㎡套二、建面约85㎡套二;朝南则有A4建面约111㎡套三户型。
而6#-3部分则是朝北的D1和朝南的D2,分别为建面约134㎡套四户型和建面约112㎡套三户型。
这样看来,就是建面约111㎡套三和建面约134㎡套四户型是面对中庭的,采光更好的可能也是前无遮挡的A4建面约111㎡套三户型。
接下来我们看看户型设计。


如建面约82㎡、85㎡套二户型,套内布局相当紧凑,尤其是建面约85㎡户型,是非常经典的套二设计,过道仅有约1㎡空间,几乎没有浪费的面积。

最为紧凑实用的要属建面约96㎡套三,三个卧室一个卫生间,有两个卧室的面积都超过了10㎡,最小的卧室面积约6.97㎡,也能够满足居住使用,过道虽然偏大,却也能用来设计成储物空间。

最后再来看看户型朝向更好的建面约111㎡套三,这是一个标准的三室二卫户型,设计相对经典,主卧和另一个较大的卧室都与客厅一样向南,面对中庭中高楼层采光有优势,最小的卧室也有约9㎡的空间,能够满足居住需求。

项目也有四房户型,是四房二卫,建面约134㎡,同样比较标准,划分出了双动线,不过按照目前释放的信息来看,这一户型也是面对中庭的,有首改需求的购房者可以考虑。
招人喜欢的几个元素“天府天玺”都凑齐了。
第一是配套优势,天府二街,大源板块,目前供应可真的不多。益州小学只与项目一街之隔,1公里范围内有地铁站,周边的商业、公园也都是开业迎客状态的。
第二是刚需友好,大源板块不仅供应少,更是改善当道,同一板块的远达天荟云庭,建面约274㎡起,先锋若水居和中国铁建西派澜岸也都在推改善户型,百平米以下户型控制住总价,对刚需上车更为友好。
这样来看,具有高新南购房资格的朋友完全可以准备好冲一把,说不定单价也有惊喜呢?
声明:本文由入驻焦点开放平台的作者撰写,除焦点官方账号外,观点仅代表作者本人,不代表焦点立场。


