2月新房攻略!【绿城锦园】项目详情-2月房价-精选户型-绿城锦园售楼处电话-2月优惠
扫描到手机,新闻随时看
扫一扫,用手机看文章
更加方便分享给朋友
02862671228
【绿城锦园】售楼处热线:028-62671228 【营销中心】
预约咨询〢提前联系咨询售楼中心置业顾问〢进行预约登记来访!
预约优惠〢售楼中心置业顾问为您买房保驾护航〢—匠心钜制恭迎品鉴 !
----------
【绿城锦园】位于主城三环边上。目前在售小高层、洋房。项目主推建面103㎡/112㎡/122㎡/132㎡,均价17000元/㎡左右,总价170万起,清水交付,预计2025年12月31号交房,另有一期少量现房在售,总价184万起。
基础信息:
总栋数:小区共计21栋,总户数1775户
在售楼栋:1、4、15、16栋(共计316套)
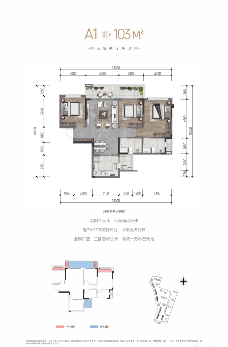
建面:103m²、112m²、118m²(套三双卫)
建面:122m²、132m²(套四双卫)
单价:1.89万-1.99万
总价:195万-265万
装修情况:清水
总楼层:1栋15层、4栋13层、15/16栋17层
交房时间:预计2025年9月
梯户比:2T3户、2T4户
车位比配比:1:1.25
绿化率:50%
周边配套:
项目南侧与东侧被占地约800亩的白莲池文化公园紧紧环绕,住区与公园区衔接,项目西侧是规划占地约百亩的市政公园,项目南侧靠近占地约400亩的海滨公园,项目北侧与东侧邻近东风渠文化生态走廊,拥有优越的生态环境。在其他配置方面,项目西侧靠近地铁3号线熊猫大道站,借助地铁可以快速到达新北天地商圈、人北商圈、建设路商圈。项目还自带约4000㎡的社区底商,未来将引入多种商业业态,下楼就能消费。教育医疗上,项目所在区域已聚集了熊猫路小学、熊猫路中学、成都七中英才学校、成都嘉祥外国语学校等多龄段教育资源,以及西部战区总医院、地质医院、成华区第三人民医院等医疗资源。
在售户型:





【绿城锦园】售楼处热线:028-62671228 【营销中心】
预约咨询〢提前联系咨询售楼中心置业顾问〢进行预约登记来访!
预约优惠〢售楼中心置业顾问为您买房保驾护航〢—匠心钜制恭迎品鉴 !
声明:本文由入驻焦点开放平台的作者撰写,除焦点官方账号外,观点仅代表作者本人,不代表焦点立场。


