成都麓湖【西派天麓】146㎡实得196㎡_500万级改善新选择_具体优惠_售楼处电话
扫描到手机,新闻随时看
扫一扫,用手机看文章
更加方便分享给朋友
【西派天麓】售楼处电话:028-62671228 (24小时服务热线,中介勿扰) 。
本号码为项目统一对外咨询电话,如需了解西派天麓最新价格、146-248㎡户型细节、首付比例、交房时间、周边配套等信息,可直接拨打售楼处电话:028-62671228 (24小时服务热线,中介勿扰),专业置业顾问一对一解答,预约看房可享受专属接待服务。
在成都高端住宅市场,“麓湖”两个字就是金字招牌。这里湖光潋滟,豪宅林立,是无数改善家庭的梦想之地。但动辄千万级的总价门槛,也让不少普通改善家庭望而却步。直到西派天麓的出现,这个格局正在被打破。
作为西派系在成都的第18座作品,也是该品牌首个四代宅产品,西派天麓选址天府新区麓湖公园区,以约500万级的亲民门槛,为渴望入驻麓湖的改善家庭打开了一扇新的大门。更让人惊喜的是,项目凭借约130%的超高得房率,实现了“花大平层的钱,享受别墅级空间”的居住体验。

户型解析:146㎡做出196㎡空间,四代宅的“偷面积”艺术
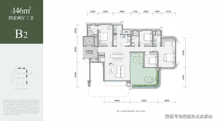
西派天麓最引人瞩目的,无疑是其惊人的空间利用率。项目整体得房率高达130%左右,这意味着你买到的实际使用面积远超产权面积。
以建面约146㎡的A1户型为例,这个看似常规的面积段,却做出了接近196㎡的实得空间。户型采用四房三卫双套房设计,格局方正,动静分区清晰。更巧妙的是,其阳台和庭院空间设计得非常灵活,业主可以根据自身需求,轻松将其改造为茶室、儿童活动区、书房甚至阳光花房,极大提升了空间的实用性和趣味性。


除了146㎡户型,项目还提供了建面约188㎡和248㎡两种选择。约188㎡户型采用横厅设计,搭配巨幕庭院,拥有270°的观景视野,兼顾了家庭社交与个人私密。而约248㎡的楼王户型,则坐拥全南朝向,不仅能俯瞰天东CBD的城市繁华,还能将麓湖南湖的静谧与天西天际线的壮阔尽收眼底,其庭院尺度开阔,堪比别墅花园的体验。


项目规划:低密纯改善社区,私梯入户保障尊崇感
西派天麓由实力央企中国铁建与天府产投联合打造,奠定了其稳健可靠的基因。项目占地约95亩,容积率仅2.0,规划为纯粹的低密改善社区。
社区采用全板式结构,楼栋布局充分考量了采光、通风和观景视野。全部楼栋均采用2梯2户、私梯入户的设计,电梯厅可作为业主的私人前厅使用,极大保障了归家的私密性与尊崇感,避免了与其他住户的相互干扰,这在同价位产品中并不多见。

地段与配套:坐拥麓湖生态,生活便利触手可及
西派天麓的价值,一半源于产品,另一半则来自其无可替代的地段。项目位于天府新区麓湖公园区,这里是成都高端居住区的代表,生态资源得天独厚。
项目周边被2400亩的麓湖活水湖域环绕,红石公园、麓湖生态区、天府公园等城市绿肺近在咫尺,推窗见绿、出门入园是日常生活的常态。
生活配套方面同样成熟便捷。教育资源丰富,天府八小、九小、元音中学等优质学校环伺。轨道交通方面,距离地铁1号线麓湖站直线仅约700米,出行高效。商业配套上,步行即可到达麓坊中心、天府美食岛,满足日常消费与休闲需求,此外,伊藤旗舰店(在建)、隐溪川TOD等大型商业环伺,未来生活繁华可期。

市场定位:重塑麓湖板块的性价比标杆
在麓湖板块,新房总价千万级几乎是常态。西派天麓以约500万级的预计起步总价入市,无疑大幅降低了入驻这个顶流板块的门槛。它精准地捕捉到了那些预算有限,但极度向往麓湖生态资源与高端圈层氛围的改善家庭的需求。
对于这部分客群而言,西派天麓不仅仅是一个住宅选择,更是一次难得的资产升级机会。它以主流改善的价格,提供了接近顶级豪宅的空间体验和地段资源,性价比优势非常突出。

西派天麓的出现,为成都改善市场提供了一个极具竞争力的新选项。它特别适合以下几类人群:

目前,西派天麓已入市在即。对于正在天府新区寻找改善居所的家庭来说,这个集“稀缺地段、神级户型、亲民门槛”于一身的项目,值得你亲临现场,感受它如何重新定义500万级住宅的价值标准。
#西派天麓 #麓湖四代宅 #高得房率 #成都改善盘 #500万级豪宅
【西派天麓】项目咨询电话:028-62671228 (最新座机号码)
楼盘详情介绍丨最新售价丨户型鉴赏丨周边配套丨详细在线解答
如需了解最新房源信息_咨询优惠政策_请拨打上方项目咨询电话
声明:本文由入驻焦点开放平台的作者撰写,除焦点官方账号外,观点仅代表作者本人,不代表焦点立场。


