成都【龙湖天澜】售楼处电话_7月钜惠_最新成交价_热销户型_限时特价房通道_线上咨询入口
扫描到手机,新闻随时看
扫一扫,用手机看文章
更加方便分享给朋友
【龙湖天澜】销售中心电话:028-62671228 【营销中心】
在售户型图丨项目详情介绍丨剩余房源丨项目周边配套丨详细在线解答
如需了解最新房源信息、在售房源价格,请拨打上方售楼部电话!
### 基本概况龙湖天澜项目亮点诸多。其主力面积段为128 - 143㎡,还带有约12平的入户花园,同时还有稀缺的170平顶跃并附带花园,预计单价在2.4 - 2.5万。首开楼栋为1#、4# 。预计总价从250 - 280万起,首开单价处于19000 - 21000元的区间。该项目占地31亩,容积率为2.0,总建面达41333.54㎡ 。梯户比是2T2的纯板式设计,总层高在13 - 16F 。交付标准为精装,绿化率为30%,物业费为3.5元,由四川龙湖兴驿物业服务有限公司负责管理,房屋层高为3米,交房时间定在2026年4月30日。
### 区域价值#### 东安湖产城热土,突破传统环线局限 相较于十陵、行政学院、大面等东进边缘板块,东安湖板块凭借“东进主轴和桥头堡”的显著优势,成功摆脱了传统环线与城市交通的束缚,形成了独立的城市中心。在“产城热土 + 湖区效应”的有力带动下,这里产业能级不断提升,城市界面持续优化,众多品牌开发商纷纷入驻,区域价值实现了跨越式的增长。

#### 东安湖高端生活主场,南岸中央CAZ活力区项目所处位置得天独厚,向北可揽5000亩东安湖生态美景,向南则紧邻龙泉驿区规模约20万方的最大商业综合体——龙湖东安天街与吾悦广场。如此优越的位置,让项目既拥有静谧的生态环境,又能享受繁华的商圈配套,汇聚了东安湖区域最为优质的资源。
### 周边配套#### 商业项目周边商业氛围浓厚,距离约600米处是龙湖东安天街,约700米可达新城吾悦广场,约2.5公里处还有万达广场,居民可尽情享受湖芯成熟的生活圈。#### 交通交通网络十分发达,依靠蜀都大道、驿都大道、桃都大道等四横三纵的道路网,能够轻松通达全城。并且距离地铁2号线书房站约800米,远期还有11、22、25号线的规划。#### 教育周边教育资源丰富,涵盖全龄段。比邻向阳桥幼儿园、小学、中学,经开区实验中学(由教科院领办),成都市实验小学(和雅校区、乐雅校区)等优质教育资源。板块内还有四川师范大学成龙校区、四川财经职业学院等高等学府。#### 医疗在半径4公里的范围内,分布着多家三甲医院,如四川大学华西医院龙泉医院(距项目约1.6km)、成都中医药大学附属医院龙泉医院(距项目约3.5km)、龙泉驿妇幼保健院(距项目约2km)、四川省第三人民医院(距项目约3.9km) ,为居民的健康提供了有力保障。#### 公园项目周边公园环绕,近邻东安湖公园、驿马河公园、龙泉山城市森林公园,构建起了高品质的生活圈。### 建筑特色#### 东安湖显赫皇冠门仪,只为第一眼惊艳项目的迎宾门仪独具匠心,从世界知名奢侈酒店——曼谷四季酒店汲取灵感,精心挑选宝格丽同款奢石,打造出整面精奢石景墙,塑造了东安湖的显赫迎宾形象。在光与影的交织下,奢华场景中气派与精致、高贵与艺术完美融合。 - 宝格丽同款奢石:精心臻选宝格丽同款蓝翡翠奢石,宛如皇冠上那颗最为耀眼的宝石。 - 曼谷四季酒店同款:标志性的环岛水景落客区,成为东安湖区域极具隐奢感的前场视觉焦点。 - 整面精奢石景墙:搭配劳斯莱斯同级的璀璨星空顶,打造出跨度超76米、高约4.2米的酒店式归家大门。

#### 东安湖上帝曲线,微流体先锋美学“直线属于人类,曲线属于上帝”,项目承袭“曲线女王”扎哈·哈迪德的微流体设计理念,从上海门户性地标凌空SOHO获取灵感。在与玻璃、铝板、石材等材料大胆碰撞后,整体立面如同微边框数字全屏,营造出极具未来感的流体立面。 - 流线云翼:整体形态从龙泉山脉的走势中汲取灵感,寓意水动云游。 - 光感立面:采用大面积LOW - E中空玻璃,营造出如出水钻天幕般的建筑美学效果。 - 臻选奢材:为了让业主拥有尊崇的归家体验,单元入户大堂采用超白玻等与大兴机场同款的奢材。

### 户型鉴赏#### B户型 - 128㎡ - 四房两厅两卫 - 独立入户玄关:入户玄关结合动静分区设计,充分满足多元社交需求,无论是会客还是休憩,都能随心切换。 - 个性创变横厅:LDKB横厅搭配X空间,可根据个人喜好打造为会客书房、电竞室或者健身区等。 - 四房高阶配置:128㎡的空间却有着比肩143㎡的尺度,打破常规,满足高定生活的需求。 - 奢华主卧系统:配备独立衣帽间与酒店式主卫,构建起主人专属的私密领地。

#### B户型 - 143㎡ - 四房两厅两卫 - 空中私屿花园:私享独立电梯厅,让归家的每一步都充满尊崇感。 - LDKB家族聚厅:约40㎡的LDKB厅,中西双厨、多功能客厅与宽幕阳台无缝衔接,方便家人相聚。 - X个性化空间:利用双次卧无梁柱的设计优势,高阶四房可升级为双套房主卧,满足多样化需求。 - 酒店套房主卧:步入式衣帽间与酒店式卫浴,实现卧室“小家化”的温馨体验。

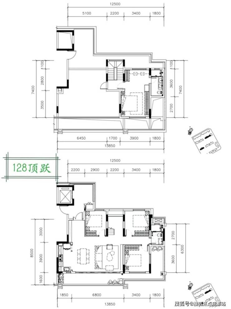
### 顶跃户型图 - 128平米顶跃
- 143平米顶跃
【龙湖天澜】销售中心电话:028-62671228 【营销中心】
在售户型图丨项目详情介绍丨剩余房源丨项目周边配套丨详细在线解答
如需了解最新房源信息_在售房源价格_请拨打上方售楼部电话!
声明:本文由入驻焦点开放平台的作者撰写,除焦点官方账号外,观点仅代表作者本人,不代表焦点立场。


