成都【华兴滨江锦宸】户型图及最新房价发布!详情介绍请致电【华兴滨江锦宸】售楼处,享国庆看房专属优惠

搜狐焦点成都站 2025-09-26 14:50:11
用手机看
扫描到手机,新闻随时看

扫一扫,用手机看文章
更加方便分享给朋友

华兴地产截止2024年,已累计交付10个项目,服务约6.3万户业主。 大源核芯区作为城南置业首选区域,板块趋近饱和、人口密度大,宜居性降低。大源南板块共享大源核芯区醇熟资源的同时,生态资源优渥、人口密度低,规…

「华兴滨江锦宸」售楼处热线:028-62671228 【营销中心】

预约优惠〢售楼中心置业顾问为您买房保驾护航〢—匠心钜制恭迎品鉴 !

【基本信息】

项目占地:约86亩

容积率:1.5

绿化率:30%绿地率

梯户比:高层2T2

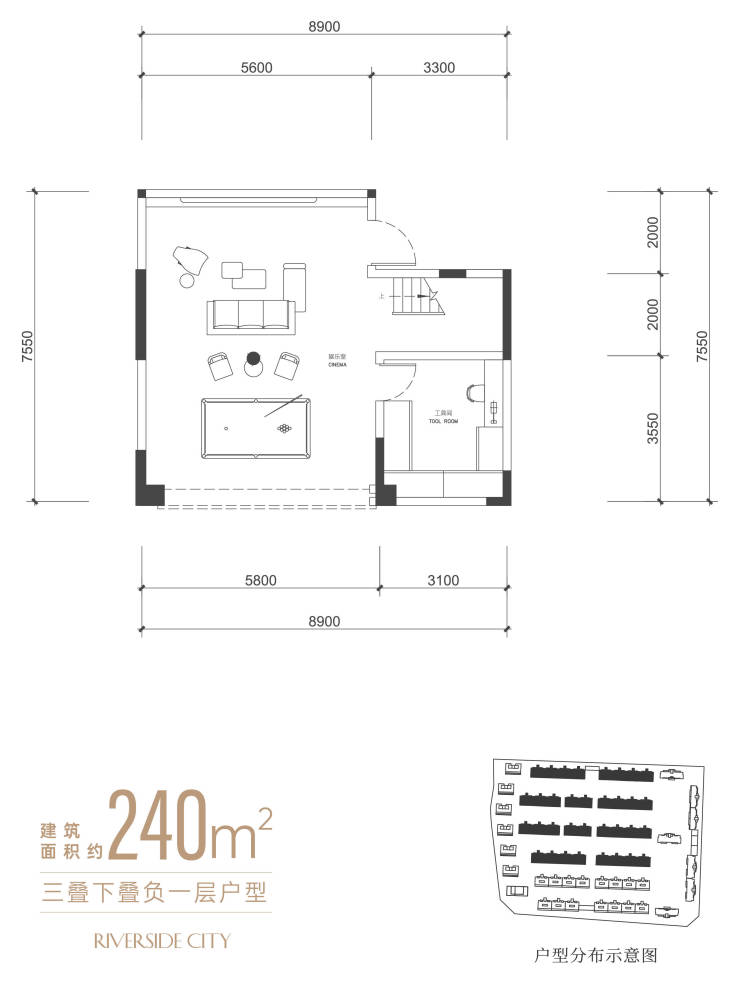
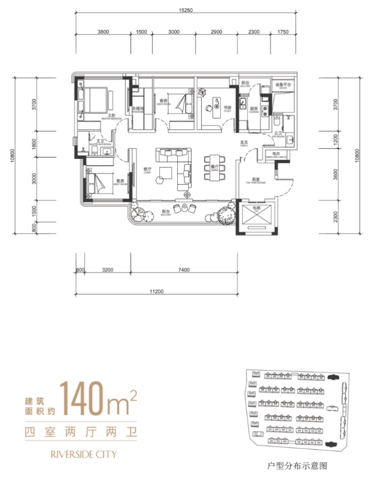
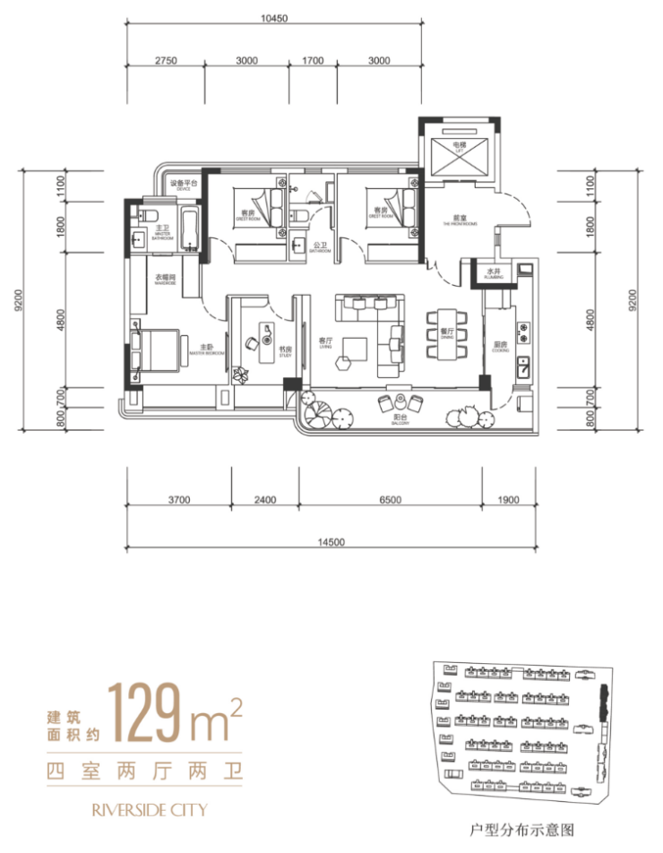
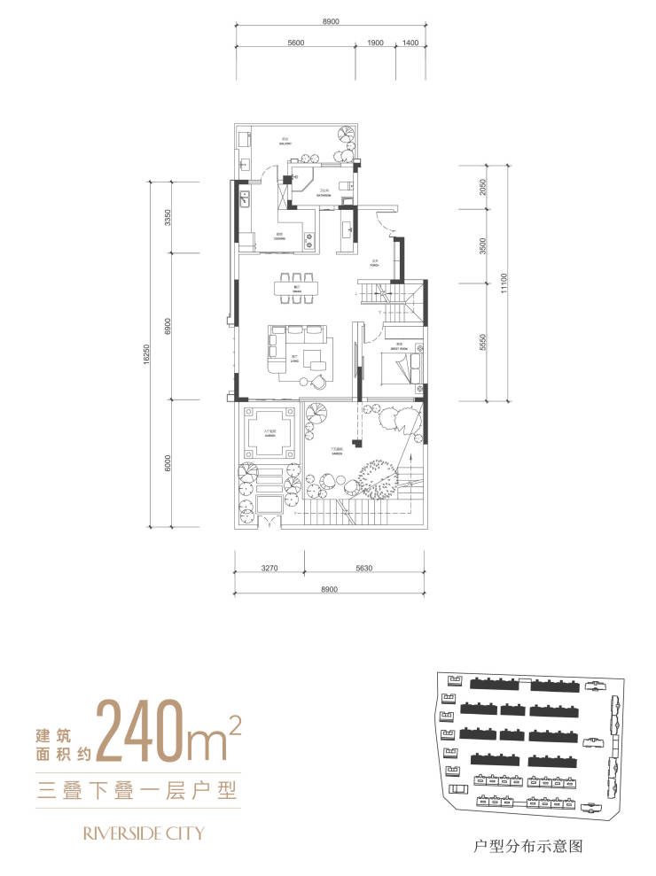
面积段:建面约174-325㎡江岸雅奢墅境 建面约129-159㎡天际阔景平层

安心置业:现房销售

【品牌价值】

成都市华兴住宅房地产开发有限公司,创立于1998年,深研成都本土人居26载,具备国家一级房地产开发资质。华兴地产截止2024年,已累计交付10个项目,服务约6.3万户业主。在产品规划、景观设计、物业服务等维度,均获得了广大业主与合作伙伴的广泛赞誉。

【区域分析】

大源核芯区作为城南置业首选区域,板块趋近饱和、人口密度大,宜居性降低。同时发展时间长、老旧小区多,改善需求大,但板块房价高昂,且几乎没有产品上新。大源南板块共享大源核芯区醇熟资源的同时,生态资源优渥、人口密度低,规划有「骑龙创新园」与「民乐站TOD」,是成都城南臻罕高端低密品质居住区。

【周边配套】

生态:项目西邻江安河,景观资源得天独厚,千米江景推窗即见。周边滨江公园(在建)、三江公园(在建)、骑龙公园(规划中)环绕。于城市繁华之畔,开启城南低密人居新版图。

交通:一轨:5号线骑龙站;三横:天府五街、元秀路、华阳大道;三纵:剑南大道、华府大道、华秀路。立体路网无界城芯生活。

商业:大润发商圈、世豪广场商圈、银泰城商圈。

教育:怡心第一实验学校(直线距离);成都教科院附属学校、成都七中高新校区等,公立、私立优资学府环伺。

医疗:项目邻四川大学华西医院高新院区,预计2026年可投入运营。成都市第三人民医院高新院区(已批复)。

【在售户型】

建面约129-159㎡天际阔景平层

建面约174-325㎡江岸雅奢墅境

「华兴滨江锦宸」售楼处热线:028-62671228 【营销中心】

预约优惠〢售楼中心置业顾问为您买房保驾护航〢—匠心钜制恭迎品鉴 !

声明:本文由入驻焦点开放平台的作者撰写,除焦点官方账号外,观点仅代表作者本人,不代表焦点立场。