成都【华侨城七十二院】楼盘详情:户型设计图鉴赏、三月限时购房优惠、周边生活配套解析及售楼处咨询电话。
扫描到手机,新闻随时看
扫一扫,用手机看文章
更加方便分享给朋友
【华侨城七十二院】售楼处热线:028-62671228 【最新认证】
预约咨询〢提前联系咨询售楼中心置业顾问〢进行预约登记来访!
预约优惠〢售楼中心置业顾问为您买房保驾护航〢—匠心钜制恭迎品鉴 !
---------------
4A景区洛带古镇|现房独栋合院
国风建筑|五大派系|一户一栋
项目简介:
洛带华侨城·七十二院,东靠龙泉山城市森林公园,北接国家4A级景区洛带古镇,西面洛水湿地公园,南临千亩蔚然花海
项目以客家人历史上五次大迁徙为文化脉络,精选中国建筑的优秀元素,汇聚闵、海、川、晋、徽五大建筑派系院落,随着街、巷、院的空间变化,让中国的传统建筑艺术得以展现
基础信息:
项目位置:成都市龙泉驿区洛带三峨街999号
占地面积:约200亩
物业公司:华侨城物业(集团)有限公司成都分公司
水电气收费:水4.3元/电0.79元/气2.59元
建筑面积:200—500平
总价区间:300万—1000万(特价178万起)
赠送花园:80-300平
容积率:0.65
物业费:5元/㎡
现房,即买即装修!
水电气三通
项目区位图:
周边配套:
交通:
城市主干道:成都五环路(成环路)、成洛大道、渝蓉高速、蜀都大道等
公交:219路、850路、K7快速公交等十余条公交线路
距离双流机场、天府国际机场约40km,40分钟即可起飞全球
生态:
龙泉山城市森林公园、洛水湿地公园、蔚然花海(4A级景区)
学校:
龙泉驿区洛带第二幼儿园、洛带小学、洛带中学、成都康礼·克雷格公学(建设中)
医院:
龙泉驿区第二人民医院、洛带公立卫生院、龙泉驿区第一人民医院、龙泉驿区妇幼保健院、四川省人民医院东院
休闲:
洛带古镇(4A级景区)、中国艺库商业街
产品介绍:
闵派:自持商业院落,面积段30-300㎡,打造城市商业步行街
海派:自持商业院落,面积段300-3000㎡,打造中法特色风情街
川派:在售合院,面积段200-500㎡,均价约15800元/平,总价段300-900万
晋派:在售合院,面积段400-600㎡,均价约17800元/平,总价段680-1000万
徽派:面积段210-350㎡,均价约15000元/平,总价段300-520万
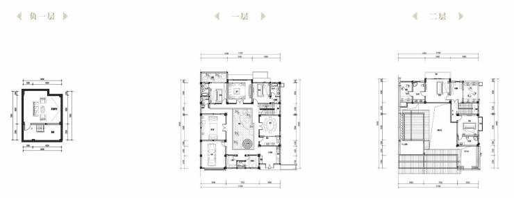
户型鉴赏:
川派:明月府 9-2#(建筑面积373.17㎡,实得面积约513㎡)
川派:南风院 6-3#(建筑面积369.13㎡,实得面积约513㎡)
川派:千虹院 12-5#(建筑面积448.24㎡,实得面积约633㎡)
川派:虹霓院 13-2#(建筑面积370.09㎡,实得面积约514㎡)
【华侨城七十二院】售楼处热线:028-62671228 【最新认证】
预约咨询〢提前联系咨询售楼中心置业顾问〢进行预约登记来访!
预约优惠〢售楼中心置业顾问为您买房保驾护航〢—匠心钜制恭迎品鉴 !
声明:本文由入驻焦点开放平台的作者撰写,除焦点官方账号外,观点仅代表作者本人,不代表焦点立场。


