成都【人居九林语鎏云阁】售楼处电话→房价信息发布|热销户型一览|线上咨询即享专属优惠|速拨售楼处电话

搜狐焦点成都站 2025-09-17 13:30:15
用手机看
扫描到手机,新闻随时看

扫一扫,用手机看文章
更加方便分享给朋友

户型设计:各户型均有亮点,如宽阳台、大面宽横厅、一体化空间、超广角视野等,采光和景观视野好,部分户型还有独立电梯厅、双景观主卧套房等。 商业配套:项目自带约3000㎡花园悦街,周边有ICC、万象城、光环中心…

人居九林语鎏云阁】销售中心电话:028-62671228 【营销中心】

在售户型图丨项目详情介绍丨剩余房源丨项目周边配套丨详细在线解答

如需了解最新房源信息_在售房源价格_请拨打上方售楼部电话!

楼盘介绍

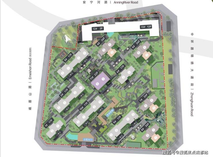
基本信息:位于成都成华区渠江路200号,占地约63亩,由成都人居成兴置业有限公司开发,产品为约118-129-143-187㎡的臻装大平层,楼栋总数为11栋住宅、2栋商业,总户数687户,容积率2.5,绿化率约 25%,停车位988个,楼层有17F等,梯户比为2T2、2T3,装修标准为精装。

项目特色:作为人居6.0全新高阶改善著作,打造品质低密小高,有8000㎡城东首席海派复古极致园林,将当代生活理念与经典海派美学结合,演绎精致奢雅的美学场景空间12。

项目优势

品牌实力:由成都兴城人居开发,市属国有城市开发企业首位,深耕成都20载,累计开发商品房项目70余个,布局成都20个区(市)县,综合实力强。

建筑与景观:精质立面采用真石漆搭配金属铝板,双层LOW-E沐光玻璃,展现天际线之美;约8000㎡海派复古园林,融合海派摩登生活与酒店式空间,营造精致美学场景;还有超宽幅横轴归家府门、定制级单元入户大堂、典藏级地下星空光厅等奢华公区。

户型设计:各户型均有亮点,如宽阳台、大面宽横厅、一体化空间、超广角视野等,采光和景观视野好,部分户型还有独立电梯厅、双景观主卧套房等。

区域优势

地段与发展:位于东2.5环内,东大街主轴贯穿,这里起于春熙、太古里,汇聚高能产业和高奢商业,还汇聚众多壕宅,新启攀成钢2.0时代,板块价值高且发展潜力大。

交通枢纽:处于双环线(2.5环及三环)、双主轴(安宁河路和东大街)位置,有双地铁(7号线大观站 /2号线东客站)和双TOD(大观TOD规划中/东客站TOD),交通极其便捷。

周边配套

商业配套:项目自带约3000㎡花园悦街,周边有ICC、万象城、光环中心、华宇广场(约600m)、和悦广场(约1.5km)等主城级大型商圈。

教育资源:1.5公里范围内有成都英华小学、成都英华中学、蓉城小学(芙蓉校区约200m)、锦绣青城幼儿园 (斑竹分园)、成都大学附属中学等。

生态环境:紧邻约410亩的塔子山公园(约 1km)、约 125 亩东站绿轴公园(约1km)。

医疗配套:成都友谊医院(约600m)、锦欣妇女儿童医院(约800m)等为健康提供保障。

户型解析

花兮间-建面约118㎡

有 7M 超面宽阳台,近 36㎡双面采光横厅,酒店级精质主套,空间舒适,采光充足。

风澜舍-建面约129㎡

8.9M 超阔景观阳台,超 40m²LDKB 一体化空间,全采光奢适四房,功能齐全,居住体验好。

山禾悦-建面约143㎡(方厅)

10㎡前厅空间,超 45㎡中央社交场,270° 超广角视野,公共空间开阔,社交属性强。

云栖画-建面约143㎡(边厅)

10㎡全明光厅,LDK 厅联动阳台,约 24㎡行政套房主卧,布局合理,动静分区。

璞隐归-建面约187㎡

尊配独立电梯厅,超 60㎡宽幕光厅,270° 环幕景观舱,双景观主卧套房,尽显奢华与舒适。

【人居九林语鎏云阁】销售中心电话:028-62671228 【营销中心】

在售户型图丨项目详情介绍丨剩余房源丨项目周边配套丨详细在线解答

如需了解最新房源信息_在售房源价格_请拨打上方售楼部电话!

声明:本文由入驻焦点开放平台的作者撰写,除焦点官方账号外,观点仅代表作者本人,不代表焦点立场。