成都托尼洛兰博基尼中心|兰博基尼中心|2023最新房价|详情|户型|配套|电话
扫描到手机,新闻随时看
扫一扫,用手机看文章
更加方便分享给朋友
【托尼洛兰博基尼中心】售楼线上预约处
☎【售楼热线】:028-64160617 ☎
☎【置业顾问】:13438899074「微信同步」☎
更详细楼盘资料和最新折扣价格,请拨打销售电话
提前预约可享内部优惠〢匠心钜制-恭迎您的品鉴〢

【托尼洛兰博基尼中心】项目位于天府广场人民南路一段和红照壁街的交汇处,项目总建筑面积约23万平方米,建成后高度约188米,包含酒店、购物中心、艺术剧院为一体的高端城市综合体。
【项目案名】成都托尼洛·兰博基尼中心
【项目地址】人民南路一段126号
【建筑面积】约23万㎡
【占地面积】约16亩
【地下车库】近1000个

【规划可售套数】888套【在售单价】5万/㎡起
【物业费】12元/㎡/月
【物业类型】商业类
【室内风格】意式奢华/现代奢华
【物业公司】成都兰博物业管理有限责任公司
【交付时间】B塔:2021年12月30日
A塔:2023年06月30日

兰博基尼——享誉全球的顶级超跑品牌,1963年由费鲁吉欧·兰博基尼先生创立于意大利。1981年第二代继承人托尼洛·兰博基尼先生,创立托尼洛·兰博基尼集团,将家族事业扩展到了高端地产、奢华酒店、顶级家具、腕表、服饰等奢侈品领域。

【项目业态分布】

【A塔】总建筑面积:约6.65万㎡
层高:3.9-8.5m电梯品牌:日本原装进口三菱锋速电梯(6m/s速度)
幕墙:双层中空Low-E玻璃建筑结构:框架核心筒结构中央空调、新风系统分区电梯智能楼层系统独立电梯大厅11m挑高入户大堂外立面企业品牌展示空间
单层面积:约2100㎡
景观面宽:45.3m
分户面积区间:约75-510㎡
电梯数量:13部客梯,3部VIP
电梯避难层:11F、22F、33F

【A塔】总建筑面积:约6.65万㎡
层高:3.9-8.5m电梯品牌:日本原装进口三菱锋速电梯(6m/s速度)
幕墙:双层中空Low-E玻璃建筑结构:框架核心筒结构中央空调、新风系统分区电梯智能楼层系统独立电梯大厅11m挑高入户大堂外立面企业品牌展示空间
单层面积:约2100㎡
景观面宽:45.3m
分户面积区间:约75-510㎡
电梯数量:13部客梯,3部VIP
电梯避难层:11F、22F、33F











1、商业配套 项目自身高端精品购物中心,汇聚全球时尚、休闲、健康、美食、娱乐等业态,毗邻仁恒置地广场、成都市区第一家免税店、春熙路-太古里商圈、仁和春天、盐市口商圈等商圈。

2、文化配套武侯祠、锦里、宽窄巷子、杜甫草堂,成都博物馆、四川美术馆、四川省图书馆、四川科技馆、四川大剧院近在咫尺,足不出户即可于四川人民艺术剧院畅享经典。
3、酒店配套 托尼洛·兰博基尼酒店、JW万豪、丽思卡尔顿、瑞吉、希尔顿、博舍、NICCOLO酒店。
4、政务配套四川省政府、公安厅、教育厅、劳动厅、出入境中心。
5、教育配套文翁石室中学、石室联中、四川大学(望江校区)、四川音乐学院、成都市盐道街小学(本部)、成师附小(本部)、龙江路小学(本部)。
6、交通配套地铁:地铁一号线、二号线天府广场站、地铁一号线锦江宾馆站距离双流国际机场约15公里,距离高铁成都东站约10公里,距离高铁火车南站约5公里,距离火车北站约5公里。
7、医疗配套四川大学华西医院、四川省人民医院、成都中医药大学附属医院。
1、地处成都之心天府广场之上,位于成都“百里中轴”人民南路起点,核心地位不言而喻。
2、托尼洛·兰博基尼集团在中国的首个地产合作项目,引进国际超五星级托尼洛·兰博基尼酒店,具备强大的品牌实力和影响力。
3、项目周边资源集萃了成都百年发展成就,是成都政务、经济、人文、教育、医疗等配套核心区。
4、项目总建筑规模约23万㎡,建筑高度188米,建成后将成为刷新天府广场天际线的城市新封面。
5、项目是集超五星级托尼洛·兰博基尼酒店、国际会客厅、高端精品购物中心及四川人民艺术剧院于一体的高端城市文化综合体。

6、项目拥有270°观景视野,188米凌云高度,远眺成都天际线,近瞰天府广场、人南主轴城市盛景尽收眼底。
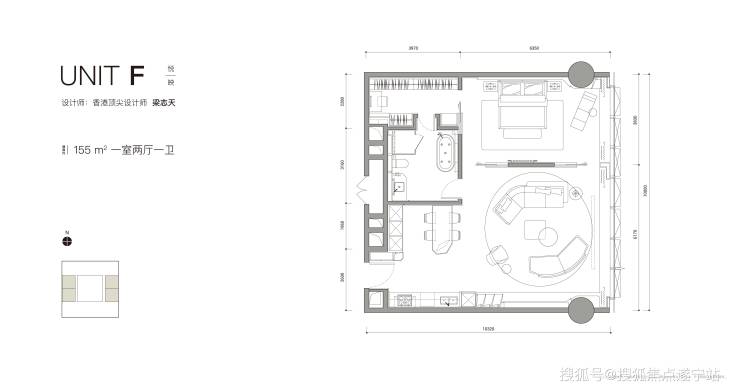
7、项目邀请全球设计精英:英国室内设计女王Kelly Hoppen、意大利国宝级设计师Marco Piva、香港顶级设计大师梁志天先生、澳大利亚C·K首席设计师Ivo Krivanek联袂设计呈现,打造殿堂级艺术作品。

8、约3.55-9.3米阔逸层高、18.8米无界开间,约11米公区挑高、逾800㎡阔绰入户大堂,以巅峰尺度打造豪奢会客空间。
9、集萃德国Miele,瑞士Laufen,法国Jacob Delafon,意大利Gessi、Smeg等国际奢华品牌,缔造国际会客厅一流的空间品质与别样的奢享体验。
10、精工品质,以全屋中央空调、新风系统、24小时热水、智能控制系统、原装进口三菱电梯等配套设施焕新生活感官。
11、打造西南城市核心五星级地下车库,配置近千个臻稀车位。

12、托尼洛·兰博基尼酒店团队全程提供国际物业管理服务,涵盖24小时礼宾服务、私人管家服务、商务管理及资产管理等高定服务。
对项目感兴趣,可拨打下方电话联系售楼部及置业顾问
【托尼洛兰博基尼中心】售楼热线:028-26421787.(预约看房)
【托尼洛兰博基尼中心】专属顾问:13438899074.(微信同号)
✅ 专业楼盘内场销售接待服务,让您买的放心,住的舒心
✅ 看房提前1天预约可尊享内部专享特惠,价格包您满意
免责声明:
以上内容仅作为邀约邀请,涉及的图片为部分区域实拍图和美学畅想图,具体内容请以现场公示和合同约定为准;本资料部分图片来源于网络,如有侵权请联系我们删除。
声明:本文由入驻焦点开放平台的作者撰写,除焦点官方账号外,观点仅代表作者本人,不代表焦点立场。


